L’agence CBRE Lille conseille et accompagne les chefs d’entreprise dans leurs projets immobiliers quels que soient leur taille et leur secteur d’activité. Spécialistes de la transaction de bureaux, ...
En savoir plus

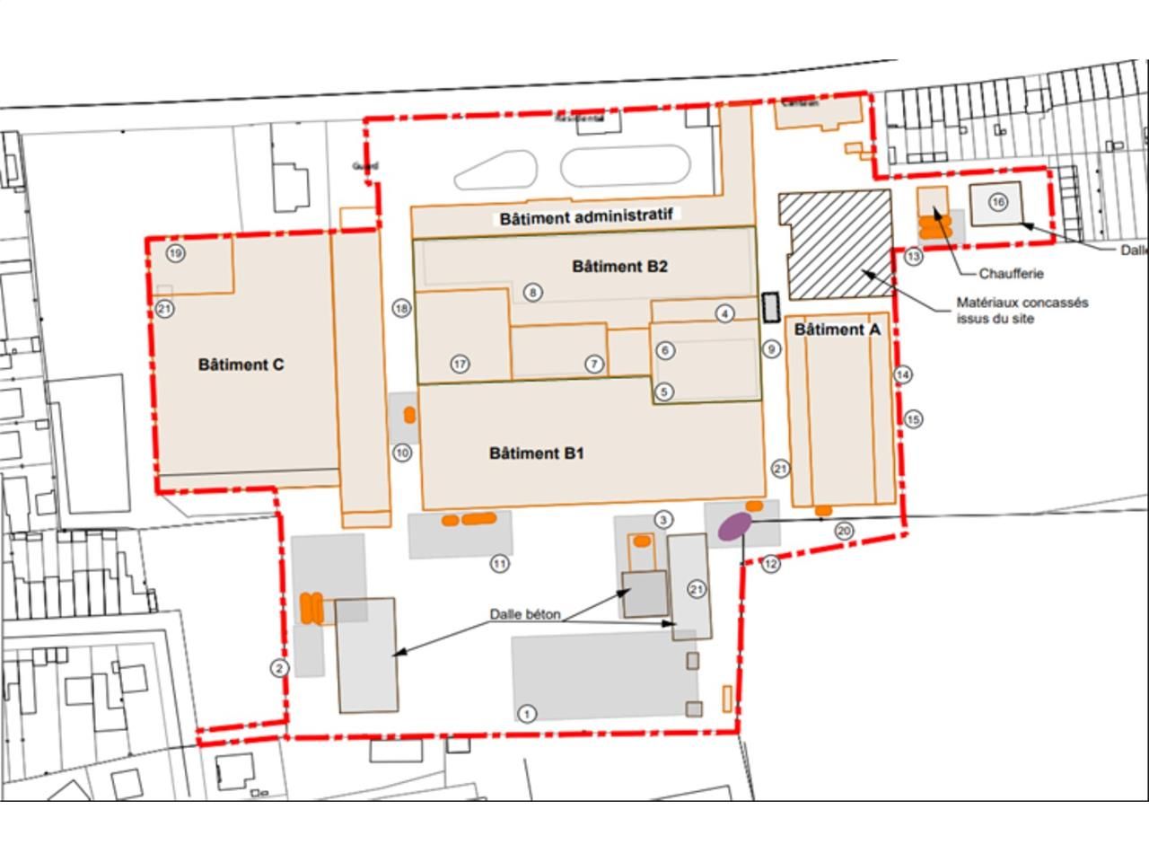
25 723 m²
Activité/Entrepôt à vendre - 25723 m²
Harly (02100)
Dernière mise à jour : Il y a 3 jours
CBRE Lille, spécialiste du conseil en immobilier d'entreprise vous propose à la vente cet ensemble immobilier développant 25 723 m² non divisibles. Idéalement situé dans le Saint Quentinois, profitez des axes autoroutiers à proximité. Cet actif dispose aussi d'une très belle réserve foncière. Pour plus d'informations contactez nous au 03 59 28 42 92
Régime Fiscal : Droits d'enregistrement
Honoraires : 5% HT du prix de vente HD à la charge de l'acquéreur
Prestations :
Accessibilité:
. A29 / A26
Les informations sur les risques auxquels ce bien est exposé sont disponibles sur le site Géorisques : www.georisques.gouv.fr
| Étage | Type | Surfaces | Dispo | Prix(m²) | Charges | Honoraires | Fiscal |
|---|---|---|---|---|---|---|---|
| Activités | 2333 | Immédiate | n.c. | n.c. | 5% HT du prix de vente HD à la charge de l'acquéreur | Droits d'enregistrement | |
| Activités | 7347 | Immédiate | n.c. | n.c. | 5% HT du prix de vente HD à la charge de l'acquéreur | Droits d'enregistrement | |
| Activités | 6560 | Immédiate | n.c. | n.c. | 5% HT du prix de vente HD à la charge de l'acquéreur | Droits d'enregistrement | |
| Activités | 5070 | Immédiate | n.c. | n.c. | 5% HT du prix de vente HD à la charge de l'acquéreur | Droits d'enregistrement | |
| Activités | 3872 | Immédiate | n.c. | n.c. | 5% HT du prix de vente HD à la charge de l'acquéreur | Droits d'enregistrement | |
| Activités | 541 | Immédiate | n.c. | n.c. | 5% HT du prix de vente HD à la charge de l'acquéreur | Droits d'enregistrement |
Régime Fiscal : Droits d'enregistrement
Honoraires : 5% HT du prix de vente HD à la charge de l'acquéreur
Prestations :
- Surface RDC : 0 m²
- Surface terrain : 46574
- Accès bâtiment : moyens porteurs
gros porteurs
aire de manoeuvre de + de 30m² - Nbr de portes plain pied : 10
- Ossature : Structure Béton
Accessibilité:
. A29 / A26
Les informations sur les risques auxquels ce bien est exposé sont disponibles sur le site Géorisques : www.georisques.gouv.fr
Voir plus
Afficher les consommations énergétiques
Favoris
Exporter
Appeler
Contacter
Signaler cette annonce
