Depuis 2003, KEOPS Toulouse accompagne les entreprises dans leurs projets immobiliers sur toute l’aire urbaine toulousaine.Notre équipe de professionnels passionnés met à votre service sa connaissa ...
En savoir plus

165 m²
Bureau à vendre - 165 m²
Toulouse (31000)
Dernière mise à jour : Il y a 2 jours
- A VENDRE - Surface à usage de bureaux et d'archives proposée à la vente, idéalement située au coeur du quartier Compans Caffarelli à Toulouse.
Impôt Foncier : 3763 €/Euros / an
Régime Fiscal : Droit d'enregistrement
Dépôt de garantie : 3 mois de loyer HT HC
Honoraires : 5% HT du prix de vente à la charge de l'acquéreur
Prestations :
Accessibilité:
Centre ville de Toulouse Pres de la cité administrative,centre Compens Caffarelli
Les informations sur les risques auxquels ce bien est exposé sont disponibles sur le site Géorisques : www.georisques.gouv.fr
| Étage | Type | Surfaces | Dispo | Prix(m²) | Charges | Honoraires | Fiscal |
|---|---|---|---|---|---|---|---|
| RDC | Bureaux | 165,24 | Immediate | n.c. | n.c. | 5% HT du prix de vente à la charge de l'acquéreur | Droit d'enregistrement |
| 1SS | Archives | 177,77 | Immediate | n.c. | n.c. | 5% HT du prix de vente à la charge de l'acquéreur | Droit d'enregistrement |
Impôt Foncier : 3763 €/Euros / an
Régime Fiscal : Droit d'enregistrement
Dépôt de garantie : 3 mois de loyer HT HC
Honoraires : 5% HT du prix de vente à la charge de l'acquéreur
Prestations :
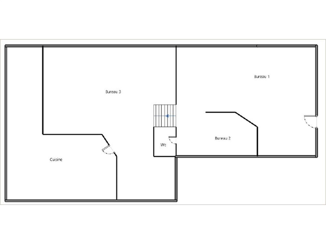
- Dans un immeuble idéalement situé au coeur du quartier de Compans Caffarelli à Toulouse Plateau situé au rez-de-chaussée de l'immeuble, entrée protégée par un sas d'entrée métallique
- Surface située au rez-de-chaussée ainsi qu'au sous-sol de l'immeuble ----- - RDC : 165,24 m² à usage de bureaux : open space, salle de réunion, cuisine aménagée et salle informatique ----- - Sous-sol : 177,77 m² à usage d'archives ----- Système de climatisation réversible Puis de jour
- Surface RDC : 165,24 m²
Accessibilité:
Centre ville de Toulouse Pres de la cité administrative,centre Compens Caffarelli
Les informations sur les risques auxquels ce bien est exposé sont disponibles sur le site Géorisques : www.georisques.gouv.fr
Voir plus
Afficher les consommations énergétiques
Localisation et transport aux alentours
Favoris
Exporter
Appeler
Contacter
Signaler cette annonce










