Avec près de 80 implantations en France, Arthur Loyd est le premier Réseau National de Conseil en Immobilier d’Entreprise. Nous vous accompagnons dans vos projets sur l’ensemble du territoire natio ...
En savoir plus

2 033 m²
Bureau à vendre - 2033 m²
Saint-Martin-du-Vivier (76160)
Dernière mise à jour : Hier
Immeuble de standing dans une zone d'activité en plein essor au Nord de Rouen, proposant des surfaces de bureaux divisibles selon les besoins
Bâtiment élevé en R+2 avec une structure en bois massif, terrasse accessible à chaque étage.
IMMEUBLE NEUF à Saint Martin du Vivier, au Nord de Rouen / Bâtiment élevé en R+2 avec une structure en bois massif, terrasse accessible à chaque étage.
Honoraires : 2,5 % HT du prix NV à la charge de l'acquéreur
Prestations :
Accessibilité:
Autoroute Accès direct aux Autoroutes du Nord (A28) et A13 via le tunnel de la Grand Mare
SNCF à 10 min du centre ville de Rouen et de la Gare SNCF
Les informations sur les risques auxquels ce bien est exposé sont disponibles sur le site Géorisques : www.georisques.gouv.fr
Bâtiment élevé en R+2 avec une structure en bois massif, terrasse accessible à chaque étage.
IMMEUBLE NEUF à Saint Martin du Vivier, au Nord de Rouen / Bâtiment élevé en R+2 avec une structure en bois massif, terrasse accessible à chaque étage.
| Étage | Type | Surfaces | Dispo | Prix(m²) | Charges | Honoraires | Fiscal |
|---|---|---|---|---|---|---|---|
| 2 | Bureaux | 183,6 | n.c. | n.c. | 2,5 % HT du prix NV à la charge de l'acquéreur | ||
| 2 | Bureaux | 175,8 | n.c. | n.c. | 2,5 % HT du prix NV à la charge de l'acquéreur | ||
| 2 | Bureaux | 155,2 | n.c. | n.c. | 2,5 % HT du prix NV à la charge de l'acquéreur | ||
| 2 | Bureaux | 151,8 | n.c. | n.c. | 2,5 % HT du prix NV à la charge de l'acquéreur | ||
| 1 | Bureaux | 583,3 | n.c. | n.c. | 2,5 % HT du prix NV à la charge de l'acquéreur | ||
| 1 | Bureaux | 70 | n.c. | n.c. | 2,5 % HT du prix NV à la charge de l'acquéreur | ||
| RDC | Bureaux | 264,2 | n.c. | n.c. | 2,5 % HT du prix NV à la charge de l'acquéreur | ||
| RDC | Bureaux | 194,4 | n.c. | n.c. | 2,5 % HT du prix NV à la charge de l'acquéreur | ||
| RDC | Bureaux | 142,1 | n.c. | n.c. | 2,5 % HT du prix NV à la charge de l'acquéreur | ||
| RDC | Bureaux | 112,2 | n.c. | n.c. | 2,5 % HT du prix NV à la charge de l'acquéreur |
Honoraires : 2,5 % HT du prix NV à la charge de l'acquéreur
Prestations :
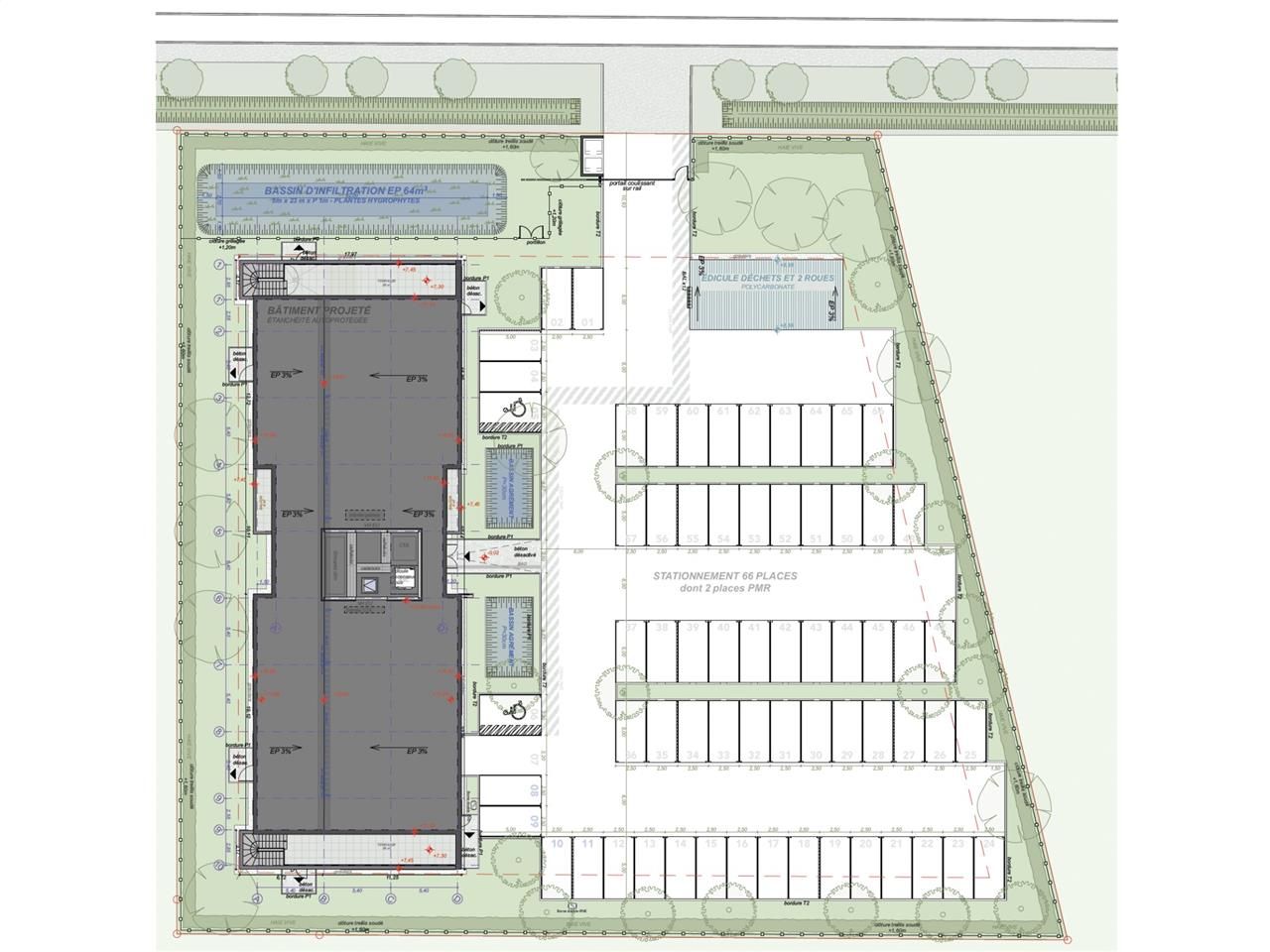
- Immeuble tertiaire à vendre, réalisé en ossature poteaux/poutres en bois massif, élevé en R+2 représentant environ 2 000 m².
- /Les lots 0.01 & 1.01 sont loués soit 847,5 m² - Dossier complet et état locatif sur demande/
- AMENAGEMENTS :
- Objectif : RT 2012 - 10%
- ERP 5ème catégorie
- Terrasses en bois à tous les étages
- Climatisation et chauffage par pompes à chaleur, liaison 2 tubes
- Ventilation double flux
- Plateaux prêts à l'utilisation (hors cloisonnement et courants faibles)
- Sanitaires privatifs
- Douche commune par plateau (1 par étage)
- Grand parking
- Surface RDC : 712,9 m²
Accessibilité:
Autoroute Accès direct aux Autoroutes du Nord (A28) et A13 via le tunnel de la Grand Mare
SNCF à 10 min du centre ville de Rouen et de la Gare SNCF
Les informations sur les risques auxquels ce bien est exposé sont disponibles sur le site Géorisques : www.georisques.gouv.fr
Voir plus
Afficher les consommations énergétiques
Localisation et transport aux alentours
Favoris
Exporter
Appeler
Contacter
Signaler cette annonce
