Avec près de 80 implantations en France, Arthur Loyd est le premier Réseau National de Conseil en Immobilier d’Entreprise. Nous vous accompagnons dans vos projets sur l’ensemble du territoire natio ...
En savoir plus

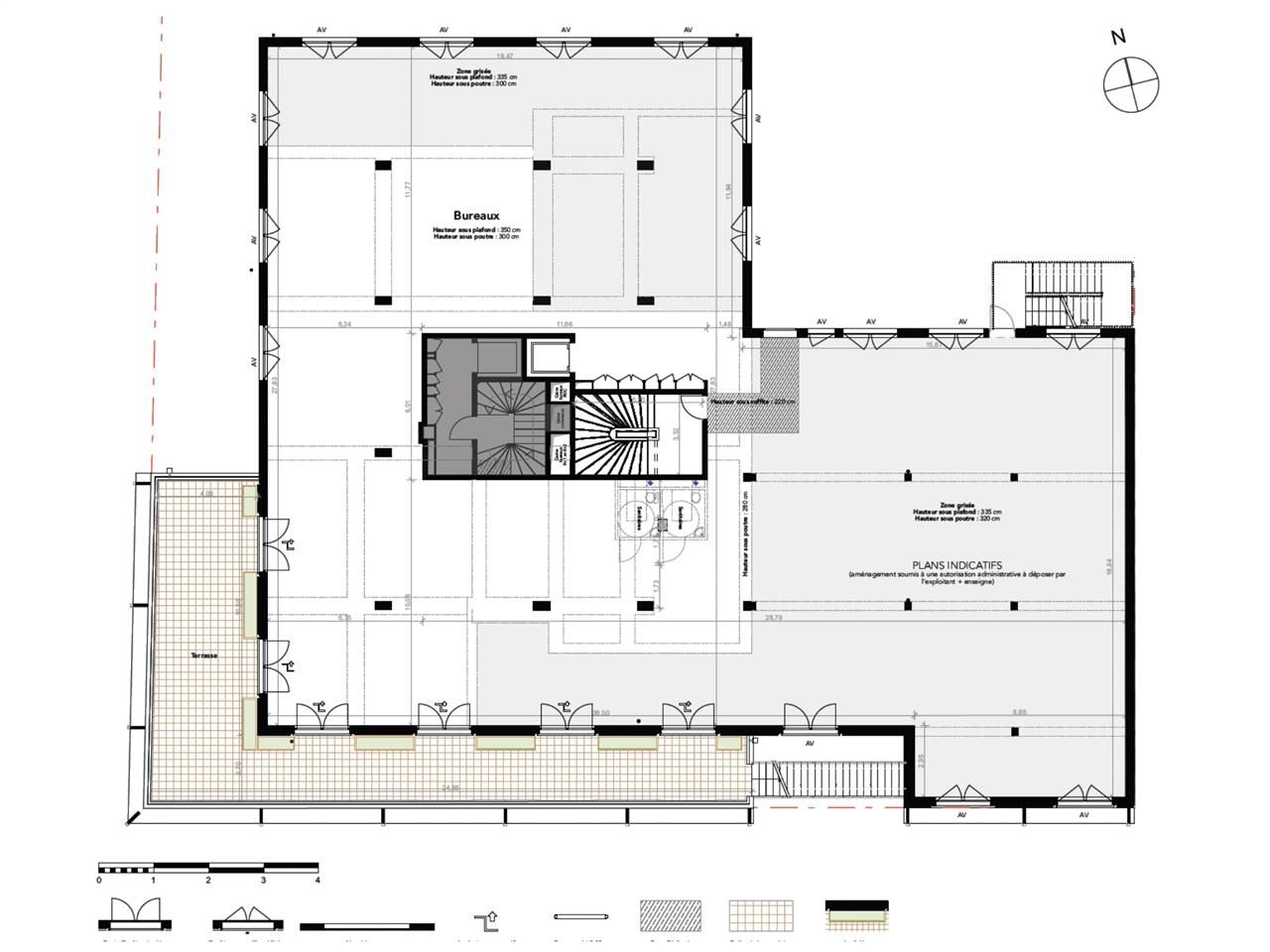
766 m² divisible dès 15 m²
Bureau à vendre - 766 m²
Rouen (76000)
Dernière mise à jour : Il y a 4 mois
Vente Bureaux à ROUEN QUARTIER LUCILINE
Emplacement très recherché à Rouen - en bord de Seine - un plateau de bureaux situé au 2ème étage d'un programme mixte avec parking en sous-sol
Bureaux de standing dans un quartier recherché au pied de la Seine. Un plateau de bureau dans un immeuble mixte : habitations, bureaux, commerces.
Régime Fiscal : TVA
Honoraires : 2,5% du prix de vente HT à la charge de l'acquéreur
Prestations :
Accessibilité:
Autoroute Accès à l'A13 par pont Flaubert et SUD III direction Paris, Le Havre, Caen.
SNCF Gare à 15 minutes
Bus Nombreuses lignes de transport à proximité
Les informations sur les risques auxquels ce bien est exposé sont disponibles sur le site Géorisques : www.georisques.gouv.fr
Emplacement très recherché à Rouen - en bord de Seine - un plateau de bureaux situé au 2ème étage d'un programme mixte avec parking en sous-sol
Bureaux de standing dans un quartier recherché au pied de la Seine. Un plateau de bureau dans un immeuble mixte : habitations, bureaux, commerces.
| Étage | Type | Surfaces | Dispo | Prix(m²) | Charges | Honoraires | Fiscal |
|---|---|---|---|---|---|---|---|
| 2 | Bureaux | 751,47 | Immédiate | 1669,17 m² HD | n.c. | 2,5% du prix de vente HT à la charge de l'acquéreur | TVA |
| RDC Stock. | Activités | 15 | Immédiate | 1000 m² HD | n.c. | 2,5% du prix de vente HT à la charge de l'acquéreur | TVA |
| Parkings | Immédiate | 15000 U HD | n.c. | 2,5% du prix de vente HT à la charge de l'acquéreur | TVA |
Régime Fiscal : TVA
Honoraires : 2,5% du prix de vente HT à la charge de l'acquéreur
Prestations :
- Idéalement situé, au coeur d'un quartier mixte très recherché, avec tous types de services (commerces et restauration à proximité).
- L'immeuble en R+10 Lisière en Seine - à Rouen Rive Droite - comprend aujourd'hui des commerces en pied d'immeuble, plusieurs plateaux de bureaux sur 2 niveaux et 65 logements.
- DISPONIBLE A LA VENTE - Un plateau de bureaux au 2ème étage avec terrasse privative de plus de 100 m2 & un local à usage de stockage, au rez-de-chaussée, d'environ 15 m2.
- Les bureaux sont livrés brut de béton, fluides en attente.
- 8 Places de parking sont disponibles à la vente.
Accessibilité:
Autoroute Accès à l'A13 par pont Flaubert et SUD III direction Paris, Le Havre, Caen.
SNCF Gare à 15 minutes
Bus Nombreuses lignes de transport à proximité
Les informations sur les risques auxquels ce bien est exposé sont disponibles sur le site Géorisques : www.georisques.gouv.fr
Emplacement(s) de Parking: 9 places
Voir plus
Afficher les consommations énergétiques
Localisation et transport aux alentours
Favoris
Exporter
Appeler
Contacter
Signaler cette annonce
