L''Agence BNP Paribas Real Rouen accompagne les entreprises et les investisseurs dans tous leurs projets immobiliers.Experts du marché rouennais, notre équipe possède une excellente connaissance du ...
En savoir plus

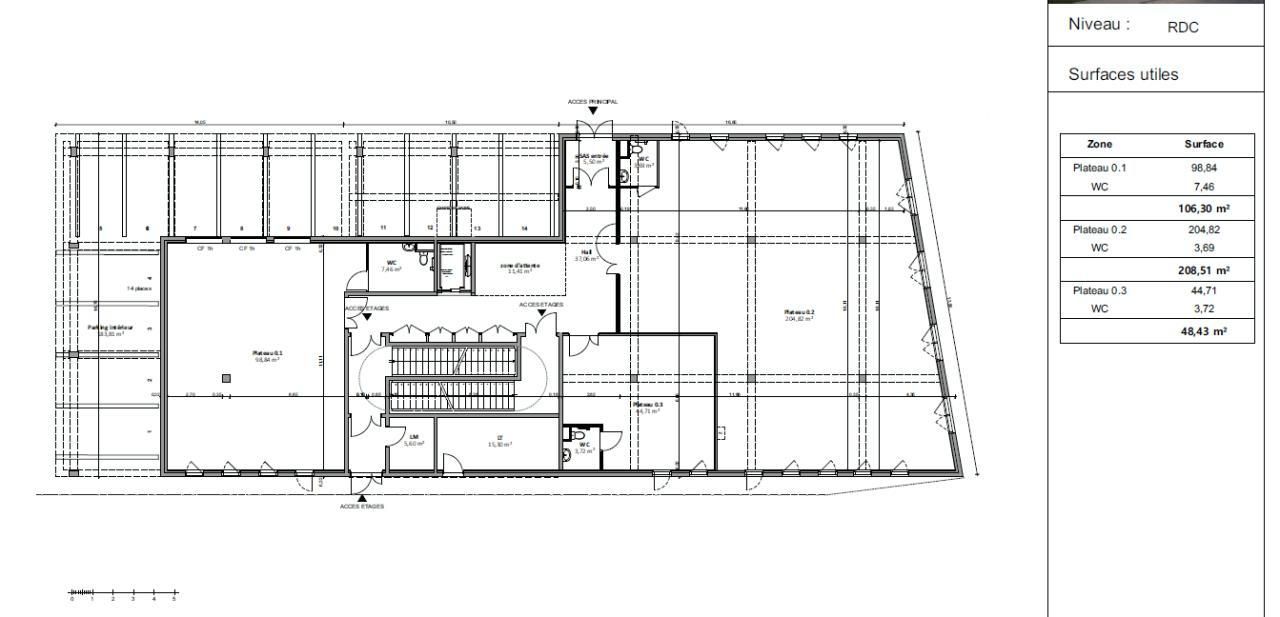
Bureau à vendre - 2566 m²
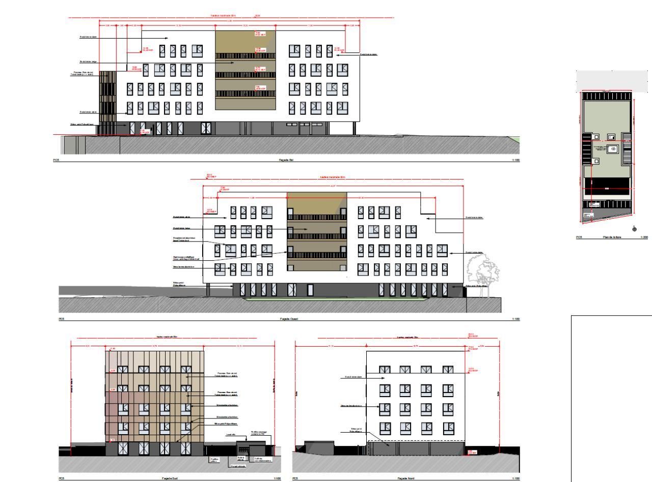
BNP PARIBAS REAL ESTATE vous présente à la vente, un immeuble tertiaire au coeur du Campus Hospitalo-Universitaire de Rouen, de près de 6 hectares dédié aux entreprises dans le domaine de la santé et du bien être.
Situé rue Marie Curie, cet immeuble propose plusieurs lots à la vente, de 50 à 2340m².
Btiment conforme à la RE2020 (btiment très performant), construction durable et maitrise des consommation énergétiques.
Système de chaud/froid réversible par pompe à chaleur, éclairage LED encastré, construction réalisé avec des matériaux bas carbone de qualité.
Plateaux prêts à aménager, accompagnement possible pour les aménagements.Btiment ERP 4ème catégorie pouvant accueillir 276 personnes. 28 places de stationnement privatives et sécurisées, accessibilité en transports en commun, et dépose minute pour les taxis et ambulances. Parking vélos couvert.
Disponibilité: 24 mois après accord
Honoraires: 3% HT du prix HT/HD. à la signature de l'acte
