L''Agence BNP Paribas Real Rouen accompagne les entreprises et les investisseurs dans tous leurs projets immobiliers.Experts du marché rouennais, notre équipe possède une excellente connaissance du ...
En savoir plus

Bureau à vendre - 634 m²
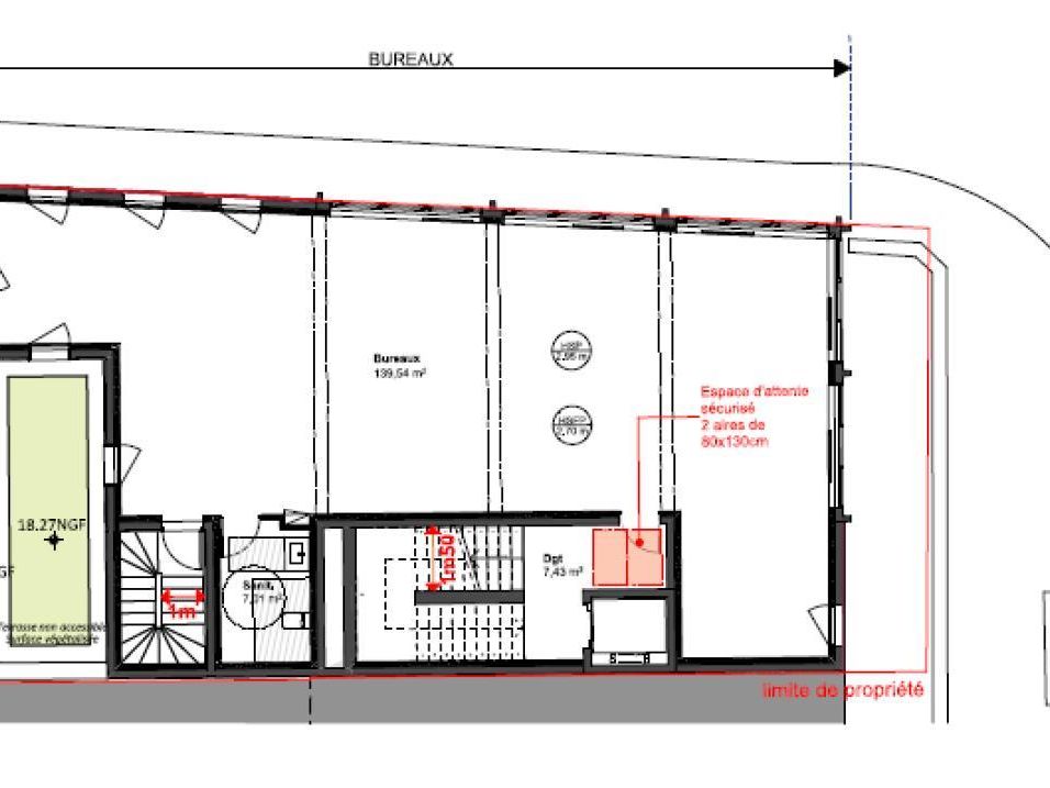
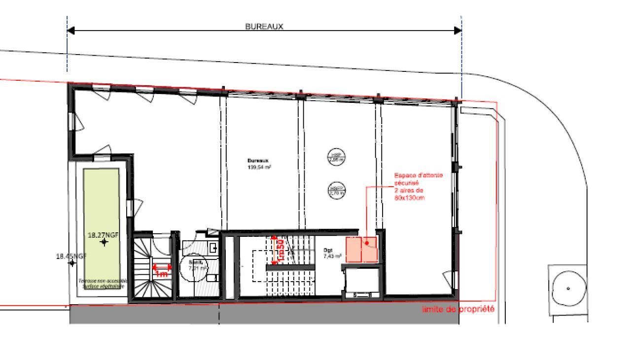
Immeuble indépendant tertaire à vendre, d'une superficie totale d'environ 633 m2 en R+4, avec 7 places de stationnement privatives en sous-sol (sécurisé).
Idéal profession libéral, ce bâtiment sera livré paysagé : revêtement de sol, murs périphériques isolés et peints, faux plafond réalisé avec édclairage dalles led encastrées, et système de chaud/froid réversible par PAC (pompe à chaleur).
Sanitaire réalisé à chaque étage.
Terrasse privative au dernier étage.
Bâtiment basse consommation, idéalement situé dans le centre ville de Rouen, au pied de tous les services.
Nous contacter pour tout complément d'information.
Programme neuf de bureau situé au pied de la préfecture et de l'université. Au sein d'un immeuble HQE, Un plateau de bureau disponible en VEFA de 117,20m² au 4ème étage d'un immeuble neufImmeuble indépendant tertaire à vendre, d'une superficie totale d'environ 633 m2 en R+4, avec 7 places de stationnement privatives en sous-sol (sécurisé).
Idéal profession libéral, ce bâtiment sera livré paysagé : revêtement de sol, murs périphériques isolés et peints, faux plafond réalisé avec édclairage dalles led encastrées, et système de chaud/froid réversible par PAC (pompe à chaleur).
Sanitaire réalisé à chaque étage.
Terrasse privative au dernier étage.
Bâtiment basse consommation, idéalement situé dans le centre ville de Rouen, au pied de tous les services.
Nous contacter pour tout complément d'information.
Disponibilité: 18 mois après accordHonoraires: 2.5% HT du prix HT/HD. à la signature de l'acte
| Fiche technique du bien | |
|---|---|
| Bus | à proximité des lignes de TEOR 100 m |
| Desserte routière | Accès rapide à l'A28 l'A13 et l'A150 |
| Gare | Rouen RD Gare de Rouen à 10 minutes en voiture |
| Accès Pers. Mobilité Réduite | Ascenseur |
| Parking(s) | 7 Places Parking en sous-sol sécurisé |
| Climatisation | Réversible |
| Accueil | Hall d'accueil |
| Ascenseur(s) | Oui |
| Faux plafond | Oui |
| Eclairage Bureaux | Luminaires encastrés Dalles LED |
| Sol bureaux | Moquette Moquette au sol (autre possible) |
| Sanitaire(s) | Privatif(s) Sanitaire à chaque étage |










