Acquisition, location, clé en main, l’équipe de Cushman & Wakefield Rennes conseille depuis 2003 les décisionnaires dans leurs projets immobiliers sur la région de Rennes. Nous vous accompagnons da ...
En savoir plus

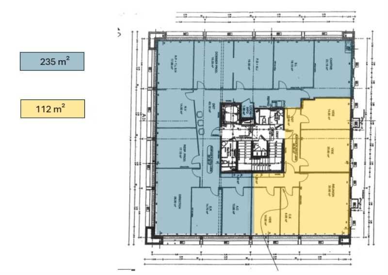
347 m² divisible dès 112 m²
METROPOLIS II - Bureau à vendre - 347 m²
Rennes (35000)
Dernière mise à jour : Il y a 28 jours
RENNES - ZAC SAINT SULPICE
A VENDRE A LOUER
BUREAUX 347 M² DIVISIBLES
Immeuble METROPOLIS II
Cushman & Wakefield Rennes vous propose à la vente ou à la location un plateau de bureau de 347 m² aménagé et cloisonné.
L'actif est divisible en 2 plateaux
L'un de 112 m² avec 4 stationnements au prix de 216 000 euros HD H Honoraires.
L'autre de 235 m² avec 7 parkings au prix de 454 000 euros HD H Honoraires.
Baies de brassage
Plinthes périphériques, prises RJ 45.
Locaux climatisés
Impôt Foncier : 26,8 €//m²/an
Régime Fiscal : Droits d'enregistrement
Dépôt de garantie : 3 mois de loyer en principal HT/HC
Paiement Loyer : Mensuel
Honoraires : 7% HT du prix de vente HD à la charge de l'acquéreur
Prestations :
Les informations sur les risques auxquels ce bien est exposé sont disponibles sur le site Géorisques : www.georisques.gouv.fr
Immeuble METROPOLIS II
Cushman & Wakefield Rennes vous propose à la vente ou à la location un plateau de bureau de 347 m² aménagé et cloisonné.
L'actif est divisible en 2 plateaux
L'un de 112 m² avec 4 stationnements au prix de 216 000 euros HD H Honoraires.
L'autre de 235 m² avec 7 parkings au prix de 454 000 euros HD H Honoraires.
Baies de brassage
Plinthes périphériques, prises RJ 45.
Locaux climatisés
| Étage | Type | Surfaces | Dispo | Prix(m²) | Charges | Honoraires | Fiscal |
|---|---|---|---|---|---|---|---|
| 2 | Bureaux | 235 | Immédiate | 1933,76 /m² HD.HT | 48,94 HT/m²/an | 7% HT du prix de vente HD à la charge de l'acquéreur | Droits d'enregistrement |
| 2 | Bureaux | 112 | Immédiate | 1942,03 /m² HD.HT | n.c. | 7% HT du prix de vente HD à la charge de l'acquéreur | Droits d'enregistrement |
Impôt Foncier : 26,8 €//m²/an
Régime Fiscal : Droits d'enregistrement
Dépôt de garantie : 3 mois de loyer en principal HT/HC
Paiement Loyer : Mensuel
Honoraires : 7% HT du prix de vente HD à la charge de l'acquéreur
Prestations :
- Faux plafonds
- Cloisons seiches
- baie de brassage
- plinthes périphériques
- Prises RJ 45
- Climatisation / PACS neuves 2024
- Sanitaires partagés
- Possibilité de vente globale des deux lots
- 3 bureaux
1 salle de réunion
1 local serveur
2 parkings aériens: 26/27
2 parkings Sous sol: 10/11 - 5 bureaux
2 opens spaces
1 cafétaria avec point d'eau
1 local info
4 parkings aériens: 22/23/24/25
3 parkings Sous sol: 12/13/14
Les informations sur les risques auxquels ce bien est exposé sont disponibles sur le site Géorisques : www.georisques.gouv.fr
11 Parking(s) VL
Voir plus
Afficher les consommations énergétiques
Localisation et transport aux alentours
- Beaulieu-Université1.3km (19min à pied)B*
- Atalante1.3km (20min à pied)B*
Favoris
Exporter
Appeler
Contacter
Signaler cette annonce
