

380 m²
Bureau à vendre - 380 m²
Paris 15 (75015)
Dernière mise à jour : Hier
CBRE numéro 1 mondial en immobilier d'entreprise vous propose d'acquérir une surface commerciale indépendante sur rue au sein d'un immeuble mixte de très bon standing. Ce local est vendu curé et climatisé . Ce bien est PMR et ERPABLE, il jouit de beaux volumes qui vous permettront des aménagements adaptés à vos besoins. Ces locaux se situent à proximité du métro ligne 8 et 10.
Régime Fiscal : Droits d'enregistrement
Honoraires : A la charge de l'acquéreur
Prestations :
Accessibilité:
Bus RUE ROUELLE (42)
Metro La Motte-Picquet-Grenelle (8), Avenue Emile-Zola (10), Dupleix (6)
RER Champ de Mars Tour Eiffel (C)
Les informations sur les risques auxquels ce bien est exposé sont disponibles sur le site Géorisques : www.georisques.gouv.fr
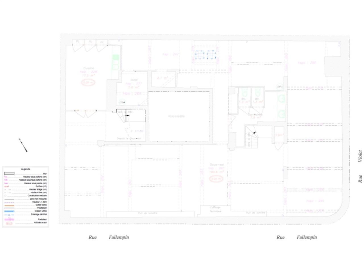
| Étage | Type | Surfaces | Dispo | Prix(m²) | Charges | Honoraires | Fiscal |
|---|---|---|---|---|---|---|---|
| RDC | Bureaux | 160 | 1 mois ap. acc. | n.c. | n.c. | A la charge de l'acquéreur | Droits d'enregistrement |
| SS | Bureaux | 220 | 1 mois ap. acc. | n.c. | n.c. | A la charge de l'acquéreur | Droits d'enregistrement |
Régime Fiscal : Droits d'enregistrement
Honoraires : A la charge de l'acquéreur
Prestations :
- Les locaux sont livrés curés
- Lot indépendant dans la copropriété
- Lumière en 1 er jour sur une partie du sous sol
- (création de fenêtre quasi toute hauteur)
- Entrée indépendante sur rue
- Grands espaces ouverts
- Faibles contraintes porteuses
- Cuisine
- Etages reliés entre eux par un escalier intérieur
- Chauffage indépendant
- Climatisation
- Fibre optique
- Surface et affectation : en cours de validation
- Surface RDC : 160 m²
Accessibilité:
Bus RUE ROUELLE (42)
Metro La Motte-Picquet-Grenelle (8), Avenue Emile-Zola (10), Dupleix (6)
RER Champ de Mars Tour Eiffel (C)
Les informations sur les risques auxquels ce bien est exposé sont disponibles sur le site Géorisques : www.georisques.gouv.fr
Voir plus
Afficher les consommations énergétiques
Favoris
Exporter
Appeler
Contacter
Signaler cette annonce










