L’équipe Bureaux Vente Paris IDF de Bnp Paribas Real Estate compte 11 collaborateurs, spécialisés dans la vente et l’acquisition de bureaux vides, qui interviennent sur les secteurs de Paris, du Cr ...
En savoir plus

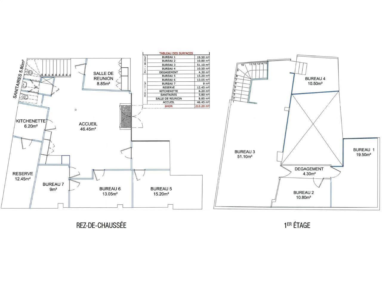
Bureau à vendre - 213 m²
A proximité du métro Commerce, BNP Paribas Real Estate vous propose d’acquérir des locaux en R+1 avec une entrée indépendante sur cour. Surface locative : 213,20 m² - Surface au sol : environ 230 m² (en attente d'un relevé loi Carrez)
L’actif est détenu en copropriété avec un fonctionnement indépendant.
Les locaux, climatisés, sont organisés en un grand accueil, de nombreux bureaux avec cloisonnement semi vitré amovible, une salle de réunion, une kitchenette, deux sanitaires et des réserves. Il dispose de la jouissance exclusive de la petite cour entre les locaux et la loge de la gardienne.
Les locaux sont idéalement situés à 1 minute à pied de la station Commerce, à 7 minutes à pied de la station Avenue Emile Zola et à 1 station de métro de La Motte-Picquet Grenelle.
N’hésitez plus et venez découvrir ce bien.
Disponibilité: Nous consulterHonoraires: Nous consulter. à la signature de l'acte
| Fiche technique du bien | |
|---|---|
| Métro | M8 Commerce |
| Bus | 70 88 |
| Etat de l'immeuble | Etat d'usage |
| Immeuble copropriété | Fonctionnement indépendant |
| Climatisation | Oui |
| Accueil | Oui |
| Sécurité | Oui |
| Aménagement des bureaux | Cloisonnés/Ouverts Cloisonnement amovible |
| Hauteur sous-plafond | Beaux volumes |
| Eclairage Bureaux | Spots & toit-verrière avec stores |
| Sol bureaux | Moquette |
| Sanitaire(s) | Oui |










