Conseil en immobilier d'entreprise, Cushman & Wakefield est un acteur incontournable au rayonnement international. Cushman & Wakefield offre des solutions dans toutes les étapes que comporte un p ...
En savoir plus

1 060 m²
Bureau à vendre - 1060 m²
Paris 15 (75015)
Dernière mise à jour : Il y a 2 mois
Découvrez un espace de travail exceptionnel au coeur de Paris !
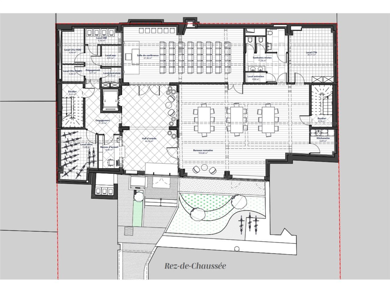
Situé au 96, Rue des Entrepreneurs, dans le dynamique 15ème arrondissement, cet immeuble indépendant entièrement restructuré offre 1 060 m² de bureaux, prêts à accueillir votre entreprise. Profitez d'un bâtiment atypique et industriel en R+3, avec des verrières et patios qui apportent une luminosité naturelle incomparable. Accessible aux personnes à mobilité réduite, cet espace est équipé d'un ascenseur, de tisaneries, et d'un local vélo pour le confort de vos employés. Les plateaux sont livrés neufs, avec des espaces ouverts et des salles de réunion modulables, moquette et parquet, et une climatisation réversible pour un environnement de travail optimal.
Ne manquez pas cette opportunité unique de vous installer dans un quartier prisé de Paris, avec une accessibilité optimale grâce aux lignes de métro 8 et 10.
Faites de votre lieu de travail un véritable atout pour votre entreprise !
Impôt Foncier : 15000 €//an
Prestations :
Accessibilité:
Métro Félix Faure (ligne 8)
Métro Avenue Emile-Zola (ligne 10)
Bus Lignes 70-88
Les informations sur les risques auxquels ce bien est exposé sont disponibles sur le site Géorisques : www.georisques.gouv.fr
Situé au 96, Rue des Entrepreneurs, dans le dynamique 15ème arrondissement, cet immeuble indépendant entièrement restructuré offre 1 060 m² de bureaux, prêts à accueillir votre entreprise. Profitez d'un bâtiment atypique et industriel en R+3, avec des verrières et patios qui apportent une luminosité naturelle incomparable. Accessible aux personnes à mobilité réduite, cet espace est équipé d'un ascenseur, de tisaneries, et d'un local vélo pour le confort de vos employés. Les plateaux sont livrés neufs, avec des espaces ouverts et des salles de réunion modulables, moquette et parquet, et une climatisation réversible pour un environnement de travail optimal.
Ne manquez pas cette opportunité unique de vous installer dans un quartier prisé de Paris, avec une accessibilité optimale grâce aux lignes de métro 8 et 10.
Faites de votre lieu de travail un véritable atout pour votre entreprise !
| Étage | Type | Surfaces | Dispo | Prix(m²) | Charges | Honoraires | Fiscal |
|---|---|---|---|---|---|---|---|
| Sup. Disp. | Bureaux | 1060 | 13208 /m² HD.HT | n.c. |
Impôt Foncier : 15000 €//an
Prestations :
- Immeuble sur cour, atypique et industriel en R+3, entièrement restructuré
- Roofto de 100 m²
- Accès PMR
- Ascenseur
- Local vélo
- Les plateaux sont livrés neufs
- Accessibilité PMR
- Espaces ouverts et salles de réunions
- Possibilité d'aménagement multiple
- Moquette et parquet
- Technique apparente
- 9 Sanitaires
- Climatisation réversible
Accessibilité:
Métro Félix Faure (ligne 8)
Métro Avenue Emile-Zola (ligne 10)
Bus Lignes 70-88
Les informations sur les risques auxquels ce bien est exposé sont disponibles sur le site Géorisques : www.georisques.gouv.fr
Voir plus
Afficher les consommations énergétiques
Favoris
Exporter
Appeler
Contacter
Signaler cette annonce










