

195 m²
Bureau à vendre - 195 m²
Paris 15 (75015)
Dernière mise à jour : Il y a 2 jours
CBRE vous propose à la vente un local commercial/bureaux de 195 m², idéalement situé à deux pas de la rue du Commerce, dans un immeuble d'angle avec excellente visibilité. Entrée indépendante, accès PMR, monte-charge, climatisation réversible, double vitrage. Espaces lumineux et modulables sur 3 niveaux : open space, bureaux, cuisine, sanitaires, stockage. ERPABLE et prêt à accueillir votre activité.
Régime Fiscal : Droits d'enregistrement
Honoraires : A la charge de l'acquéreur
Prestations :
Accessibilité:
Bus FELIX FAURE (70, 88)
Metro Félix Faure (8), Avenue Emile-Zola (10)
Les informations sur les risques auxquels ce bien est exposé sont disponibles sur le site Géorisques : www.georisques.gouv.fr
| Étage | Type | Surfaces | Dispo | Prix(m²) | Charges | Honoraires | Fiscal |
|---|---|---|---|---|---|---|---|
| SS | Bureaux | 26,5 | Immédiate | n.c. | 26 m²/an HT | A la charge de l'acquéreur | Droits d'enregistrement |
| RDC | Bureaux | 98,15 | Immédiate | n.c. | 26 m²/an HT | A la charge de l'acquéreur | Droits d'enregistrement |
| 1 | Bureaux | 70,2 | Immédiate | n.c. | 26 m²/an HT | A la charge de l'acquéreur | Droits d'enregistrement |
Régime Fiscal : Droits d'enregistrement
Honoraires : A la charge de l'acquéreur
Prestations :
- ERP : ERPable
- Immeuble d'angle
- Grand linéaire de façade
- Entrée indépendante sur rue
- Accès PMR
- Monte-charge
- Climatisation réversible
- Double vitrage
- Peu de contraintes porteuses
- Moquette
- Faux plafond
- Local technique
- 3 issues de secours
- Local ERPEABLE
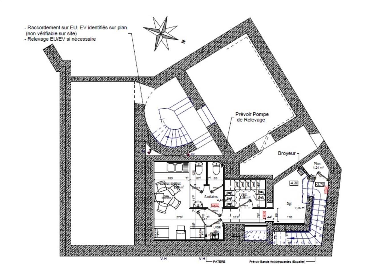
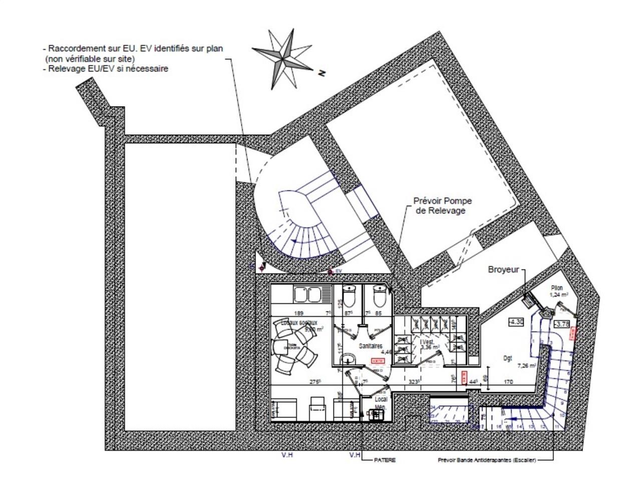
- RDC :
- Open space
- Espace accueil
- 1 bureau
- Local stockage
- Local clim
- 1ER ETAGE :
- 5 bureaux
- SOUS-SOL :
- 2 sanitaires
- Stockage
- Cuisine
- Surface et affectation : en cours de validation
- Surface RDC : 98,15 m²
Accessibilité:
Bus FELIX FAURE (70, 88)
Metro Félix Faure (8), Avenue Emile-Zola (10)
Les informations sur les risques auxquels ce bien est exposé sont disponibles sur le site Géorisques : www.georisques.gouv.fr
Voir plus
Afficher les consommations énergétiques
Favoris
Exporter
Appeler
Contacter
Signaler cette annonce









