

152 m²
Bureau à vendre - 152 m²
Paris 15 (75015)
Dernière mise à jour : Hier
CBRE vous propose des bureaux à vendre complètement rénovés à toute proximité de la rue du Commerce et du boulevard de Grenelle. Venez découvrir ces bureaux, idéalement situés en rez-de-chaussée. Entièrement rénovés avec des matériaux de qualité, ces espaces offrent un environnement de travail optimal. Profitez des espaces et d'un design contemporain, créant une atmosphère inspirante. Avec une localisation stratégique et des installations modernes, ces bureaux sont parfaits pour les entreprises à la recherche d'un espace professionnel de premier ordre. Ne manquez pas cette opportunité unique d'acquérir des bureaux prêts à l'emploi.
Impôt Foncier : 30 €/m²/an
Régime Fiscal : Droits d'enregistrement
Honoraires : A la charge de l'acquéreur
Taxe Bureau : 24,3 €/m²/an
Prestations :
Accessibilité:
Bus LA MOTTE PICQUET - GRENELLE (80)
Metro La Motte-Picquet-Grenelle (6, 8), Avenue Emile-Zola (10)
RER Champ de Mars Tour Eiffel (C)
Les informations sur les risques auxquels ce bien est exposé sont disponibles sur le site Géorisques : www.georisques.gouv.fr
| Étage | Type | Surfaces | Dispo | Prix(m²) | Charges | Honoraires | Fiscal |
|---|---|---|---|---|---|---|---|
| RDC | Bureaux | 151,96 | Immédiate | n.c. | 44 m²/an HT | A la charge de l'acquéreur | Droits d'enregistrement |
Impôt Foncier : 30 €/m²/an
Régime Fiscal : Droits d'enregistrement
Honoraires : A la charge de l'acquéreur
Taxe Bureau : 24,3 €/m²/an
Prestations :
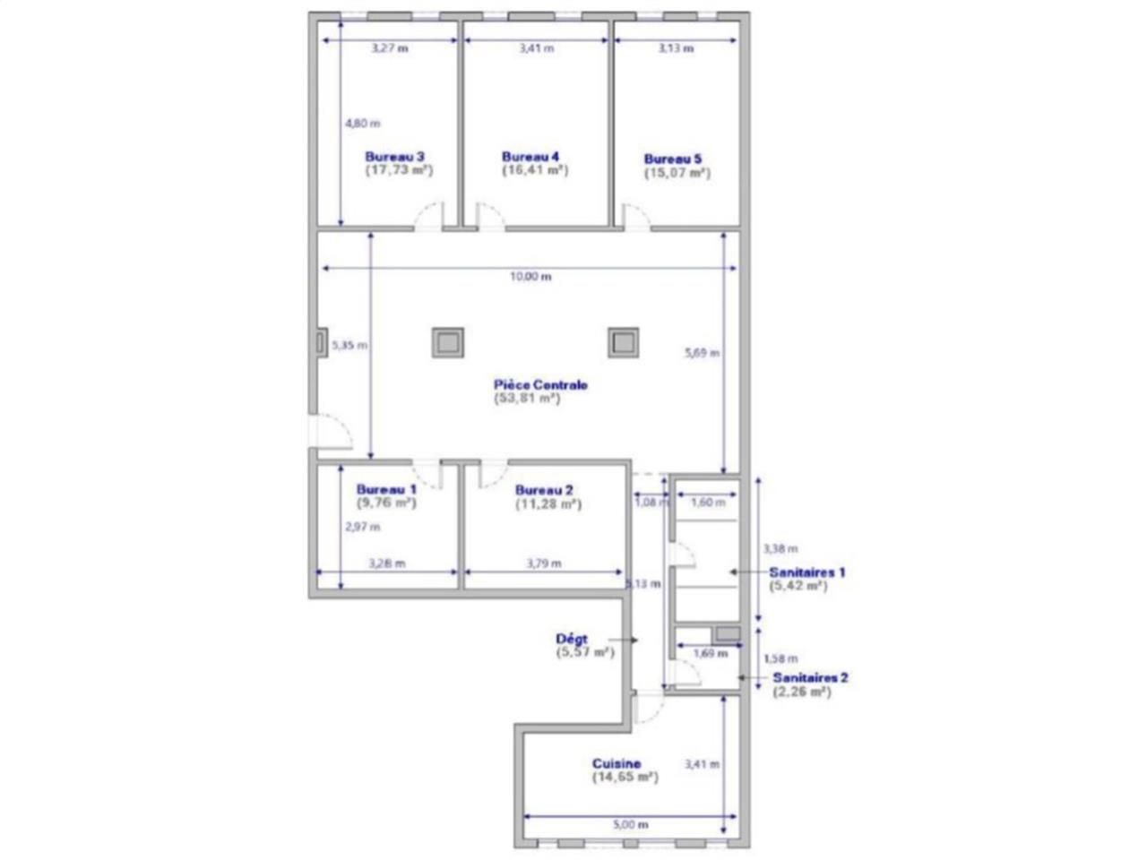
- Surface de 151,96 m² loi Carrez situés au rez-de-chaussée du bâtiment B, escalier 2 (lots n°134 et n°136)
- Un dépôt de boutique (lot n°134 au sous sol du bâtiment B, escalier 5 complète l'actif
- Accueil
- Espaces ouverts et cloisonnés
- Cloisonnement semi vitré type verrière
- Salle de réunion
- Cuisine avec espace de repos
- Sanitaires
- Parquet
- Dalles LED et spots
- Surface et affectation : en cours de validation
- Surface RDC : 151,96 m²
Accessibilité:
Bus LA MOTTE PICQUET - GRENELLE (80)
Metro La Motte-Picquet-Grenelle (6, 8), Avenue Emile-Zola (10)
RER Champ de Mars Tour Eiffel (C)
Les informations sur les risques auxquels ce bien est exposé sont disponibles sur le site Géorisques : www.georisques.gouv.fr
Voir plus
Afficher les consommations énergétiques
Favoris
Exporter
Appeler
Contacter
Signaler cette annonce









