Nous sommes Immprove, une grande équipe de plus de 200 experts en immobilier d’entreprise, implantés localement avec plus de 20 agences sur tout le territoire.Depuis 2009, notre proximité, notre ét ...
En savoir plus

653 m²
Bureau à vendre - 653 m²
Paris 14 (75014)
Dernière mise à jour : Il y a 3 jours
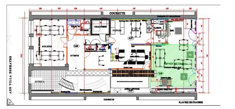
Entre les métros "Alésia" et "Plaisance" et à proximité du Tramway T3, Immprove vous propose à la vente un immeuble indépendant R+2 développant 653 m² de bureaux. Les locaux sont atypiques, climatisés et bénéficie d'une superbe verrière et d'une terrasse d'environ 23 m². Idéal pour des sociétés de communication, d'architectes, d'informatique...
Impôt Foncier : 21 €//m²/an
Régime Fiscal : Droits d'enregistrement
Honoraires : 5 % HT du prix de vente HD à la charge de l'acquéreur
Prestations :
Accessibilité:
Bus HOPITAUX BROUSSAIS ET SAINT-JOSEPH (58)
Tram DIDOT (T3, T3a)
SNCF Paris Montparnasse (N)
Les informations sur les risques auxquels ce bien est exposé sont disponibles sur le site Géorisques : www.georisques.gouv.fr
| Étage | Type | Surfaces | Dispo | Prix(m²) | Charges | Honoraires | Fiscal |
|---|---|---|---|---|---|---|---|
| 2 | Bureaux | 46 | 1er juin 2025 | 8805,51 m² HD | n.c. | 5 % HT du prix de vente HD à la charge de l'acquéreur | Droits d'enregistrement |
| 1 | Bureaux | 213 | 1er juin 2025 | 8805,51 m² HD | n.c. | 5 % HT du prix de vente HD à la charge de l'acquéreur | Droits d'enregistrement |
| RDC | Bureaux | 244 | 1er juin 2025 | 8805,51 m² HD | n.c. | 5 % HT du prix de vente HD à la charge de l'acquéreur | Droits d'enregistrement |
| RDJ | Bureaux | 150 | 1er juin 2025 | 8805,51 m² HD | n.c. | 5 % HT du prix de vente HD à la charge de l'acquéreur | Droits d'enregistrement |
Impôt Foncier : 21 €//m²/an
Régime Fiscal : Droits d'enregistrement
Honoraires : 5 % HT du prix de vente HD à la charge de l'acquéreur
Prestations :
- Locaux atypiques
- Double accès : Villa Deshayes et rue Ledion
- Espaces ouverts et de bureaux cloisonnés
- Salles de réunion
- Cloisonnement vitré de qualité
- Locaux lumineux
- Magnifique verrière
- Parquet au sol
- Terrasse de 23 m²
- Climatisation réversible
- Alarme
- Câblage RJ45
- Chaudière au gaz
- Cuisine
- Immeuble indépendant
- Surface RDC : 394 m²
Accessibilité:
Bus HOPITAUX BROUSSAIS ET SAINT-JOSEPH (58)
Tram DIDOT (T3, T3a)
SNCF Paris Montparnasse (N)
Les informations sur les risques auxquels ce bien est exposé sont disponibles sur le site Géorisques : www.georisques.gouv.fr
Voir plus
Afficher les consommations énergétiques
Favoris
Exporter
Appeler
Contacter
Signaler cette annonce
