Nous sommes Immprove, une grande équipe de plus de 200 experts en immobilier d’entreprise, implantés localement avec plus de 20 agences sur tout le territoire.Depuis 2009, notre proximité, notre ét ...
En savoir plus

198 m²
Bureau à vendre - 198 m²
Paris 10 (75010)
Dernière mise à jour : Il y a 3 jours
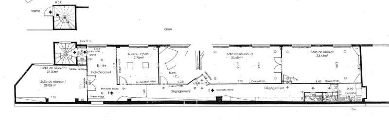
IMMPROVE cette surface de bureaux de 198m², idéalement située à deux pas du métro Goncourt et Colonel Fabien, au sein d'un immeuble en copropriété calme, et pleine de charme. Ce plateau lumineux se distingue par une belle hauteur sous plafond, apportant une agréable sensation d'espace, ainsi qu'un plan entièrement modulable, sans contrainte porteuse, permettant une grande souplesse d'aménagement selon les besoins de votre activité (espaces ouverts, bureaux cloisonnés, salles de réunion, etc.).Un bien rare dans le secteur, offrant un cadre de travail fonctionnel et confortable, à proximité immédiate des transports et de nombreux commerces.
Impôt Foncier : 18 €/
Régime Fiscal : Droits de mutation
Honoraires : 5% HT du prix de vente à la charge de l'acquéreur
Taxe Bureau : 25,31 €/m²/an
Prestations :
Accessibilité:
SNCF Gare de l'Est (P)
Métro Colonel Fabien (2)
Métro Belleville (2,11)
Métro Bolivar (7bis)
Métro Jaurès (2,5,7bis)
Métro Château Landon (7)
Métro Gare de l'Est (4,5,7)
Métro République (3,5,8,9,11)
Bus Sambre et Meuse (46,75)
Bus Atlas (26)
Les informations sur les risques auxquels ce bien est exposé sont disponibles sur le site Géorisques : www.georisques.gouv.fr
| Étage | Type | Surfaces | Dispo | Prix(m²) | Charges | Honoraires | Fiscal |
|---|---|---|---|---|---|---|---|
| 1 | Bureaux | 198 | Après accord | 6868,69 m² HD | 26 m²/an HT | 5% HT du prix de vente à la charge de l'acquéreur | Droits de mutation |
| RDC | Parkings | Après accord | 20000 m² HD | n.c. | 5% HT du prix de vente à la charge de l'acquéreur | Droits de mutation |
Impôt Foncier : 18 €/
Régime Fiscal : Droits de mutation
Honoraires : 5% HT du prix de vente à la charge de l'acquéreur
Taxe Bureau : 25,31 €/m²/an
Prestations :
- Immeuble style atelier
- Accès PMR
- Double accès
- Cour
- Interphone
- Chauffage gaz
- Fibre optique
- Etat d'usage
- Accueil
- Bureaux cloisonnés
- Salle de réunion
- Espace détente
- Local technique
- Cuisine
- Sanitaires privatifs
- Belle hauteur sous plafond
- Locaux lumineux
Accessibilité:
SNCF Gare de l'Est (P)
Métro Colonel Fabien (2)
Métro Belleville (2,11)
Métro Bolivar (7bis)
Métro Jaurès (2,5,7bis)
Métro Château Landon (7)
Métro Gare de l'Est (4,5,7)
Métro République (3,5,8,9,11)
Bus Sambre et Meuse (46,75)
Bus Atlas (26)
Les informations sur les risques auxquels ce bien est exposé sont disponibles sur le site Géorisques : www.georisques.gouv.fr
Voir plus
Afficher les consommations énergétiques
Favoris
Exporter
Appeler
Contacter
Signaler cette annonce
