L''équipe de BNP Paribas Real Estate Nice compte 9 collaborateurs qui sont spécialisés dans la location et la vente de bureaux, entrepôts, locaux d''activités et commerces, ainsi que dans les inves ...
En savoir plus



Bureau à vendre - 6661 m²
OVBUR2422067
VENTE BUREAUX NICE LE LAB
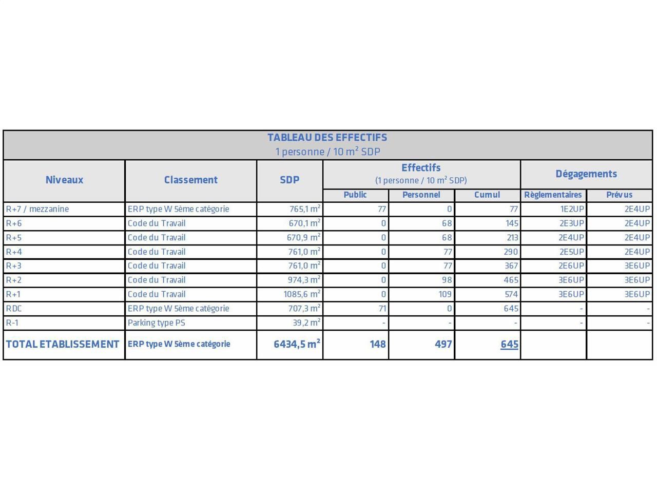
BNP Paribas Real Estate vous présente à la vente, un projet situé sur Nice Méridia qui proposera des bureaux ainsi que des laboratoires allant du R+1 au R+7.
Loffre totalisera 6.418 m² de bureaux et laboratoires dont 3.792,30 m² environ de bureaux disponibles à 4.000 €/m² HT pour les bureaux et 3.583 €/m² HT pour les laboratoires.
Les locaux seront proposés en en open space et bénéficieront de nombreuses labellisations, un hall d'accueil ainsi qu'un accès totalement sécurisé.
Les équipements et caractéristiques de l'immeuble :
Bureaux en open space
Labellisations :
Breeam Very Good,
Référentiel environnement Nice Ecovallée niveau excellent
Smart Grid Ready
Locaux classés ERP 5 Type W pour les deux derniers étages
Sanitaires privatifs avec douches
Faux plafond & faux plancher
Monte charge
Ascenseurs aux normes PMR
Hall d'accueil
Immeuble sécurisé
Accès PMR
Vous trouverez aux alentours du btiment des points de restauration, un parking public et d'autres services de proximité.
Le Lab est bien desservi par les transports en commun et via les axes routiers, qui assurent un accès direct vers la gare et l'aéroport.
Accessibilité :
A8 / 6202 Bis
Gare SNCF Multimodale à proximité
Aéroport Nice Côte d'Azur à 5 min
Station de Tramway à 5 min à pied
Bus 22, 59, 90, 741, 672, ...
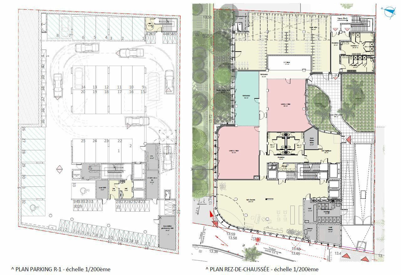
Conditions financières des parkings HT :
- VL Rglt : 41.670 €/u
- VL DUS Silo : 30.000 €/u
- Place 2 RM : 5.000 €/u
- Stationnement Vélos : 800 €/m²
Disponibilité: 27 mois après accord
Honoraires: 5% HT du prix HT/HD. à la signature de l'acte
| Fiche technique du bien | |
|---|---|
| Bus | Nombreuses lignes |
| Tramway | T3 à proximité |
| Desserte routière | A8 / 6202 Bis |
| Aéroport | Nice Cote d'Azur à 5 min |
| Gare | multimodale à proximité |
| Accès Pers. Mobilité Réduite | Oui |
| Etat de l'immeuble | à construire |
| Etat des locaux | Neuf |
| Parking(s) | public Joïa Méridia à proximité |
| Immeuble indépendant | Oui |
| Fluides en attente | Eau de ville Raccordement sur le réseau |
| Type chauffage | relié au réseau de chaleur et de refroidissement de la ville |
| Climatisation | ventilation mécanique contrôlée double flux |
| Accueil | Oui |
| Restauration | à proximité |
| Environnement de proximité | mixte |
| Sécurité | Vidéophone : au niveau de l'entrée principale et du parking |
| Ascenseur(s) | 2 appareils 1000Kg de charge admissibles / 13 personnes |
| Monte-charge(s) | 1 appareil 2000Kg de charge admissibles / 26 personnes |
| Hall d'accueil | Oui |
| Aménagement des bureaux | Espaces Ouverts En open-space |
| Bureau(x) cloisonné(s) | avec prises électriques 220V |
| Faux plancher | de type dalle champignon |
| Faux plafond | en dalles, posées sur ossature apparente laquée blanche |
| Eclairage Bureaux | Spots LED encastrées |
| Sol bureaux | de type PVC ou moquette |
| Sanitaire(s) | Parties communes avec détecteurs de mouvements |
| Autre élément bureau | Brise soleil verticaux en aluminium |
| Autre élément bureau | Système de sécurité incendie de type 4 |
Surfaces divisibles : 10
| Surface | PrixHD/HH/m² | Étage / Batiment | Infos complémentaires |
| 96 m² | N.C | RDC | RDC |
| 431 m² | N.C | RDC | RDC |
| 1175 m² | N.C | R+1 | R+1 |
| 1058 m² | N.C | R+2 | R+2 |
| 830 m² | N.C | R+3 | R+3 |
| 826 m² | N.C | R+4 | R+4 |
| 732 m² | N.C | R+5 | R+5 |
| 732 m² | N.C | R+6 | R+6 |
| 540 m² | N.C | R+7 | R+7 |
| 241 m² | N.C | R+7 MEZZ | R+7 Mezzanine |
