L'agence Blot Nantes - Entreprise conseille ses clients dans le cadre de leurs projets immobiliers d'achat, de vente, de location ou pour la gestion de leurs actifs (bureaux, entrepôts, locaux d'ac ...
En savoir plus

118 m²
Bureau à vendre - 118 m²
Nantes (44000)
Dernière mise à jour : Hier
À VENDRE - BUREAUX - 118 M² - NANTES
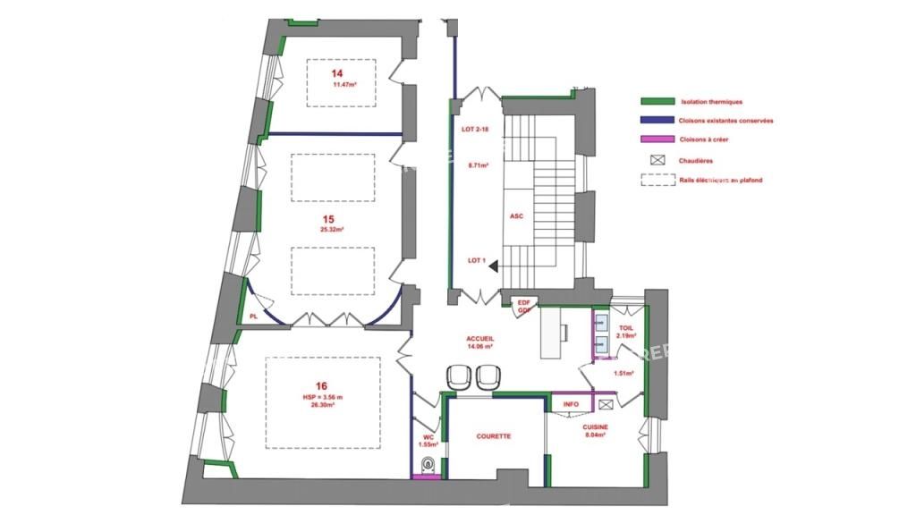
Hypercentre de Nantes, rue du calvaire, dans un immeuble de type haussmanien, à vendre un plateau de 118 m² env. rénové au premier étage. Il comprend des bureaux individuels, un espace réunions, un open-space, un espace cuisine, un espace détente, des vestiaires / douches.
Locaux cloisonnés et aménagés.
Bornes Wifi. Éclairage LED.
Ascenseur sans accès PMR.
Belles prestations et belles hauteurs.
Charme de l'ancien avec parquet massif.
Au pied du tramway commerce,et de tous les services de proximité.
Disponibilité : 3 mois après accord
Les informations sur les risques naturels, miniers, ou technologiques, auxquels ces biens sont exposés, sont disponibles sur le site www.georisques.gouv.fr
Prestations :
- Bien en copropriété
Ascenseur dans l'immeuble
Baie de brassage
Espace cuisine / cafétéria dans local
Type de fenêtres : stores intérieurs
Mode de chauffage partie bureaux : gaz individuel
Locaux fibrés
Proximité ligne(s) de Tram (Nantes/Brest)
Proximité Gare SNCF
hauteur sous plafond de 3.75 m
Bâtiment ERT (code du travail)
Interphone
Point d'eau dans pièce principale
Type d'éclairage : led
Revêtements des sols : parquet massif
Revêtements des murs : peinture
Type de plafonds : plâtre
Etat : Locaux rénovés
Tableau de Surfaces :
Conditions juridiques et financères :
Charges : 1089.14
DPE en cours de détermination.
Cliquez ici pour le barème des honoraires.
Hypercentre de Nantes, rue du calvaire, dans un immeuble de type haussmanien, à vendre un plateau de 118 m² env. rénové au premier étage. Il comprend des bureaux individuels, un espace réunions, un open-space, un espace cuisine, un espace détente, des vestiaires / douches.
Locaux cloisonnés et aménagés.
Bornes Wifi. Éclairage LED.
Ascenseur sans accès PMR.
Belles prestations et belles hauteurs.
Charme de l'ancien avec parquet massif.
Au pied du tramway commerce,et de tous les services de proximité.
Disponibilité : 3 mois après accord
Les informations sur les risques naturels, miniers, ou technologiques, auxquels ces biens sont exposés, sont disponibles sur le site www.georisques.gouv.fr
Prestations :
- Bien en copropriété
Ascenseur dans l'immeuble
Baie de brassage
Espace cuisine / cafétéria dans local
Type de fenêtres : stores intérieurs
Mode de chauffage partie bureaux : gaz individuel
Locaux fibrés
Proximité ligne(s) de Tram (Nantes/Brest)
Proximité Gare SNCF
hauteur sous plafond de 3.75 m
Bâtiment ERT (code du travail)
Interphone
Point d'eau dans pièce principale
Type d'éclairage : led
Revêtements des sols : parquet massif
Revêtements des murs : peinture
Type de plafonds : plâtre
Etat : Locaux rénovés
Tableau de Surfaces :
| Niveau | Type de surface | Surface m² | Prix/m² |
|---|---|---|---|
| 1er étage | Bureaux | 118 | 4 131 |
Conditions juridiques et financères :
Charges : 1089.14
DPE en cours de détermination.
Cliquez ici pour le barème des honoraires.
Voir plus
Afficher les consommations énergétiques
Favoris
Exporter
Appeler
Contacter
Signaler cette annonce
