Conseil en immobilier d'entreprise, Cushman & Wakefield est un acteur incontournable au rayonnement international. Cushman & Wakefield offre des solutions dans toutes les étapes que comporte un p ...
En savoir plus





391 m²
Bureau à vendre - 391 m²
Lyon 3 (69003)
Dernière mise à jour : Il y a 3 jours
Bureaux à vendre quartier Préfecture!
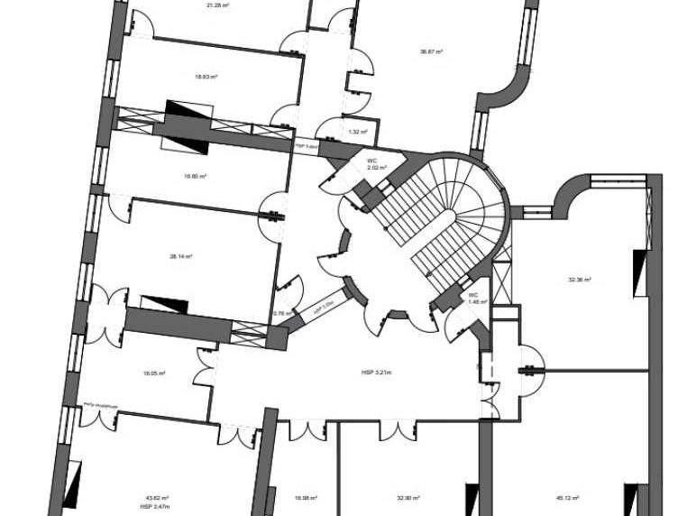
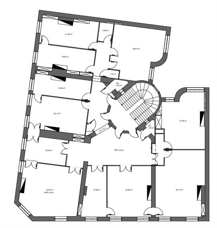
Cushman & Wakefield vous propose en exclusivité des bureaux à vendre d'une surface de 391 m², idéalement situés Avenue Maréchal de Saxe. Implantés au premier étage d'un immeuble haussmannien emblématique, ces espaces bénéficient d'un charme rare : hauteur sous plafond d'environ 3,5m, moulures, cheminées et volumes généreux. L'organisation actuelle mêle open space, bureaux individuels et salle de réunion, offrant une base facilement adaptable à différents projets d'aménagement.
Ces bureaux vendus en l'état, présentent un potentiel important pour créer un lieu de travail de caractère, valorisant les éléments patrimoniaux qui font la singularité de l'adresse. Des travaux de remise en état permettront d'exploiter pleinement ces atouts.
Situés au coeur du quartier Préfecture, les bureaux bénéficient d'un environnement central et dynamique, à proximité immédiate de nombreux commerces, services et restaurants. L'adresse offre également une excellente accessibilité grâce au réseau de transports en commun reliant aisément la Presqu'île à la Part-Dieu, ainsi qu'aux axes principaux du centre-ville. Cette localisation stratégique renforce l'intérêt du bien pour une implantation professionnelle recherchant visibilité et centralité.
Régime Fiscal : Droits d'enregistrement
Honoraires : 2,5 % HT du prix de vente HT/HD à la charge de l'acquéreur
Prestations :
Accessibilité:
SNCF Gare Lyon Part Dieu
Bus PL3-C5-C14
Métro Place Guichard Bourse du Travail (ligne B)
Tram Saxe-Préfecture (T1)
Les informations sur les risques auxquels ce bien est exposé sont disponibles sur le site Géorisques : www.georisques.gouv.fr
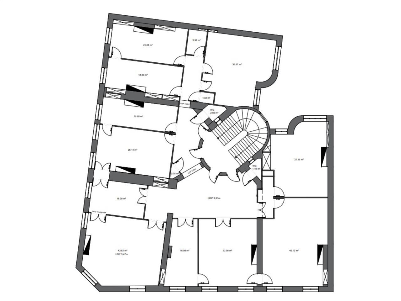
Cushman & Wakefield vous propose en exclusivité des bureaux à vendre d'une surface de 391 m², idéalement situés Avenue Maréchal de Saxe. Implantés au premier étage d'un immeuble haussmannien emblématique, ces espaces bénéficient d'un charme rare : hauteur sous plafond d'environ 3,5m, moulures, cheminées et volumes généreux. L'organisation actuelle mêle open space, bureaux individuels et salle de réunion, offrant une base facilement adaptable à différents projets d'aménagement.
Ces bureaux vendus en l'état, présentent un potentiel important pour créer un lieu de travail de caractère, valorisant les éléments patrimoniaux qui font la singularité de l'adresse. Des travaux de remise en état permettront d'exploiter pleinement ces atouts.
Situés au coeur du quartier Préfecture, les bureaux bénéficient d'un environnement central et dynamique, à proximité immédiate de nombreux commerces, services et restaurants. L'adresse offre également une excellente accessibilité grâce au réseau de transports en commun reliant aisément la Presqu'île à la Part-Dieu, ainsi qu'aux axes principaux du centre-ville. Cette localisation stratégique renforce l'intérêt du bien pour une implantation professionnelle recherchant visibilité et centralité.
| Étage | Type | Surfaces | Dispo | Prix(m²) | Charges | Honoraires | Fiscal |
|---|---|---|---|---|---|---|---|
| R+1 | Bureaux | 391 | 5300 /m² HD.HT | n.c. | 2,5 % HT du prix de vente HT/HD à la charge de l'acquéreur | Droits d'enregistrement |
Régime Fiscal : Droits d'enregistrement
Honoraires : 2,5 % HT du prix de vente HT/HD à la charge de l'acquéreur
Prestations :
- Immeuble de type haussmannien
- Ascenseur
- Accès sécurisé pass Vigik
- Plusieurs accès au lot
- L'ensemble des espaces en 1er jour
- Cheminées et moulures
- Belle hauteur sous plafond > 3m
- Bureaux en l'état, travaux à prévoir
- 2 caves et 2 greniers
Accessibilité:
SNCF Gare Lyon Part Dieu
Bus PL3-C5-C14
Métro Place Guichard Bourse du Travail (ligne B)
Tram Saxe-Préfecture (T1)
Les informations sur les risques auxquels ce bien est exposé sont disponibles sur le site Géorisques : www.georisques.gouv.fr
Voir plus
Afficher les consommations énergétiques
Localisation et transport aux alentours
Favoris
Exporter
Appeler
Contacter
Signaler cette annonce










