MALSH Realty accompagne les entreprises dans leurs projets immobiliers, qu’il s’agisse de locaux d’activités, de bureaux, de commerces, d’entrepôts ou de terrains. L’agence intervient aussi bien au ...
En savoir plus

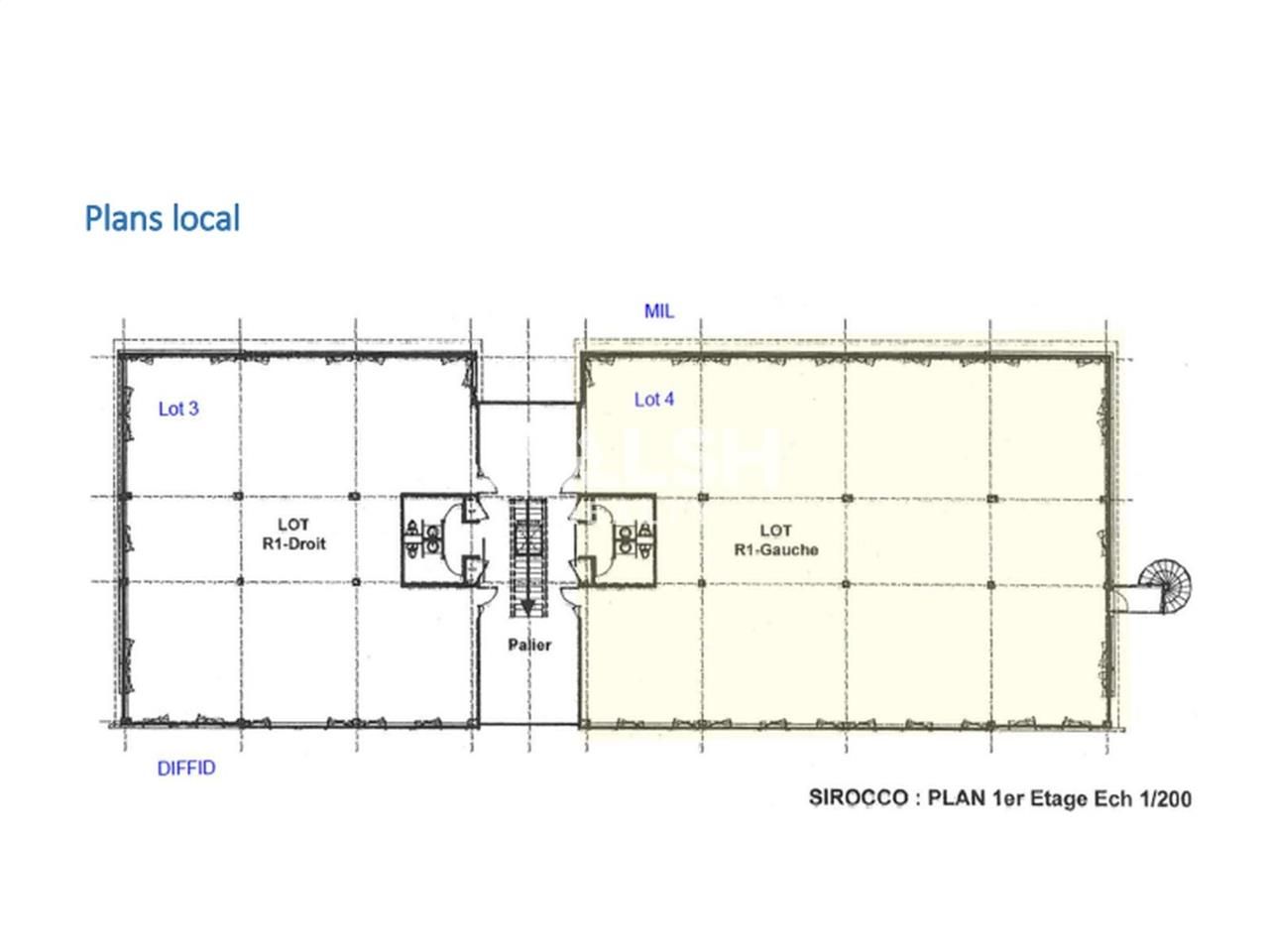
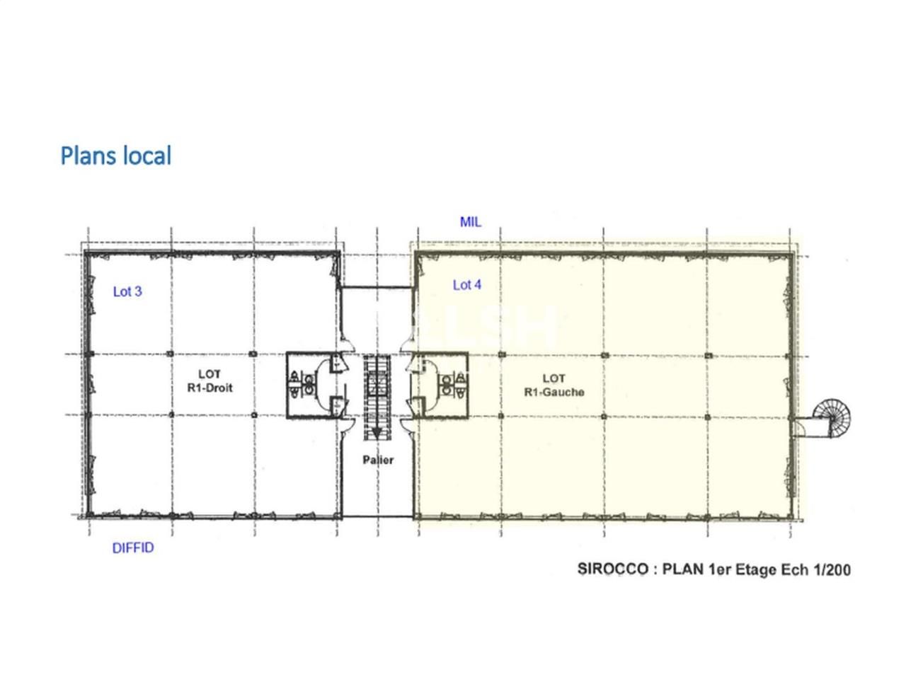
483 m²
Bureau à vendre - 483 m²
Limonest (69760)
Dernière mise à jour : Il y a 2 jours
BUREAUX - A VENDRE - LIMONEST - 483 m² - Stationnements nombreux
Nous vous proposons à la vente des bureaux d'une surface de 483 m², idéalement situés à Limonest à proximité immédiate de l'A6, au sein d'un parc tertiaire sécurisé et arboré. Ces locaux modernes, cloisonnés et lumineux bénéficient d'une climatisation intégrale et offrent un cadre de travail confortable et fonctionnel. Le bien dispose en outre de 13 places de stationnement extérieures privatives
BUREAUX - A VENDRE - LIMONEST - 483 m² - Stationnements nombreux
Impôt Foncier : 10124 €/HT/An
Régime Fiscal : Droits d'enregistrement
Honoraires : 4% HT du montant de la vente HDE, à la charge de l'acquéreur
Prestations :
Accessibilité:
SNCF Dardilly-Le-Jubin (Gare SNCF)
Bus Lignes 3, 10, 21 et 61
Métro Place Guichard (Ligne B), Hôtel de Ville L. Pradel (Ligne A), Gare de Vaise (Ligne D), Cuire (Ligne C)
Autoroute A 89 (Entrée Techlid-Pôle Économique), A 6 (Entrée), A 6 (Sortie), A 89 (Sortie Techlid-Pôle Économique)
Les informations sur les risques auxquels ce bien est exposé sont disponibles sur le site Géorisques : www.georisques.gouv.fr
Nous vous proposons à la vente des bureaux d'une surface de 483 m², idéalement situés à Limonest à proximité immédiate de l'A6, au sein d'un parc tertiaire sécurisé et arboré. Ces locaux modernes, cloisonnés et lumineux bénéficient d'une climatisation intégrale et offrent un cadre de travail confortable et fonctionnel. Le bien dispose en outre de 13 places de stationnement extérieures privatives
BUREAUX - A VENDRE - LIMONEST - 483 m² - Stationnements nombreux
| Étage | Type | Surfaces | Dispo | Prix(m²) | Charges | Honoraires | Fiscal |
|---|---|---|---|---|---|---|---|
| R+1 | Bureaux | 483 | 31 décembre 2025 | 2100 m² HD | 1663,17 HT/An | 4% HT du montant de la vente HDE, à la charge de l'acquéreur | Droits d'enregistrement |
| Parkings | 31 décembre 2025 | 6500 l'unité HD | n.c. | 4% HT du montant de la vente HDE, à la charge de l'acquéreur | Droits d'enregistrement |
Impôt Foncier : 10124 €/HT/An
Régime Fiscal : Droits d'enregistrement
Honoraires : 4% HT du montant de la vente HDE, à la charge de l'acquéreur
Prestations :
- Composition :
- Grand accueil
- Bureaux individuels
- Grands bureaux
- Salle de réunion
- Open spaces
- Cuisine & réfectoire
- Local technique & archive
- Prestations :
- Situés dans un immeuble tertiaire sécurisé et arboré
- Bureaux cloisonnés et lumineux
- Cloisons vitrées et portes tout hauteur
- Climatisation réversibles
- Faux plafond
- Dalles moquette au sol
- Luminaires encastrés
- Fenêtres doubles vitrages et stores
- Câblage RJ45 et fibre optique
- Baie de brassage
- Cuisine
- Interphone
Accessibilité:
SNCF Dardilly-Le-Jubin (Gare SNCF)
Bus Lignes 3, 10, 21 et 61
Métro Place Guichard (Ligne B), Hôtel de Ville L. Pradel (Ligne A), Gare de Vaise (Ligne D), Cuire (Ligne C)
Autoroute A 89 (Entrée Techlid-Pôle Économique), A 6 (Entrée), A 6 (Sortie), A 89 (Sortie Techlid-Pôle Économique)
Les informations sur les risques auxquels ce bien est exposé sont disponibles sur le site Géorisques : www.georisques.gouv.fr
Voir plus
Afficher les consommations énergétiques
Localisation et transport aux alentours
Favoris
Exporter
Appeler
Contacter
Signaler cette annonce










