L'équipe de G2B Real Estate est agence immobilière spécialiste de l'immobilier d'entreprise partout en Île-de-France depuis plus de 13 ans. Hasan Gulbol (Associé), Frédéric Bazil (Associé), Philipp ...
En savoir plus

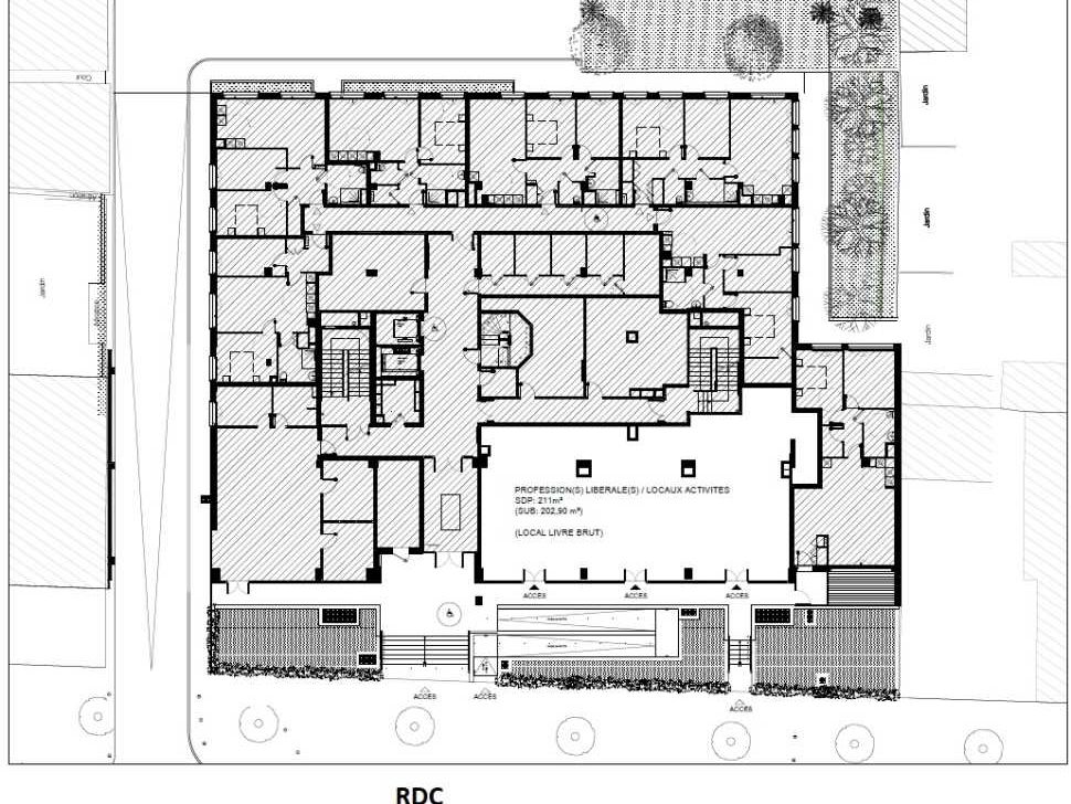
1 017 m² divisible dès 213 m²
Bureau à vendre - 1017 m²
Ivry-sur-Seine (94200)
Dernière mise à jour : Il y a 9 mois
A proximité des transports en commun dans un environnement mixte, G2B REAL ESTATE vous propose l'acquisition de locaux d'activité neufs. Possibilité de réunir 2 lots en 1 seul d'une surface totale de 644 m².
Locaux livrés brut avec les différentes attentes ou fourreaux vides (eau , électricité, télécom...).
Vitrines en verre et aluminium posées.
Régime Fiscal : Droits d'enregistrement
Honoraires : 5% HT du prix de vente HD à la charge de l'acquéreur
Prestations :
Accessibilité:
Bus Hôpital Jean Rostand (BUS-125)
Métro Pierre et Marie Curie (METRO-7)
Tram Cimetière Parisien d'Ivry
Les informations sur les risques auxquels ce bien est exposé sont disponibles sur le site Géorisques : www.georisques.gouv.fr
Locaux livrés brut avec les différentes attentes ou fourreaux vides (eau , électricité, télécom...).
Vitrines en verre et aluminium posées.
| Étage | Type | Surfaces | Dispo | Prix(m²) | Charges | Honoraires | Fiscal |
|---|---|---|---|---|---|---|---|
| Rdc | Bureaux | 213 | n.c. | n.c. | 5% HT du prix de vente HD à la charge de l'acquéreur | Droits d'enregistrement | |
| RdJ | Activités | 466,67 | Immédiate | 2571,5 m² HD | n.c. | 5% HT du prix de vente HD à la charge de l'acquéreur | Droits d'enregistrement |
| RdJ | Activités | 337,46 | Immédiate | 2571,5 m² HD | n.c. | 5% HT du prix de vente HD à la charge de l'acquéreur | Droits d'enregistrement |
Régime Fiscal : Droits d'enregistrement
Honoraires : 5% HT du prix de vente HD à la charge de l'acquéreur
Prestations :
- Belle façade vitrée
- Accès PMR
- Accès camionnettes
- Locaux livrés brut de béton
- Surface RDC : 213 m²
- Surface terrain : 0
- Equipements entrepôts : Locaux livrés brut
Vitrines en verre et aluminium posées
Accessibilité:
Bus Hôpital Jean Rostand (BUS-125)
Métro Pierre et Marie Curie (METRO-7)
Tram Cimetière Parisien d'Ivry
Les informations sur les risques auxquels ce bien est exposé sont disponibles sur le site Géorisques : www.georisques.gouv.fr
Voir plus
Afficher les consommations énergétiques
Localisation et transport aux alentours
- Pierre et Marie Curie290m (4min à pied)7
Favoris
Exporter
Appeler
Contacter
Signaler cette annonce










