Nous sommes Immprove, une grande équipe de plus de 200 experts en immobilier d’entreprise, implantés localement avec plus de 20 agences sur tout le territoire.Depuis 2009, notre proximité, notre ét ...
En savoir plus

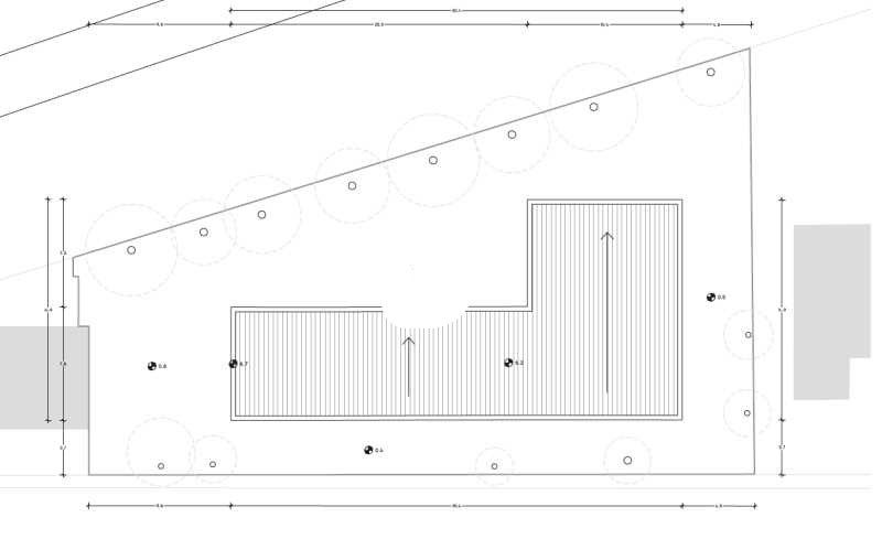
534 m² divisible dès 271 m²
Bureau à vendre - 534 m²
Eaubonne (95600)
Dernière mise à jour : Il y a 10 jours
A quelque pas de la gare d'Enghien Champs de course, IMMPROVE vous propose une opportunité d'investissement dans un projet immobilier.
Sur un terrain cadastré de 979 m², un bâtiment indépendant avec une possibilité de construction comprenant un plateau existant de 270 m² nu à aménager, et un permis de construire offrant un agrandissement possible au rdc de 261 m² supplémentaire pour installer UNIQUMENT une Micro-Crèche. Le propriétaire peut accompagner le projet de construction.
Régime Fiscal : Non soumis à TVA
Honoraires : 5% HT du prix de vente HD à la charge de l'acquéreur
Prestations :
Accessibilité:
Autoroute A15 et A86
Bus Ligne 3804 - EDOUARD VAILLANT
Transilien RER C - ERMONT EAUBONNE
Train Ligne H - CHAMPS DE COURSES D'ENGHIEN
Les informations sur les risques auxquels ce bien est exposé sont disponibles sur le site Géorisques : www.georisques.gouv.fr
Sur un terrain cadastré de 979 m², un bâtiment indépendant avec une possibilité de construction comprenant un plateau existant de 270 m² nu à aménager, et un permis de construire offrant un agrandissement possible au rdc de 261 m² supplémentaire pour installer UNIQUMENT une Micro-Crèche. Le propriétaire peut accompagner le projet de construction.
| Étage | Type | Surfaces | Dispo | Prix(m²) | Charges | Honoraires | Fiscal |
|---|---|---|---|---|---|---|---|
| RDC | Bureaux | 262,9 | Immédiate | 1313 m² HT HH | n.c. | 5% HT du prix de vente HD à la charge de l'acquéreur | Non soumis à TVA |
| 1 | Bureaux | 270,9 | Immédiate | 1313 m² HT HH | n.c. | 5% HT du prix de vente HD à la charge de l'acquéreur | Non soumis à TVA |
Régime Fiscal : Non soumis à TVA
Honoraires : 5% HT du prix de vente HD à la charge de l'acquéreur
Prestations :
- Immeuble ancien
- Accès véhicules légers
- Portail d'accès
- Travaux à prévoir
- Brut de béton
- Accueil
- Espace ouvert
- Bureaux cloisonnés
- Salle de réunion
- Espace détente
- Local technique
- Cuisine
- Sanitaires privatifs
- Terrain 979 m²
- Immeuble indépendant
Accessibilité:
Autoroute A15 et A86
Bus Ligne 3804 - EDOUARD VAILLANT
Transilien RER C - ERMONT EAUBONNE
Train Ligne H - CHAMPS DE COURSES D'ENGHIEN
Les informations sur les risques auxquels ce bien est exposé sont disponibles sur le site Géorisques : www.georisques.gouv.fr
Voir plus
Afficher les consommations énergétiques
Favoris
Exporter
Appeler
Contacter
Signaler cette annonce
