Avec près de 80 implantations en France, Arthur Loyd est le premier Réseau National de Conseil en Immobilier d’Entreprise. Nous vous accompagnons dans vos projets sur l’ensemble du territoire natio ...
En savoir plus

329 m²
Bureau à vendre - 329 m²
Déville-lès-Rouen (76250)
Dernière mise à jour : Hier
| Étage | Type | Surfaces | Dispo | Prix(m²) | Charges | Honoraires | Fiscal |
|---|---|---|---|---|---|---|---|
| RDJ | Bureaux | 231,61 | Immédiate | 1273 m² HD | n.c. | 6% HT du prix NV TTC à la charge de l'acquéreur | TVA |
| RDC | Bureaux | 97,36 | Immédiate | 1273 m² HD | n.c. | 6% HT du prix NV TTC à la charge de l'acquéreur | TVA |
Régime Fiscal : TVA
Honoraires : 6% HT du prix NV TTC à la charge de l'acquéreur
Prestations :
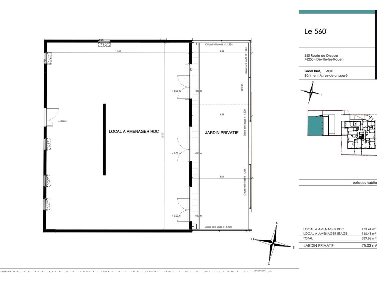
- Sur l'axe principal de Déville-Lès-Rouen, à proximité de commodités boulangerie/fleuriste/station essence et du bus TEOR, un local professionnel à usage de bureaux neufs à aménager divisible à partir de 97 m2.
- Possibilité de diviser le local en deux, soit :
- Une surface d'environ 97 m2 en rez-de-chaussée, accessible PMR
- Une surface d'environ 231 m2 au total, avec 65 m2 en rez-de-chaussée et 166,37 au 1er étage.
- Immeuble neuf, performant, isolé par l'extérieur.
- Locaux livrés brut de béton, fluides et réseaux en attente,
- Surface RDC : 328,97 m²
Accessibilité:
SNCF Maromme (France)
Les informations sur les risques auxquels ce bien est exposé sont disponibles sur le site Géorisques : www.georisques.gouv.fr
Voir plus
Afficher les consommations énergétiques
Localisation et transport aux alentours
Favoris
Exporter
Appeler
Contacter
Signaler cette annonce
