L’agence CBRE Bordeaux conseille et accompagne les chefs d’entreprise dans leurs projets immobiliers quels que soient leur taille et leur secteur d’activité. Spécialistes de la transaction de burea ...
En savoir plus

46 m²
Bureau à vendre - 46 m²
Bordeaux (33000)
Dernière mise à jour : Hier
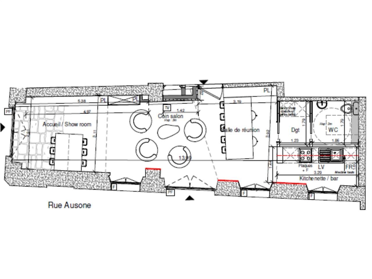
BORDEAUX - CBRE vous propose à la location ou à la vente un lot à usage commercial / de bureaux, situé au RDC d'un immeuble d'habitation, d'une surface utile de 45,92 m². Ce plateau bénéficie de deux entrées (un accès via les communs de l'immeuble et autre accès indépendant accessible PMR via la rue). Cette surface se compose de deux espaces (un espace type open-space donnant directement sur l'entrée / salon et un bureau cloisonné), d'un coin cuisine et d'un coin sanitaire avec douche.
Le bien a été entièrement rénové et bénéficie d'une situation idéale à proximité immédiate des transports en commun et des commerces.
Venez visiter cette très belle opportunité sans tarder !
Régime Fiscal : Droits d'enregistrement
Dépôt de garantie : 3 mois de loyer HT/HC
Honoraires : 2% HT du prix de vente HT HD à la charge de l'acquéreur
Prestations :
Accessibilité:
Tramway Lignes A, C & D - Arrêt "Porte de Bourgogne"
Bus Lignes 16 & 24 - Arrêt "Porte de Bourgogne"
SNCF Bordeaux Saint-Jean à 2,4km
Les informations sur les risques auxquels ce bien est exposé sont disponibles sur le site Géorisques : www.georisques.gouv.fr
Le bien a été entièrement rénové et bénéficie d'une situation idéale à proximité immédiate des transports en commun et des commerces.
Venez visiter cette très belle opportunité sans tarder !
| Étage | Type | Surfaces | Dispo | Prix(m²) | Charges | Honoraires | Fiscal |
|---|---|---|---|---|---|---|---|
| RDC | Bureaux | 45,92 | Immédiate | 4115,85 m² HD | n.c. | 2% HT du prix de vente HT HD à la charge de l'acquéreur | Droits d'enregistrement |
Régime Fiscal : Droits d'enregistrement
Dépôt de garantie : 3 mois de loyer HT/HC
Honoraires : 2% HT du prix de vente HT HD à la charge de l'acquéreur
Prestations :
- Surface RDC : 45,92 m²
Accessibilité:
Tramway Lignes A, C & D - Arrêt "Porte de Bourgogne"
Bus Lignes 16 & 24 - Arrêt "Porte de Bourgogne"
SNCF Bordeaux Saint-Jean à 2,4km
Les informations sur les risques auxquels ce bien est exposé sont disponibles sur le site Géorisques : www.georisques.gouv.fr
Voir plus
Afficher les consommations énergétiques
Favoris
Exporter
Appeler
Contacter
Signaler cette annonce
