Evolis, votre partenaire en immobilier d’entreprise! Que vous soyez une entreprise, utilisateur de locaux professionnels, investisseur, ou propriétaire, Evolis met à votre service son expertise ...
En savoir plus

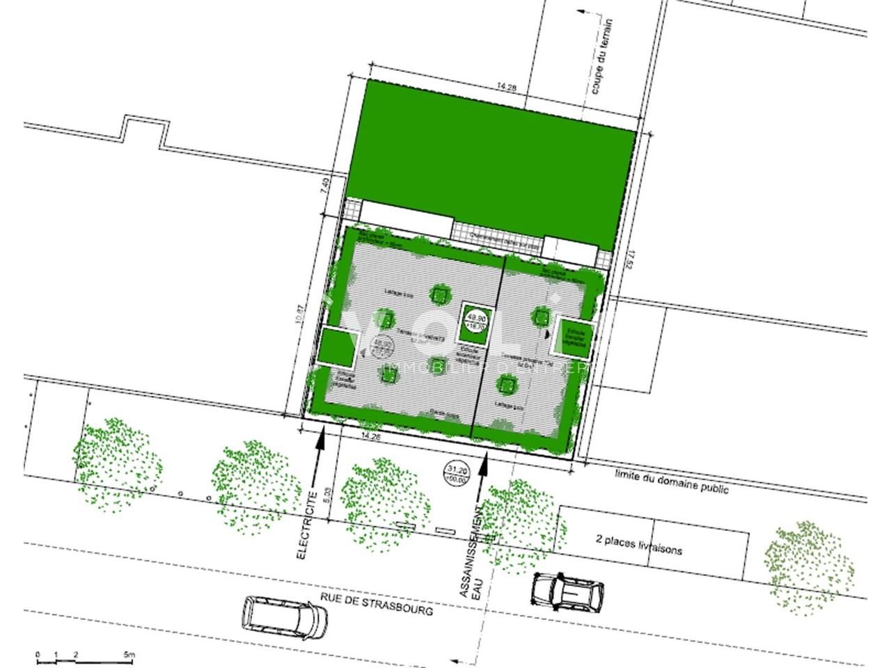
587 m²
Terrain à vendre - 587 m²
Saint-Denis (93200)
Dernière mise à jour : Il y a 4 jours
Saisissez une opportunité d'investissement exceptionnelle à Saint-Denis avec EVOLIS ! Ce bien rare, combinant commerce et habitation, offre un potentiel de rentabilité inégalé. Sur un terrain de 587 m², bénéficiez d'un permis de construire purgé pour développer 9 appartements (F2 et F3) et un commerce. Idéalement situé dans un quartier dynamique, cet emplacement stratégique maximise votre visibilité commerciale tout en offrant un cadre de vie confortable. Avec 8 parkings inclus, cette offre est parfaite pour les entrepreneurs et investisseurs en quête de diversification. Contactez EVOLIS dès aujourd'hui pour plus d'informations et une visite.
Régime Fiscal : Droit d'enregistrement
Prestations :
Accessibilité:
Bus Avenue Saint-Rémy (253)
Tram Cimetière de Saint-Denis (T1)
Grand Paris Express La Courneuve "Six Routes" (L16/L17 Mi 2027)
A 1 (Entrée Bretelle Lamaze), A 1 (Sortie Bretelle Lamaze), A 86 (Entrée St Denis-La Plaine, Stade de France), A 86 (Sortie St Denis-La Plaine, Stade de France)
Les informations sur les risques auxquels ce bien est exposé sont disponibles sur le site Géorisques : www.georisques.gouv.fr
| Étage | Type | Surfaces | Dispo | Prix(m²) | Charges | Honoraires | Fiscal |
|---|---|---|---|---|---|---|---|
| 5 | Habitation | 71 | Nous consulter | n.c. | n.c. | Droit d'enregistrement | |
| 4 | Habitation | 71 | Nous consulter | n.c. | n.c. | Droit d'enregistrement | |
| 4 | Habitation | 62 | Nous consulter | n.c. | n.c. | Droit d'enregistrement | |
| 3 | Habitation | 71 | Nous consulter | n.c. | n.c. | Droit d'enregistrement | |
| 3 | Habitation | 35 | Nous consulter | n.c. | n.c. | Droit d'enregistrement | |
| 2 | Habitation | 71 | Nous consulter | n.c. | n.c. | Droit d'enregistrement | |
| 2 | Habitation | 35 | Nous consulter | n.c. | n.c. | Droit d'enregistrement | |
| 1 | Habitation | 71 | Nous consulter | n.c. | n.c. | Droit d'enregistrement | |
| 1 | Habitation | 35 | Nous consulter | n.c. | n.c. | Droit d'enregistrement | |
| RDC | Locaux Commerciaux | 65 | Nous consulter | n.c. | n.c. | Droit d'enregistrement | |
| Parkings | Nous consulter | n.c. | n.c. | Droit d'enregistrement | |||
| Parkings | Nous consulter | n.c. | n.c. | Droit d'enregistrement |
Régime Fiscal : Droit d'enregistrement
Prestations :
- Surface RDC : 65 m²
Accessibilité:
Bus Avenue Saint-Rémy (253)
Tram Cimetière de Saint-Denis (T1)
Grand Paris Express La Courneuve "Six Routes" (L16/L17 Mi 2027)
A 1 (Entrée Bretelle Lamaze), A 1 (Sortie Bretelle Lamaze), A 86 (Entrée St Denis-La Plaine, Stade de France), A 86 (Sortie St Denis-La Plaine, Stade de France)
Les informations sur les risques auxquels ce bien est exposé sont disponibles sur le site Géorisques : www.georisques.gouv.fr
Voir plus
Afficher les consommations énergétiques
Localisation et transport aux alentours
Favoris
Exporter
Appeler
Contacter
Signaler cette annonce
