Agence de développement économique de la région Occitanie, AD'OCC accompagne les entreprises régionales et les territoires à créer de la valeur et de l’emploi.
En savoir plus

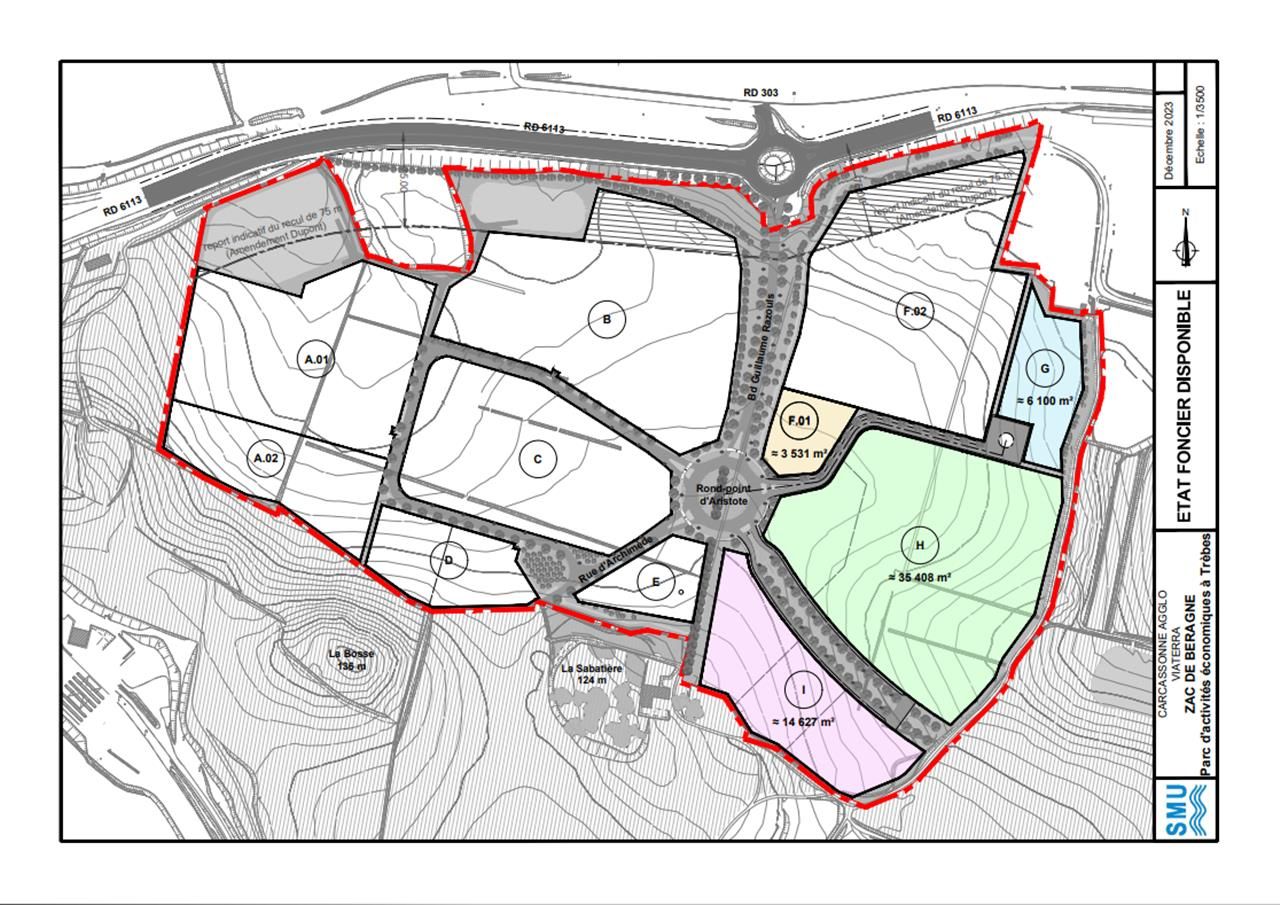
60 000 m² divisible dès 3 500 m²
Prix sur demande
Terrain à vendre - 60000 m²
Trèbes (11800)
Publiée : Il y a 1 an
6ha à la découpe pour des projets INDUSTRIELS à haute valeur ajoutée générant de nombreux emplois en local (moyenne d'emplois des entreprises implantées : >25 par hectare).
Echangeur autoroutier n°24 Carcassonne Est A61 à 2min
Proximoté de l'aérport internation Carcassonne Sud de France à 10min
Raccordement à la fibre ultra haut débit
Haute qualité environnementale et architecturale
4 entreprises majeures du territoires présentes sur la zone (agro alimentaire, maroquinerie de luxe, activité d'emballage)
Voir plus
Afficher les consommations énergétiques
Favoris
Exporter
Appeler
Contacter
Signaler cette annonce
