Depuis 2003, KEOPS Toulouse accompagne les entreprises dans leurs projets immobiliers sur toute l’aire urbaine toulousaine.Notre équipe de professionnels passionnés met à votre service sa connaissa ...
En savoir plus

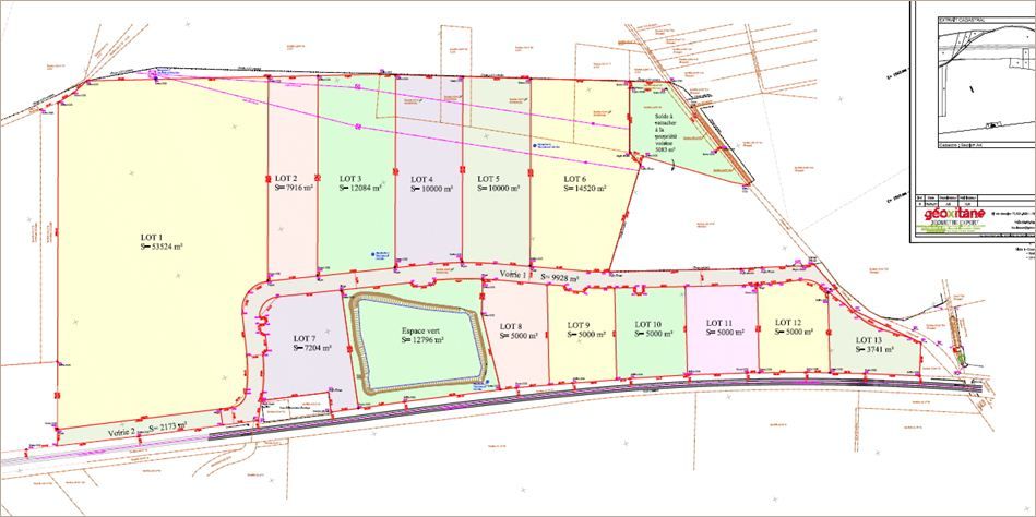
143 989 m² divisible dès 3 741 m²
Terrain à vendre - 143989 m²
Muret (31600)
Dernière mise à jour : Il y a 5 mois
Terrains industriels à vendre, au nord de Muret, à proximité de l'A64
Accès : par A64 sortie n° 35
Accès : par A64 sortie n° 35
| Lot | Surface | Prix de vente HT | Disponibilité |
|---|---|---|---|
| 1 | 53 524 m² | 4 014 300 € | Réservé |
| 2 | 7 916 m² | 633 280 € | Disponible |
| 3 | 12 084 m² | 966 720 € | Disponible |
| 4 | 10 000 m² | 800 000 € | Disponible |
| 5 | 10 000 m² | 700 000 € | Réservé |
| 6 | 14 520 m² | 943 800 € | Réservé |
| 7 | 10 000 m² | 850 000 € | Réservé |
| 8 | 5 000 m² | 425 000 € | Réservé |
| 9 | 5 000 m² | 425 000 € | Réservé |
| 10 | 5 000 m² | 425 000 € | Réservé |
| 11 | 5 000 m² | 425 000 € | Réservé |
| 12 | 5 000 m² | 425 000 € | Réservé |
| 13 | 3 741 m² | 317 985 € | Réservé |
Voir plus
Afficher les consommations énergétiques
Localisation et transport aux alentours
Favoris
Exporter
Appeler
Contacter
Signaler cette annonce
