Besoin d'un conseil en immobilier ? Nous sommes une équipe dédiée à 100% à nos clients utilisateurs avec des services variés (stratégie immobilière, recherche immobilière, renégociation de bail, dé ...
En savoir plus

2 976 m²
HT HC
Location activité/entrepôt - 2976 m²
Antony (92160)
Dernière mise à jour : Il y a 3 jours
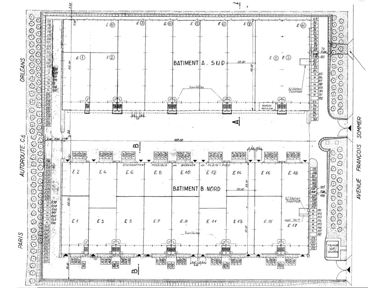
ANTONY (92) // Logistique urbaine A LOUER - 2 976 m²
SAVILLS FRANCE vous propose, à louer, une surface logistique de 2 976 m² située sur la commune d'Antony (92).
Site de logistique urbaine à la location avec bureaux d'accompagnements.
Ce site bénéficie de quais PL, d'une hauteur libre de 8m et d'une charge au sol de 5 T/m².
Ce bâtiment est disponible et répondra parfaitement à vos différents besoins !
Pour toute information complémentaire, n'hésitez pas à prendre contact avec notre consultant SAVILLS FRANCE.
Impôt Foncier : 10,99 €//m²/an HT
Honoraires : Sur demande
Information sur le Bail :
Taxe IDF (bureaux) : 19,93 euros /m²/ HT de bureaux/an (base 2022) Taxe stationnement : 2,67 euros m²/HT de stationnement/an (base 2022)
Prestations :
Accessibilité:
Autoroute A10 - 2km (5min)
Autoroute A10 - 3,9km (6min)
RER Gare d'Antony - 3,3km (10min)
Aéroport Aéroport d'Orly - 11,5km (15min)
Les informations sur les risques auxquels ce bien est exposé sont disponibles sur le site Géorisques : www.georisques.gouv.fr
SAVILLS FRANCE vous propose, à louer, une surface logistique de 2 976 m² située sur la commune d'Antony (92).
Site de logistique urbaine à la location avec bureaux d'accompagnements.
Ce site bénéficie de quais PL, d'une hauteur libre de 8m et d'une charge au sol de 5 T/m².
Ce bâtiment est disponible et répondra parfaitement à vos différents besoins !
Pour toute information complémentaire, n'hésitez pas à prendre contact avec notre consultant SAVILLS FRANCE.
| Étage | Type | Surfaces | Dispo | Loyer | Charges | Type de bailRév. annuelle |
|---|---|---|---|---|---|---|
| Entrepôts | 1349 | |||||
| Bureaux | 154,5 | |||||
| Total Cellule E5 | Entrepôts | 1503,5 | Immédiate | 100 m²/an/HT-HC | 15,17 m²/an HT | 3-6-9 ans |
| 1 | Bureaux | 152,7 | Immédiate | |||
| RDC | Entrepôts | 1320 | Immédiate | |||
| Total Cellule Lot E4 | Entrepôts | 1472,7 | Immédiate | 100 HT/HC/m²/an | 15,17 m²/an HT | 3-6-9 ans |
Impôt Foncier : 10,99 €//m²/an HT
Honoraires : Sur demande
Information sur le Bail :
Taxe IDF (bureaux) : 19,93 euros /m²/ HT de bureaux/an (base 2022) Taxe stationnement : 2,67 euros m²/HT de stationnement/an (base 2022)
Prestations :
- Parking VL
- Site clos
- Gardiennage
- Façade en bardage
- Surface RDC : 1320 m²
- Haut. libre max. ss poutre : 8 m
- Résistance sol : 5 T/m²
- Accès bâtiment : Gros Porteurs
Moyens Porteurs
Accessibilité:
Autoroute A10 - 2km (5min)
Autoroute A10 - 3,9km (6min)
RER Gare d'Antony - 3,3km (10min)
Aéroport Aéroport d'Orly - 11,5km (15min)
Les informations sur les risques auxquels ce bien est exposé sont disponibles sur le site Géorisques : www.georisques.gouv.fr
Voir plus
Afficher les consommations énergétiques
Localisation et transport aux alentours
- Antonypôle499m (7min à pied)18
Favoris
Exporter
Appeler
Contacter
Signaler cette annonce










