MCarré Conseil est une agence spécialiste de l'immobilier d’entreprise du sud de l’Île-de-France (en Essonne et dans le sud de la Seine-et-Marne et du Val-De-Marne). Elle vous accompagne à chaque é ...
En savoir plus

4 078 m² divisible dès 509 m²
HT HC
Location activité/entrepôt - 4078 m²
Antony (92160)
Dernière mise à jour : Il y a 1 mois
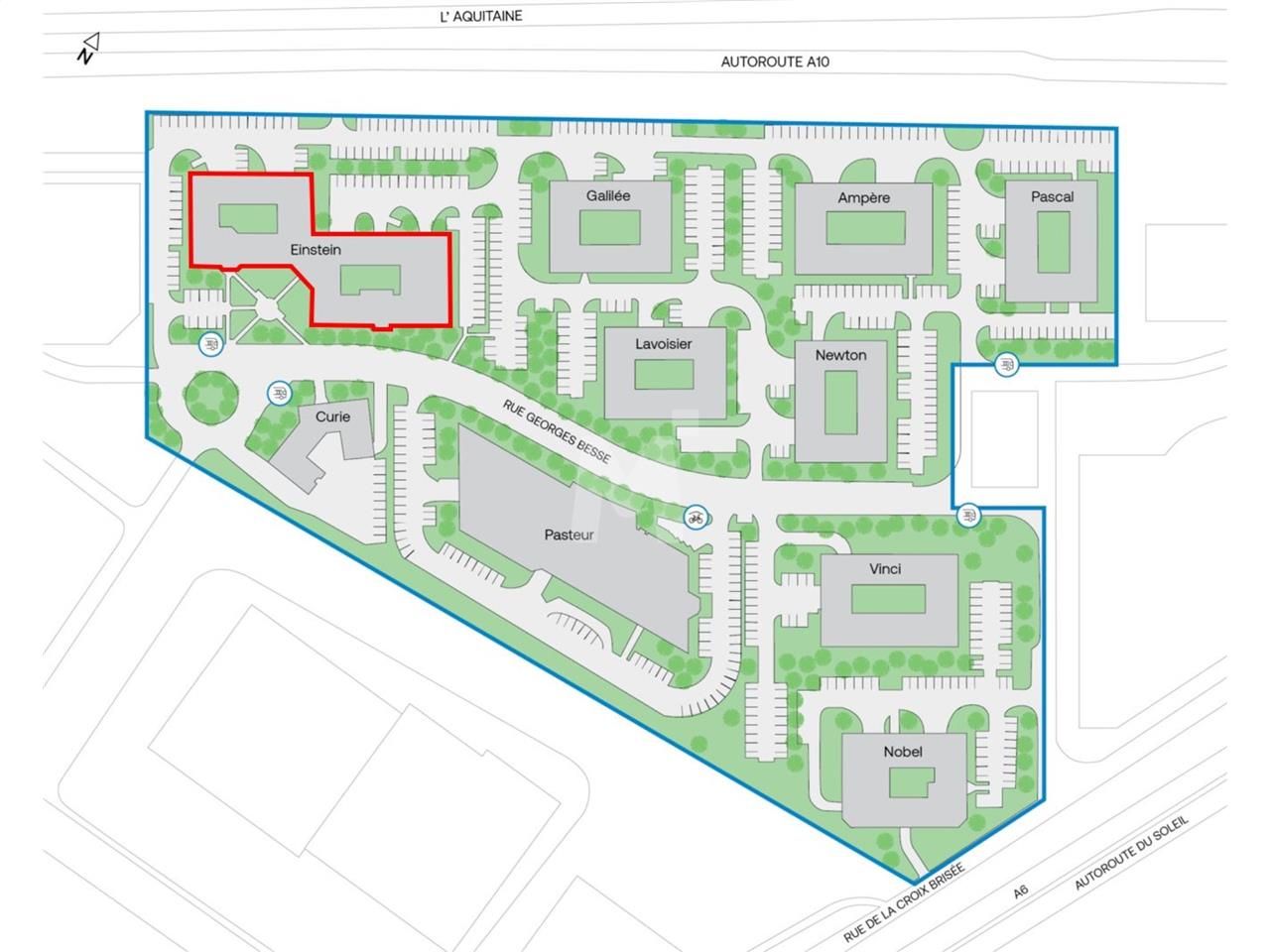
A l'intersection des autoroutes A6 et A10, nous vous proposons des surfaces d'activité et de bureaux à la location.
Régime Fiscal : TVA
Dépôt de garantie : 3 mois de loyer TTC
Honoraires : 15% HT du loyer annuel HT HC
Prestations :
Accessibilité:
Autoroute Autoroute A10
Autoroute Autoroute A6
Route Nationale 20
Tgv TGV Gare de Massy
RER RER B & C : Massy-Palaiseau
Tram Tram "Min de Rungis" via Bus
Bus Georges Besse 2 (BUS-1)
Aeroport Aéroport d'Orly
Les informations sur les risques auxquels ce bien est exposé sont disponibles sur le site Géorisques : www.georisques.gouv.fr
| Étage | Type | Surfaces | Dispo | Loyer | Charges | Type de bailRév. annuelle |
|---|---|---|---|---|---|---|
| R+1 | Bureaux | 638 | Indice ILAT | |||
| Rdc | Activités | 632 | Indice ILAT | |||
| Total Cellule LOT 23-27 | Activités | 1270 | Après travaux | 141 m²/an HT HC | 3/6/9/12 ansIndice ILAT | |
| 1 | Bureaux | 948 | Indice ILAT | |||
| Rdc | Activités | 717 | Indice ILAT | |||
| 21 | Activités | 1665 | Après travaux | 144 m²/an HT HC | 3/6/9/12 ansIndice ILAT | |
| 1 | Bureaux | 634 | Après travaux | 160 HT/HC/m²/an | 3/6/9/12 ansIndice ILAT | |
| 1 | Activités | 509 | 1er juillet 2025 | 160 m²/an HT HC | 3/6/9/12 ansIndice ILAT | |
| Parkings | 300 U/an HT HC | Indice ILAT | ||||
| Parkings | 500 U/an HT HC | Indice ILAT |
Régime Fiscal : TVA
Dépôt de garantie : 3 mois de loyer TTC
Honoraires : 15% HT du loyer annuel HT HC
Prestations :
- Nombreux emplacements de stationnement
- Parking à vélos
- Espaces verts aménagés
- Espaces détente (tables de pique-nique...)
- Lots en cours de rénovation
- Climatisation dans les bureaux
- Surface RDC : 1349 m²
- Haut. libre max. ss poutre : 4,5 m
- Equipements entrepôts : Livraison via gros porteurs possible
- Chauffage : Aérothermes gaz
Accessibilité:
Autoroute Autoroute A10
Autoroute Autoroute A6
Route Nationale 20
Tgv TGV Gare de Massy
RER RER B & C : Massy-Palaiseau
Tram Tram "Min de Rungis" via Bus
Bus Georges Besse 2 (BUS-1)
Aeroport Aéroport d'Orly
Les informations sur les risques auxquels ce bien est exposé sont disponibles sur le site Géorisques : www.georisques.gouv.fr
Emplacement(s) de Parking: extérieur(s) intérieur(s)
Voir plus
Afficher les consommations énergétiques
Localisation et transport aux alentours
Favoris
Exporter
Appeler
Contacter
Signaler cette annonce










