MCarré Conseil est une agence spécialiste de l'immobilier d’entreprise du sud de l’Île-de-France (en Essonne et dans le sud de la Seine-et-Marne et du Val-De-Marne). Elle vous accompagne à chaque é ...
En savoir plus

3 277 m² divisible dès 742 m²
HT HC
Location activité/entrepôt - 3277 m²
Antony (92160)
Dernière mise à jour : Il y a 5 mois
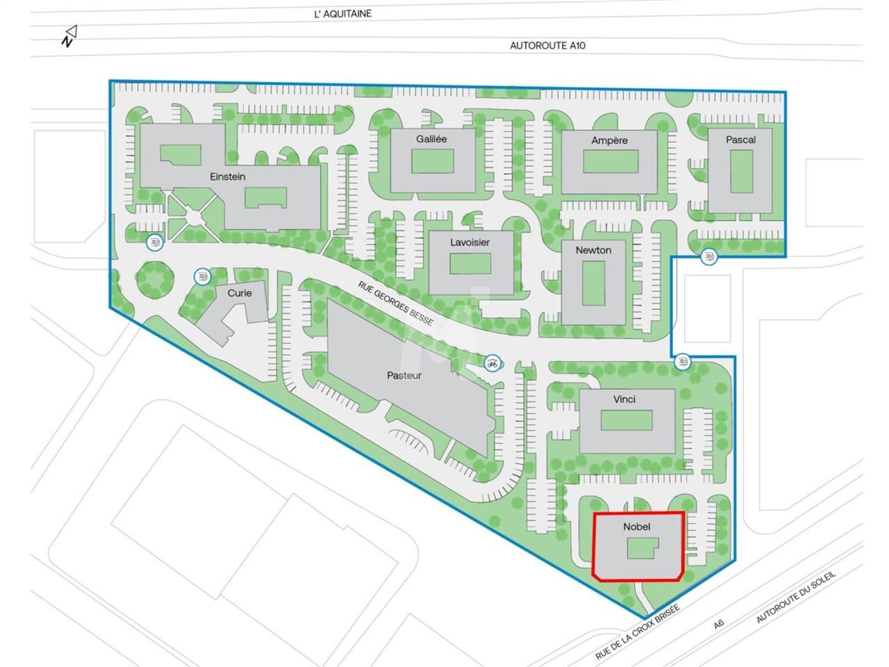
Dans un bâtiment visible depuis l'autoroute A6, nous vous proposons un lot à usage d'activités et bureaux à la location.
Au sein d'un parc sécurisé (vidéo-surveillance) bénéficiant de services sur site (salle de sport, foodtruck, restaurants à proximité)
Régime Fiscal : TVA
Dépôt de garantie : 3 mois de loyer TTC
Honoraires : 15% HT du loyer annuel HT HC
Prestations :
Accessibilité:
Autoroute Autoroute A10
Autoroute Autoroute A6
Route Nationale 20
Tgv TGV Gare de Massy
RER RER B & C : Massy-Palaiseau
Tram Tram "Min de Rungis" via Bus
Bus Georges Besse 1 (BUS-1)
Aeroport Aéroport d'Orly
Les informations sur les risques auxquels ce bien est exposé sont disponibles sur le site Géorisques : www.georisques.gouv.fr
Au sein d'un parc sécurisé (vidéo-surveillance) bénéficiant de services sur site (salle de sport, foodtruck, restaurants à proximité)
| Étage | Type | Surfaces | Dispo | Loyer | Charges | Type de bailRév. annuelle |
|---|---|---|---|---|---|---|
| 1/2 | Bureaux | 1487 | Indice ILAT | |||
| Rdc | Activités | 1048 | Indice ILAT | |||
| Total Cellule LOT 60-62-63 | Activités | 2535 | Après travaux | 144 m²/an HT HC | 3/6/9/10 ansIndice ILAT | |
| 2 | Bureaux | 742 | Après travaux | 160 HT/HC/m²/an | 3/6/9/12 ansIndice ILAT |
Régime Fiscal : TVA
Dépôt de garantie : 3 mois de loyer TTC
Honoraires : 15% HT du loyer annuel HT HC
Prestations :
- Nombreux emplacements de stationnement
- Parking à vélos
- Espaces verts aménagés
- Espaces détente (tables de pique-nique...)
- Lots en cours de rénovation
- 2 ascenseurs
- 1 monte-charge 1 000 KG
- Surface RDC : 1048 m²
Accessibilité:
Autoroute Autoroute A10
Autoroute Autoroute A6
Route Nationale 20
Tgv TGV Gare de Massy
RER RER B & C : Massy-Palaiseau
Tram Tram "Min de Rungis" via Bus
Bus Georges Besse 1 (BUS-1)
Aeroport Aéroport d'Orly
Les informations sur les risques auxquels ce bien est exposé sont disponibles sur le site Géorisques : www.georisques.gouv.fr
Voir plus
Afficher les consommations énergétiques
Localisation et transport aux alentours
Favoris
Exporter
Appeler
Contacter
Signaler cette annonce










