L’agence CBRE Nice-Sophia Antipolis conseille et accompagne les chefs d’entreprise dans leurs projets immobiliers quels que soient leur taille et leur secteur d’activité. Spécialistes de la transac ...
En savoir plus

4 844 m²
HT HC
Location activité/entrepôt - 4844 m²
Biot (06410)
Dernière mise à jour : Hier
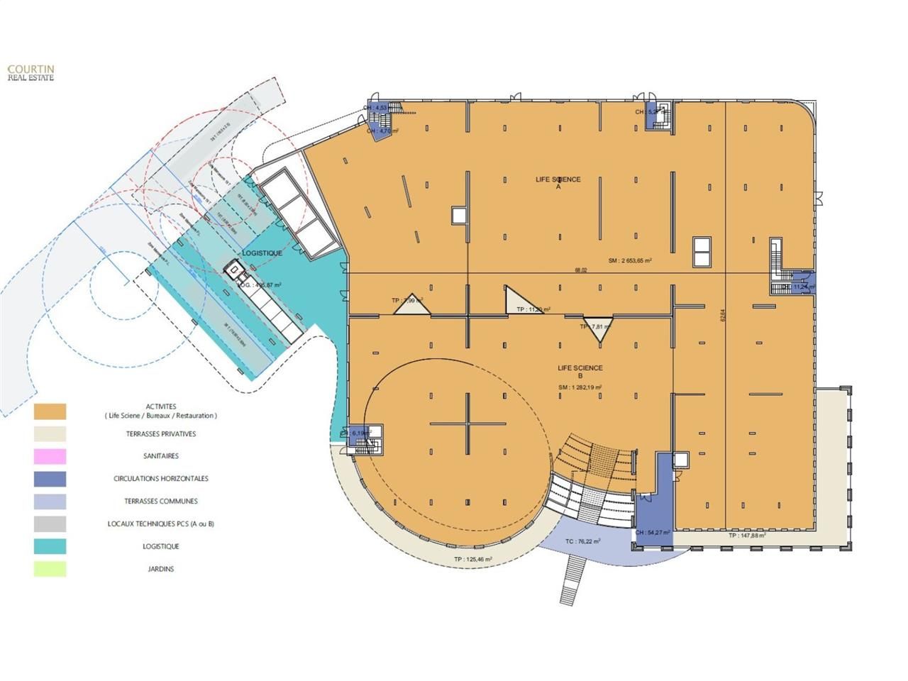
Situés au coeur de la technopole de Sophia Antipolis (06560), CBRE propose des locaux de 4 844 m², spécialement conçus pour répondre aux exigences du secteur des sciences de la vie. Ces locaux font partie d'un programme immobilier neuf et écoresponsable, avec une route et une aire logistique dédiées. Ils disposent également de quais de déchargement pouvant accueillir simultanément 4 poids-lourds.
Le bâtiment est certifié BREEAM EXCELLENT, E+C et Wire Score GOLD
Un café-restaurant de 600 m² avec vue sur la vallée et la technopole sur le parvis commun dédié au site.
Si vous êtes intéressés par ces locaux à louer, n'hésitez pas à nous contacter pour planifier une visite et obtenir toutes les informations requises pour votre projet immobilier.
Autoroute A8 à 10 mn : à 30 mn de Nice Centre, à 45 de Monaco et à 2h de Marseille
Aéroport international de Nice à 20 mn
Bus : réseau interurbain ENVIBUS & ZOU
Régime Fiscal : T.V.A.
Dépôt de garantie : 3 mois de loyer HT/HC
Paiement Loyer : trimestriel
Honoraires : 15% HT du loyer annuel HT/HC à la charge du preneur
Prestations :
Accessibilité:
Autoroute A8 à 10 mn
Aeroport International de Nice à 20 mn
Bus Réseau ENVIBUS & ZOU
SNCF TGV/TER Antibes à 20 mn
Les informations sur les risques auxquels ce bien est exposé sont disponibles sur le site Géorisques : www.georisques.gouv.fr
Le bâtiment est certifié BREEAM EXCELLENT, E+C et Wire Score GOLD
Un café-restaurant de 600 m² avec vue sur la vallée et la technopole sur le parvis commun dédié au site.
Si vous êtes intéressés par ces locaux à louer, n'hésitez pas à nous contacter pour planifier une visite et obtenir toutes les informations requises pour votre projet immobilier.
Autoroute A8 à 10 mn : à 30 mn de Nice Centre, à 45 de Monaco et à 2h de Marseille
Aéroport international de Nice à 20 mn
Bus : réseau interurbain ENVIBUS & ZOU
| Étage | Type | Surfaces | Dispo | Loyer | Charges | Type de bailRév. annuelle |
|---|---|---|---|---|---|---|
| RDC | Activités | 4844 | 36 mois ap. déb. trx | 244,14 m²/an HT HC | 6-9 ansIndice ILAT |
Régime Fiscal : T.V.A.
Dépôt de garantie : 3 mois de loyer HT/HC
Paiement Loyer : trimestriel
Honoraires : 15% HT du loyer annuel HT/HC à la charge du preneur
Prestations :
- Life Science d'une surface d'environ 4 844 m²
- Accès logistique sécurisé de 500 m² couvert
- Accès et route dédiés pour les poids-lourds
- Aires de retournement
- Quais de déchargement pour deux poids-lourds et deux semis simultanément
- Hauteur sous dalle : 4.5 m
- Charge au sol : 2T/m²
- Terrasses privatives
- Fibre optique
- Parkings ; 68 places
- Immeuble indépendant
- Surface RDC : 4844 m²
Accessibilité:
Autoroute A8 à 10 mn
Aeroport International de Nice à 20 mn
Bus Réseau ENVIBUS & ZOU
SNCF TGV/TER Antibes à 20 mn
Les informations sur les risques auxquels ce bien est exposé sont disponibles sur le site Géorisques : www.georisques.gouv.fr
Voir plus
Afficher les consommations énergétiques
Favoris
Exporter
Appeler
Contacter
Signaler cette annonce
