Acteur en immobilier d’entreprise, Norman Taylor intervient sur les territoires de Montpellier, Béziers, Narbonne, Perpignan, Aix en Provence, Marseille et Lyon.Nous vous accompagnons dans l'élabor ...
En savoir plus

193 m²
Activité/Entrepôt à vendre - 193 m²
Montpellier (34000)
Dernière mise à jour : Hier
À VENDRE - Locaux d'activités!
Emplacement idéal dans une zone en plein développement
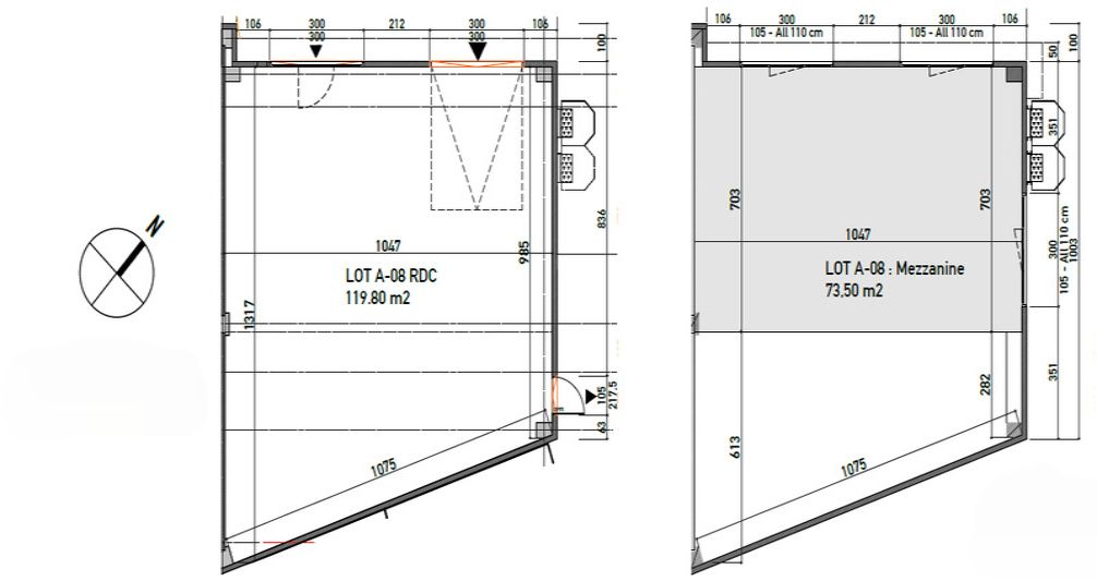
Nouvelle opportunité à saisir - dernier lot de 193 m² disponible :
- 120 m² au sol
- 73,5 m² de mezzanine déjà construite
- 1 porte sectionnelle 3*3
- Un chassis vitré composé 3*3, avec porte centrale
- 3 fenêtres à l'étage
- 1 porte de service
Caractéristiques des locaux :
Hauteur sous plafond de 7 mètres
Portes sectionnelles motorisées pour un accès facilité
Dallage quartz lissé – capacité de charge : 1 tonne/m²
Brut de béton – à aménager selon vos besoins
Tous les fluides (eau, électricité, etc.) déjà en attente dans le local
Parking privatif pour chaque lot (sécurisé et réservé)
Parfait pour :
Activités artisanales
Stockage
Petites unités de production / industrie légère
Contactez-nous pour plus d'infos ou pour planifier une visite !
Les informations sur les risques auxquels ce bien est exposé sont disponibles sur le site Géorisques : www.georisques.gouv.fr
Autoroute A9/A709 à 15 min
Gare Montpellier Saint-Roch à 25 min
Gare Montpellier Sud de France à 25 min
Aéroport Montpellier Méditerranée à 25 min
Disponibilité : Immédiate
Prix de vente : 255000 € HT HF
Honoraires à la charge de l'acquéreur : 4 % HT
| batiment - lot | type | surface | prix vente |
| bat 1 - lot 8 | locaux d''activité | 193 m² | 255 000 € ht/hf |
Voir plus
Afficher les consommations énergétiques
Localisation et transport aux alentours
Favoris
Exporter
Appeler
Contacter
Signaler cette annonce
