Conseil en immobilier d'entreprise, Cushman & Wakefield est un acteur incontournable au rayonnement international. Cushman & Wakefield offre des solutions dans toutes les étapes que comporte un p ...
En savoir plus



2 883 m²
HT HC
PARK EVEREST - Location activité/entrepôt - 2883 m²
Genas (69740)
Dernière mise à jour : Il y a 2 jours
A LOUER LOCAUX D'ACTIVITE DE 2 883 m² au coeur de la ZAC EVREST - GENAS (69740)
Immeuble PARK EVEREST
Nous vous proposons un bâtiment à louer, idéal pour toute activité de production ou de stockage, situé sur la commune de Genas (69740). Ce local d'activités à la location se trouve au coeur de la ZAC Everest, une zone d'activités dynamique et en pleine expansion.
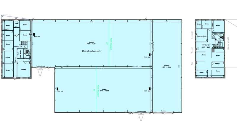
Ce bâtiment récent, en excellent état de construction, offre une surface totale de 2 883 m², répartie entre 603 m² de bureaux climatisés et 2 280 m² d'activités. Le terrain de 7 000 m² environ permet une circulation indépendante pour les poids lourds, avec une entrée dédiée pour le parking VL et une autre pour la zone de déchargement des camions. Les locaux industriels à la location disposent de trois grandes portes sectionnelles de plain-pied motorisées, ainsi que de trois ponts roulants de 5 tonnes chacun, facilitant les opérations de manutention.
Le site est clos et sécurisé, garantissant une tranquillité d'esprit pour les occupants. Le chauffage est assuré par des aérothermes à gaz, et le bâtiment bénéficie du tarif jaune pour l'électricité. La hauteur sous plafond de 10,66 mètres permet une utilisation optimale de l'espace pour le stockage.
La ville de Genas, située à proximité immédiate des axes routiers et autoroutiers, offre une accessibilité exceptionnelle. Le bâtiment est à seulement 3 minutes de l'autoroute A46 (Rocade Est) et à quelques minutes de l'autoroute A43. L'aéroport Lyon Saint-Exupéry est également à 10 minutes environ, facilitant les déplacements internationaux. De plus, le site est desservi par le bus Zi5, permettant un accès facile pour les employés.
La ZAC Everest est un environnement de qualité, proche des pôles de services et des activités routières et autoroutières. Ce bâtiment nouvelle génération est idéalement situé pour répondre aux besoins des entreprises en quête de locaux industriels à la location.
Disponibilité à partir de mai 2025. Bail de 10 ans sous régime fiscal T.V.A. Honoraires de 15 % HT du loyer annuel HT/HC à la charge du preneur.
Pour plus d'informations et pour organiser une visite, n'hésitez pas à nous contacter.
Régime Fiscal : T.V.A.
Dépôt de garantie : 3 mois de loyer HT/HC
Paiement Loyer : Trimestriel
Honoraires : 15 % HT du loyer annuel HT/HC à la charge du preneur.
Information sur le Bail :
Bail commercial de 10 ans, avec résiliation possible aux termes de chaque échéance triennale.
Prestations :
Accessibilité:
Bus Bus Zi5 au pied du parc
Aéroport Aéroport Lyon St Exupéry à 10 min. environ
Accès routier Accès Autoroute A46- Rocade Est en 3 min
Raccordement A43
Les informations sur les risques auxquels ce bien est exposé sont disponibles sur le site Géorisques : www.georisques.gouv.fr
Immeuble PARK EVEREST
Nous vous proposons un bâtiment à louer, idéal pour toute activité de production ou de stockage, situé sur la commune de Genas (69740). Ce local d'activités à la location se trouve au coeur de la ZAC Everest, une zone d'activités dynamique et en pleine expansion.
Ce bâtiment récent, en excellent état de construction, offre une surface totale de 2 883 m², répartie entre 603 m² de bureaux climatisés et 2 280 m² d'activités. Le terrain de 7 000 m² environ permet une circulation indépendante pour les poids lourds, avec une entrée dédiée pour le parking VL et une autre pour la zone de déchargement des camions. Les locaux industriels à la location disposent de trois grandes portes sectionnelles de plain-pied motorisées, ainsi que de trois ponts roulants de 5 tonnes chacun, facilitant les opérations de manutention.
Le site est clos et sécurisé, garantissant une tranquillité d'esprit pour les occupants. Le chauffage est assuré par des aérothermes à gaz, et le bâtiment bénéficie du tarif jaune pour l'électricité. La hauteur sous plafond de 10,66 mètres permet une utilisation optimale de l'espace pour le stockage.
La ville de Genas, située à proximité immédiate des axes routiers et autoroutiers, offre une accessibilité exceptionnelle. Le bâtiment est à seulement 3 minutes de l'autoroute A46 (Rocade Est) et à quelques minutes de l'autoroute A43. L'aéroport Lyon Saint-Exupéry est également à 10 minutes environ, facilitant les déplacements internationaux. De plus, le site est desservi par le bus Zi5, permettant un accès facile pour les employés.
La ZAC Everest est un environnement de qualité, proche des pôles de services et des activités routières et autoroutières. Ce bâtiment nouvelle génération est idéalement situé pour répondre aux besoins des entreprises en quête de locaux industriels à la location.
Disponibilité à partir de mai 2025. Bail de 10 ans sous régime fiscal T.V.A. Honoraires de 15 % HT du loyer annuel HT/HC à la charge du preneur.
Pour plus d'informations et pour organiser une visite, n'hésitez pas à nous contacter.
| Étage | Type | Surfaces | Dispo | Loyer | Charges | Type de bailRév. annuelle |
|---|---|---|---|---|---|---|
| Activités | 2280 | 90 HT/HC/m²/an | Sur l'indice ILAT | |||
| Bureaux | 603 | 90 HT/HC/m²/an | Sur l'indice ILAT | |||
| Total Cellule Park Everest | Activités | 2883 | 10 ansSur l'indice ILAT | |||
| pkg Ext | Parkings | 10 ansSur l'indice ILAT |
Régime Fiscal : T.V.A.
Dépôt de garantie : 3 mois de loyer HT/HC
Paiement Loyer : Trimestriel
Honoraires : 15 % HT du loyer annuel HT/HC à la charge du preneur.
Information sur le Bail :
Bail commercial de 10 ans, avec résiliation possible aux termes de chaque échéance triennale.
Prestations :
- Bâtiment en excellent état de construction
- 3 ponts roulants de 5T
- 3 grandes portes sectionnelles de plain-pied
- Circulation PL indépendante
- Terrasse
- Bureaux climatisés
- HSP : 10.66m
- Salle de pause
- Vestiaire
Accessibilité:
Bus Bus Zi5 au pied du parc
Aéroport Aéroport Lyon St Exupéry à 10 min. environ
Accès routier Accès Autoroute A46- Rocade Est en 3 min
Raccordement A43
Les informations sur les risques auxquels ce bien est exposé sont disponibles sur le site Géorisques : www.georisques.gouv.fr
Voir plus
Afficher les consommations énergétiques
Localisation et transport aux alentours
Favoris
Exporter
Appeler
Contacter
Signaler cette annonce
