Conseil en immobilier d'entreprise, Cushman & Wakefield est un acteur incontournable au rayonnement international. Cushman & Wakefield offre des solutions dans toutes les étapes que comporte un p ...
En savoir plus



545 m² divisible dès 239 m²
HT HC
SWAN - Location bureau - 545 m²
Villeurbanne (69100)
Dernière mise à jour : Il y a 8 jours
Bureaux à vendre ou à louer Villeurbanne!
Immeuble SWAN
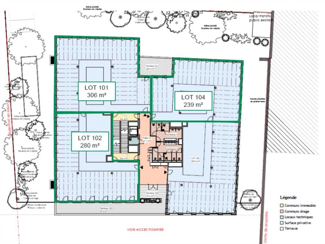
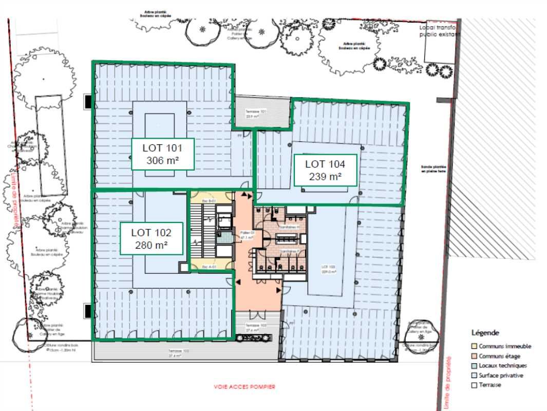
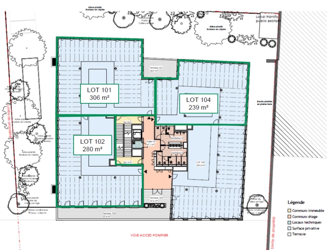
Cushman & Wakefield vous propose à la location ou à la vente trois plateaux de bureaux neufs au sein de l'immeuble tertiaire « SWAN », situé au 70 Cours Tolstoï à Villeurbanne. Cet immeuble à taille humaine développe une surface totale de 3 807 m² et se distingue par la qualité de ses prestations, son architecture moderne ainsi que par sa situation géographique particulièrement stratégique. Idéalement implanté au coeur du quartier en pleine mutation de Villeurbanne Totem, à proximité immédiate du périphérique Laurent Bonnevay, le site bénéficie d'une excellente accessibilité. Il est notamment desservi par plusieurs lignes de bus, permettant un accès rapide à la gare TGV de Lyon Part-Dieu, située à seulement 10 minutes.
Trois surfaces de bureaux sont actuellement disponibles : 239 m², 280 m² et 306 m². Ces plateaux, lumineux, fonctionnels et aisément modulables, offrent une grande souplesse d'aménagement, favorisant un cadre de travail à la fois confortable et productif. L'immeuble SWAN répond pleinement aux exigences actuelles en matière de performance et de qualité de vie au travail. Il intègre des équipements pensés pour le bien-être des occupants, tels que des douches, des vestiaires, un local vélos sécurisé ainsi que 12 emplacements de stationnement. Les abords immédiats de l'immeuble offrent une grande diversité de services de proximité, commerces, restaurants et solutions de mobilité.
Pensé pour répondre aux attentes des entreprises en quête d'un environnement de travail moderne et efficient, cet ensemble immobilier constitue une opportunité rare sur le marché tertiaire de Villeurbanne. Il représente une solution pérenne et valorisante pour implanter vos activités dans un cadre dynamique, bien desservi et en pleine évolution.
Régime Fiscal : T.V.A.
Dépôt de garantie : 3 mois de loyer HT/HC
Paiement Loyer : Trimestriel
Honoraires : 15 % HT du loyer annuel HT/HC à la charge du preneur.
Prestations :
Accessibilité:
Métro Métro République Villeurbanne (ligne A)
Tram T1 - T3 - T4
Bus Bus C3 à proximité immédiate
SNCF Part-Dieu à 15-20 mn à pied ou 10 mn en bus
Aéroport Saint Ex. à 30 mn. en voiture
Les informations sur les risques auxquels ce bien est exposé sont disponibles sur le site Géorisques : www.georisques.gouv.fr
Immeuble SWAN
Cushman & Wakefield vous propose à la location ou à la vente trois plateaux de bureaux neufs au sein de l'immeuble tertiaire « SWAN », situé au 70 Cours Tolstoï à Villeurbanne. Cet immeuble à taille humaine développe une surface totale de 3 807 m² et se distingue par la qualité de ses prestations, son architecture moderne ainsi que par sa situation géographique particulièrement stratégique. Idéalement implanté au coeur du quartier en pleine mutation de Villeurbanne Totem, à proximité immédiate du périphérique Laurent Bonnevay, le site bénéficie d'une excellente accessibilité. Il est notamment desservi par plusieurs lignes de bus, permettant un accès rapide à la gare TGV de Lyon Part-Dieu, située à seulement 10 minutes.
Trois surfaces de bureaux sont actuellement disponibles : 239 m², 280 m² et 306 m². Ces plateaux, lumineux, fonctionnels et aisément modulables, offrent une grande souplesse d'aménagement, favorisant un cadre de travail à la fois confortable et productif. L'immeuble SWAN répond pleinement aux exigences actuelles en matière de performance et de qualité de vie au travail. Il intègre des équipements pensés pour le bien-être des occupants, tels que des douches, des vestiaires, un local vélos sécurisé ainsi que 12 emplacements de stationnement. Les abords immédiats de l'immeuble offrent une grande diversité de services de proximité, commerces, restaurants et solutions de mobilité.
Pensé pour répondre aux attentes des entreprises en quête d'un environnement de travail moderne et efficient, cet ensemble immobilier constitue une opportunité rare sur le marché tertiaire de Villeurbanne. Il représente une solution pérenne et valorisante pour implanter vos activités dans un cadre dynamique, bien desservi et en pleine évolution.
| Étage | Type | Surfaces | Dispo | Loyer | Charges | Type de bailRév. annuelle |
|---|---|---|---|---|---|---|
| 1 | Bureaux | 306 | 195 HT/HC/m²/an | 3-6-9 ansSur l'indice ILAT | ||
| 1 | Bureaux | 239 | 195 HT/HC/m²/an | 3-6-9 ansSur l'indice ILAT | ||
| Sous-Sol | Parkings | 1500 HT/HC/U/an | 3-6-9 ansSur l'indice ILAT |
Régime Fiscal : T.V.A.
Dépôt de garantie : 3 mois de loyer HT/HC
Paiement Loyer : Trimestriel
Honoraires : 15 % HT du loyer annuel HT/HC à la charge du preneur.
Prestations :
- E+/C- au niveau E2C1
- HQE Bâtiment durable niveau Performant
- Contrôle d'accès
- Hall d'entrée
- Autonomie lumineuse
- Performance thermique des façades
- Chauffage collectif
- Ascenseur
- Accès PMR
- Stationnements vélos, vestiaires et douches
- Dans un quartier populaire résidentiel et en plein développement, SWAN est situé à proximité de nombreux services
- Espaces de qualité : terrasses (pour chaque lot) et jardin paysagé
- Confort hygrothermique et haute qualité d'air intérieur
- Bureaux climatisés
- Luminaires encastrés
- Sol bureaux : moquette
- Faux plafond suspendus en fibres minérale
- Plateaux en parfait état à cloisonner
- Aménagement des bureaux : espaces ouverts
- Climatisation double flux
- Faux plancher technique
- Sanitaires
Accessibilité:
Métro Métro République Villeurbanne (ligne A)
Tram T1 - T3 - T4
Bus Bus C3 à proximité immédiate
SNCF Part-Dieu à 15-20 mn à pied ou 10 mn en bus
Aéroport Saint Ex. à 30 mn. en voiture
Les informations sur les risques auxquels ce bien est exposé sont disponibles sur le site Géorisques : www.georisques.gouv.fr
Voir plus
Afficher les consommations énergétiques
Localisation et transport aux alentours
Favoris
Exporter
Appeler
Contacter
Signaler cette annonce










