Conseil en immobilier d'entreprise, Cushman & Wakefield est un acteur incontournable au rayonnement international. Cushman & Wakefield offre des solutions dans toutes les étapes que comporte un p ...
En savoir plus

6 073 m² divisible dès 3 000 m²
HT HC
MELTING - Location bureau - 6073 m²
Villeurbanne (69100)
Dernière mise à jour : Il y a 23 jours
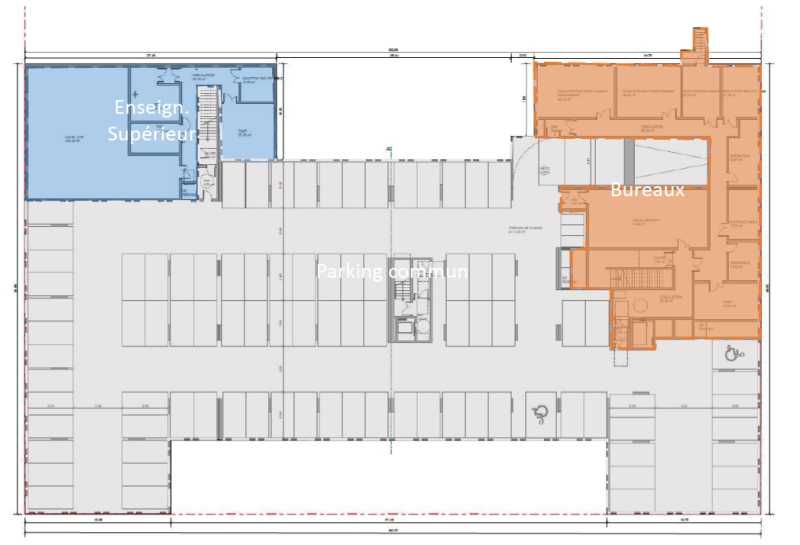
Projet d'immeuble ERP1
Immeuble MELTING
Cushman & Wakefield vous propose des locaux classés ERP1 à Villeurbanne 69100
Au coeur de Villeurbanne, sur le site de l'ancienne clinique du Tonkin, MEANING
est situé à proximité du parc de la Tête d'Or. Il est dédié à l'enseignement supérieur,
L'immeuble bénéficie de nombreuses certifications et labels, dont RE 2020, HQE Bâtiment Durable niveau très performant, WIRED SCORE Silver, OZMOZ, et BIODIVERCITY.
Le projet bénéficie d'une situation géographique privilégiée, à proximité des transports en commun, du campus de la Doua, de commerces et de services, ainsi qu'une aire de stationnement pour vélos et de places de parking en sous-sol.
Tramway lignes T1 et T4 arrêt Condorcet à proximité.
Les informations sur les risques auxquels ce bien est exposé sont disponibles sur le site Géorisques : www.georisques.gouv.fr.
Régime Fiscal : T.V.A.
Dépôt de garantie : 3 mois de loyer HT/HC
Paiement Loyer : Trimestriel
Honoraires : 15 % HT du loyer annuel HT/HC à la charge du preneur.
Prestations :
Accessibilité:
Métro Charpennes ( ligne B) à 900 m
Métro Charles Hernu (ligne A)
Tram T1, T4 à 400 m
Bus Ligne C2 à 100 m
vélo'v A proximité
Les informations sur les risques auxquels ce bien est exposé sont disponibles sur le site Géorisques : www.georisques.gouv.fr
Immeuble MELTING
Cushman & Wakefield vous propose des locaux classés ERP1 à Villeurbanne 69100
Au coeur de Villeurbanne, sur le site de l'ancienne clinique du Tonkin, MEANING
est situé à proximité du parc de la Tête d'Or. Il est dédié à l'enseignement supérieur,
L'immeuble bénéficie de nombreuses certifications et labels, dont RE 2020, HQE Bâtiment Durable niveau très performant, WIRED SCORE Silver, OZMOZ, et BIODIVERCITY.
Le projet bénéficie d'une situation géographique privilégiée, à proximité des transports en commun, du campus de la Doua, de commerces et de services, ainsi qu'une aire de stationnement pour vélos et de places de parking en sous-sol.
Tramway lignes T1 et T4 arrêt Condorcet à proximité.
Les informations sur les risques auxquels ce bien est exposé sont disponibles sur le site Géorisques : www.georisques.gouv.fr.
| Étage | Type | Surfaces | Dispo | Loyer | Charges | Type de bailRév. annuelle |
|---|---|---|---|---|---|---|
| RdC | Bureaux | 937 | 230 HT/HC/m²/an | 6-9 ansSur l'indice ILAT | ||
| R+1 | Bureaux | 1107 | 230 HT/HC/m²/an | 6-9 ansSur l'indice ILAT | ||
| R+2 | Bureaux | 1260 | 230 HT/HC/m²/an | 6-9 ansSur l'indice ILAT | ||
| R+3 | Bureaux | 1253 | 230 HT/HC/m²/an | 6-9 ansSur l'indice ILAT | ||
| R+4 | Bureaux | 596 | 230 HT/HC/m²/an | 6-9 ansSur l'indice ILAT | ||
| R+5 | Bureaux | 600 | 230 HT/HC/m²/an | 6-9 ansSur l'indice ILAT | ||
| Sous-Sol | Bureaux | 320 | 230 HT/HC/m²/an | 6-9 ansSur l'indice ILAT | ||
| Sous-Sol | Parkings | 1800 HT/HC/U/an | 6-9 ansSur l'indice ILAT |
Régime Fiscal : T.V.A.
Dépôt de garantie : 3 mois de loyer HT/HC
Paiement Loyer : Trimestriel
Honoraires : 15 % HT du loyer annuel HT/HC à la charge du preneur.
Prestations :
- Immeuble de bureaux labellisé
- RE2020, HQE, Wired, Ozmoz
- ERP5 type W
- 658 personnes
- Public 99 personnes (au R+7)
- Hall d'accueil hybride et serviciel
- Espace évènementiel avec rooftop au R+7 et terrasse au R+6 + loggias à chaque étage de 86m² à 456m²
- Espace paysagé
- Terrasses
- Rooftop
- Aire de stationnement vélos
- Aire de stationnement de vélos privative (50)
- Accès privatif indépendant sur la Promenade du Lys Orangé
- Terrasse privative de 220 m² au R+ 4
- HAUTEURS LIBRES
- HSP Bureaux administratifs : 4,52 m
- Salles de classe : 3,18 m
- Salle polyvalente RDC : 8,04 m
- Salle polyvalente R+5 : 4,50 m
- Faux plancher technique Plénum de 11 cm
- Brises
- Soleils Orientables extérieurs et motorisés, à lames métalliques sur les façades Est, Ouest et Sud
- CTA d'air double flux à débit variable avec récupérateur d'énergie (18 m3/h par personne)
- Traitement thermique des locaux par ventilo convecteurs 4 tubes verticaux / 2 tubes horizontaux (change over)
- Alimentation par réseau chaud / froid urbain et panneaux photovoltaïques
- Surface RDC : 937 m²
Accessibilité:
Métro Charpennes ( ligne B) à 900 m
Métro Charles Hernu (ligne A)
Tram T1, T4 à 400 m
Bus Ligne C2 à 100 m
vélo'v A proximité
Les informations sur les risques auxquels ce bien est exposé sont disponibles sur le site Géorisques : www.georisques.gouv.fr
20 Parking(s) en sous-sol
Voir plus
Afficher les consommations énergétiques
Localisation et transport aux alentours
- Le Tonkin27m (0min à pied)14
- Charpennes400m (6min à pied)1
- Charpennes - Charles Hernu402m (6min à pied)AB4
- Condorcet522m (8min à pied)14
Favoris
Exporter
Appeler
Contacter
Signaler cette annonce
