Société de conseil immobilier implantée sur Lyon et Paris, Sorovim accompagne particuliers et professionnels dans leurs projets de vente, d’acquisition, d’investissement et d’estimation de bien.Sor ...
En savoir plus

5 955 m² divisible dès 96 m²
HT HC
GREEN CAMPUS MOULIN A VENT - Location bureau - 5955 m²
Vénissieux (69200)
Dernière mise à jour : Il y a 5 mois
Bureaux à louer de 19 500m² divisibles à partir de 41m²
Immeuble GREEN CAMPUS MOULIN A VENT
Bureaux à louer au coeur d'un immense parc arboré de 9 hectares (28 bâtiments). Le parc d'affaires du Moulin à Vent est idéalement situé à la frontière des 7e et 8e arrondissements de Lyon, et bénéficie d'un décor lumineux et ouvert sur la végétation. Disponibilité immédiate
Impôt Foncier : 17 €/HT/ m² / an
Régime Fiscal : T.V.A.
Dépôt de garantie : 3 mois de loyer HT HC
Honoraires : 15% HT du loyer annuel HT HC, à la charge du preneur
Information sur le Bail :
Loyer parking inclus
Prestations :
Accessibilité:
Aéroport à 25min. environ en voiture (via A43)
Route Grands axes : route de Vienne, av. Francis de Pressensé, bd périph. Laurent Bonnevay, accès rapide autoroutes A7/A43
SNCF Gare de la Part-Dieu à 30 min. environ en transport en commun
Bus Bus : lignes C12, C16, 35
Bus Navette jusqu'aux stations : États-Unis Viviani (tramway T4) et Parilly (métroD)
Les informations sur les risques auxquels ce bien est exposé sont disponibles sur le site Géorisques : www.georisques.gouv.fr
Immeuble GREEN CAMPUS MOULIN A VENT
Bureaux à louer au coeur d'un immense parc arboré de 9 hectares (28 bâtiments). Le parc d'affaires du Moulin à Vent est idéalement situé à la frontière des 7e et 8e arrondissements de Lyon, et bénéficie d'un décor lumineux et ouvert sur la végétation. Disponibilité immédiate
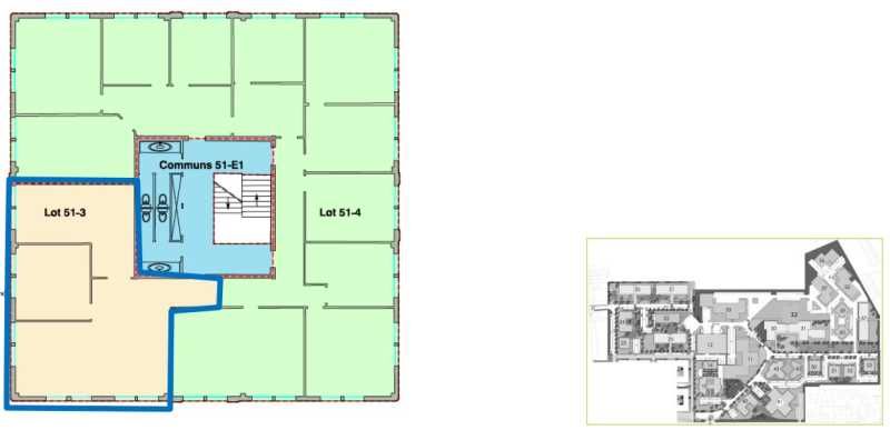
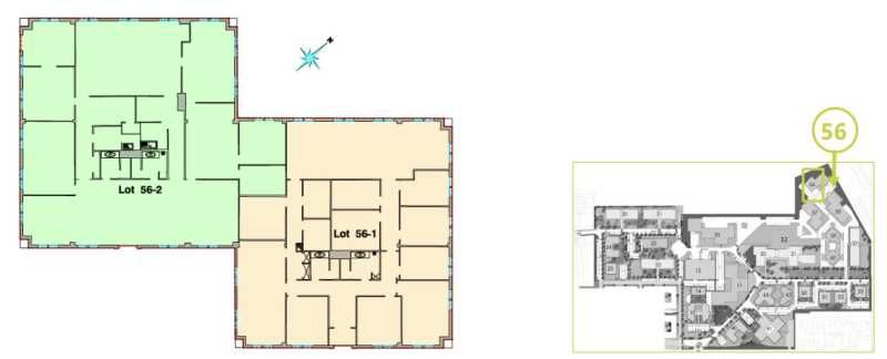
| Étage | Type | Surfaces | Dispo | Loyer | Charges | Type de bailRév. annuelle |
|---|---|---|---|---|---|---|
| RDC | Bureaux | 333 | 135 HT HC/m²/an | 3-6-9 ansILAT Indice des Loyers des Activités Tertiaires | ||
| RDC | Bureaux | 225 | 135 HT HC/m²/an | 3-6-9 ansILAT Indice des Loyers des Activités Tertiaires | ||
| 1 | Bureaux | 258 | 140 HT HC/ m²/ an | 28 HT/m²/an | 3-6-9 ansILAT Indice des Loyers des Activités Tertiaires | |
| RDC | Bureaux | 337 | 140 HT HC/ m²/ an | 28 HT/m²/an | 3-6-9 ansILAT Indice des Loyers des Activités Tertiaires | |
| RDC | Bureaux | 132 | 140 HT HC/ m²/ an | 28 HT/m²/an | 3-6-9 ansILAT Indice des Loyers des Activités Tertiaires | |
| RDC | Bureaux | 97 | 135 HT HC/ m²/ an | 28 HT/m²/an | 3-6-9 ansILAT Indice des Loyers des Activités Tertiaires | |
| RDC | Bureaux | 199 | 135 HT HC/ m²/ an | 28 HT/m²/an | 3-6-9 ansILAT Indice des Loyers des Activités Tertiaires | |
| RDC | Bureaux | 345 | 125 HT HC/ m²/ an | 28 HT/m²/an | 3-6-9 ansILAT Indice des Loyers des Activités Tertiaires | |
| RDC | Bureaux | 264 | 125 HT HC/ m²/ an | 28 HT/m²/an | 3-6-9 ansILAT Indice des Loyers des Activités Tertiaires | |
| RDC | Bureaux | 227 | 125 HT HC/ m²/ an | 28 HT/m²/an | 3-6-9 ansILAT Indice des Loyers des Activités Tertiaires | |
| RDC | Bureaux | 281 | 140 HT HC/ m²/ an | 28 HT/m²/an | 3-6-9 ansILAT Indice des Loyers des Activités Tertiaires | |
| RDC | Bureaux | 102 | 140 HT HC/ m²/ an | 28 HT/m²/an | 3-6-9 ansILAT Indice des Loyers des Activités Tertiaires | |
| RDC | Bureaux | 219 | 140 HT HC/m²/an | 3-6-9 ansILAT Indice des Loyers des Activités Tertiaires | ||
| RDC | Bureaux | 198 | Immédiate | 140 HT HC/m²/an | 28 HT/m²/an | 3-6-9 ansILAT Indice des Loyers des Activités Tertiaires |
| 1 | Bureaux | 218 | 140 HT HC/ m²/ an | 28 HT/m²/an | 3-6-9 ansILAT Indice des Loyers des Activités Tertiaires | |
| 1 | Bureaux | 107 | 140 HT HC/ m²/ an | 28 HT/m²/an | 3-6-9 ansILAT Indice des Loyers des Activités Tertiaires | |
| RDC | Bureaux | 96 | 140 HT HC/ m²/ an | 28 HT/m²/an | 3-6-9 ansILAT Indice des Loyers des Activités Tertiaires | |
| 1 | Bureaux | 430 | 140 HT HC/ m²/ an | 28 HT/m²/an | 3-6-9 ansILAT Indice des Loyers des Activités Tertiaires | |
| 1 | Bureaux | 252 | 135 HT/HC/m²/an | 28 HT/m²/an | 3-6-9 ansILAT Indice des Loyers des Activités Tertiaires | |
| RDC | Bureaux | 286 | 135 HT/HC/m²/an | 28 HT/m²/an | 3-6-9 ansILAT Indice des Loyers des Activités Tertiaires | |
| 1 | Bureaux | 303 | 135 HT/HC/m²/an | 28 HT/m²/an | 3-6-9 ansILAT Indice des Loyers des Activités Tertiaires | |
| 1 | Bureaux | 106 | 135 HT/HC/m²/an | 28 HT/m²/an | 3-6-9 ansILAT Indice des Loyers des Activités Tertiaires | |
| RDC | Bureaux | 144 | 135 HT/HC/m²/an | 28 HT/m²/an | 3-6-9 ansILAT Indice des Loyers des Activités Tertiaires | |
| RDC | Bureaux | 401 | immédiate | 135 HT HC/ m²/ an | 28 HT/m²/an | 3-6-9 ansILAT Indice des Loyers des Activités Tertiaires |
| RDC | Bureaux | 395 | Immédiate | 140 HT HC/m²/an | 28 HT/m²/an | 3-6-9 ansILAT Indice des Loyers des Activités Tertiaires |
Impôt Foncier : 17 €/HT/ m² / an
Régime Fiscal : T.V.A.
Dépôt de garantie : 3 mois de loyer HT HC
Honoraires : 15% HT du loyer annuel HT HC, à la charge du preneur
Information sur le Bail :
Loyer parking inclus
Prestations :
- Parc tertiaire de 28 bâtiments
- Parc clos avec accès sécurisé
- Point courrier dans le bâtiment accueil
- Les bâtiments 12.33.40.50.51.52.55 et 57 ont été rénovés:
- Isolation par l'extérieur
- Isolation des toitures et étanchéité
- Changement des menuiseries extérieurs
- Installation de brise soleil ou de système d'occultation
- Habillage des façades
- Traitement des auvents sur accès et de la signalétique
- Bâtiment 20
- Neufs et indépendant en R+2 avec parking
- Hauteur sous plafond : 2,70 m
- Faux plafond et luminaires encastrés LED
- Sanitaires : privatifs ou communs
- Climatisation par air rafraîchi ou pompe à chaleur, selon les bâtiments
- Double vitrage
- Chauffage électrique
- Douche PMR en rez de chaussée
- Restaurant (Food trucks...) et crèche
- Navette
- Bornes électriques
- Navette privée électrique
- Fibre optique
- Espace détente
- 120 Places de parking
- Bâtiment à construire: PC purgé
- Possibilité clés en mains
- Surface RDC : 4281 m²
Accessibilité:
Aéroport à 25min. environ en voiture (via A43)
Route Grands axes : route de Vienne, av. Francis de Pressensé, bd périph. Laurent Bonnevay, accès rapide autoroutes A7/A43
SNCF Gare de la Part-Dieu à 30 min. environ en transport en commun
Bus Bus : lignes C12, C16, 35
Bus Navette jusqu'aux stations : États-Unis Viviani (tramway T4) et Parilly (métroD)
Les informations sur les risques auxquels ce bien est exposé sont disponibles sur le site Géorisques : www.georisques.gouv.fr
Voir plus
Afficher les consommations énergétiques
Localisation et transport aux alentours
Favoris
Exporter
Appeler
Contacter
Signaler cette annonce










