L''équipe de BNP Paribas Real Estate Nice compte 9 collaborateurs qui sont spécialisés dans la location et la vente de bureaux, entrepôts, locaux d''activités et commerces, ainsi que dans les inves ...
En savoir plus

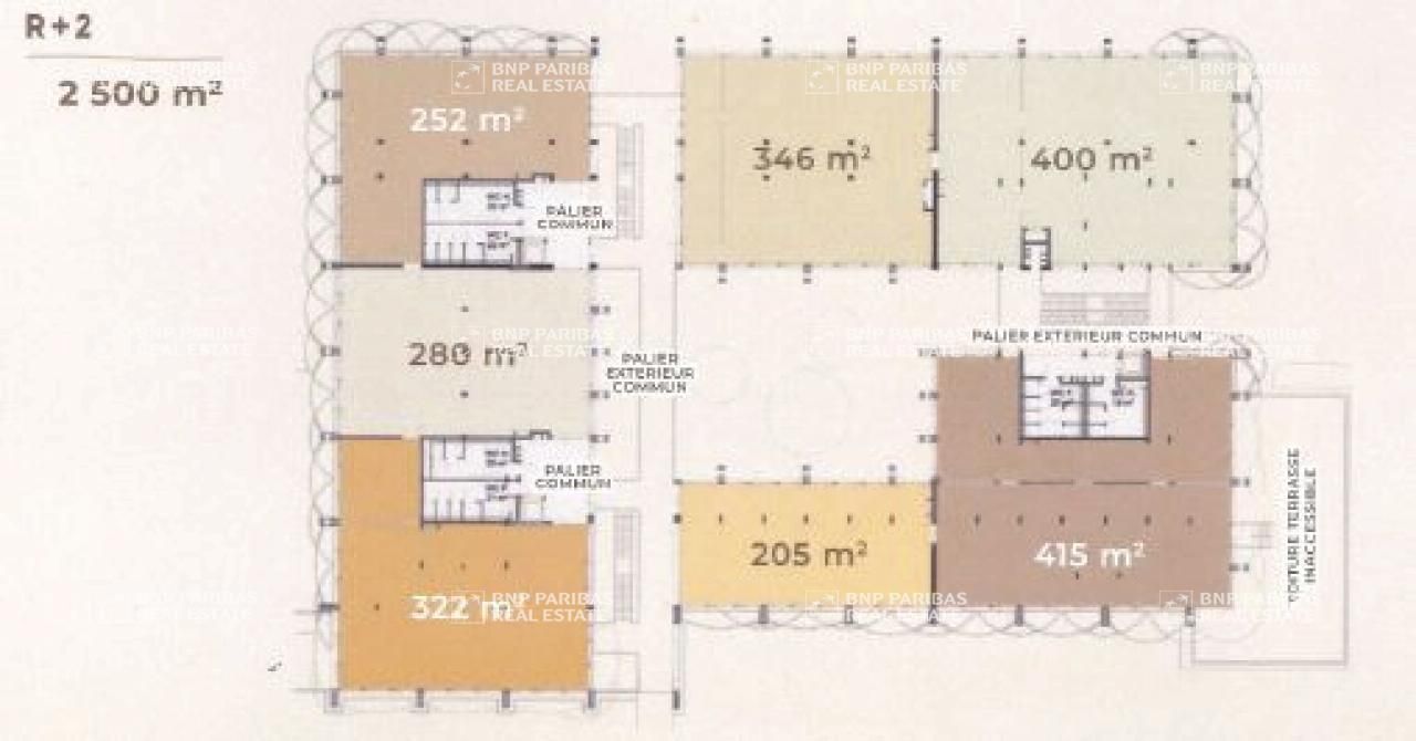
Location bureau - 6620 m²
OLBUR2311552 LOCATION BUREAUX – VALBONNE – LES LUCIOLES
Nous vous proposons des bureaux à louer de 6.534 m² au coeur de la Technopole de Sophia Antipolis, sur la commune de Valbonne.
L'offre dispose de très beaux espaces végétalisés, d’un grand nombre de places de parking ainsi que des espaces prévus pour la mobilité douce (vélos, motos) et voitures électriques.
Etude d'espaces en laboratoire possible
Les équipements de l’immeuble :
- Patio végétalisé et espaces extérieurs paysagés
- Toiture terrasse au R+1 et R+3
- Bâtiment classé Code du Travail
- Faux-plafond avec dalle en fibre minérale
- 12 bornes de recharge électrique
- Parc à vélos et motos (17 places)
- 240 places de stationnement dont 41 couvertes
- Dalles acoustiques en faux-plafond
- Climatisation : 3 tubes
- Labellisation à l'étude
- capacitaires : 591 personnes
- 12 bornes de recharge pour véhicules électriques pré-équipées dont 1 PMR
- Disponibilité prévisionnelle : T1 2027
A proximité, vous trouverez le parc des Bouillides, des hôtels, des points de restauration, des écoles, des food truck...
Facilement accessibles via les axes routiers et autoroutiers et les transports en commun, ces bureaux offrent une excellente desserte :
- A8
- Gare SNCF d’Antibes à 15 min
- Gare SNCF Cannes à 20 min
- Aéroport Nice Côte d’Azur à 20 min
- Bus 664 à proximité
OLBUR2311552 LOCATION BUREAUX – VALBONNE – LES LUCIOLES
Nous vous proposons des bureaux à louer de 6.534 m² au coeur de la Technopole de Sophia Antipolis, sur la commune de Valbonne.
L'offre dispose de très beaux espaces végétalisés, d’un grand nombre de places de parking ainsi que des espaces prévus pour la mobilité douce (vélos, motos) et voitures électriques.
Etude d'espaces en laboratoire possible
Les équipements de l’immeuble :
- Patio végétalisé et espaces extérieurs paysagés
- Toiture terrasse au R+1 et R+3
- Bâtiment classé Code du Travail
- Faux-plafond avec dalle en fibre minérale
- 12 bornes de recharge électrique
- Parc à vélos et motos (17 places)
- 240 places de stationnement dont 41 couvertes
- Dalles acoustiques en faux-plafond
- Climatisation : 3 tubes
- Labellisation à l'étude
- capacitaires : 591 personnes
- 12 bornes de recharge pour véhicules électriques pré-équipées dont 1 PMR
- Disponibilité prévisionnelle : T1 2027
A proximité, vous trouverez le parc des Bouillides, des hôtels, des points de restauration, des écoles, des food truck...
Facilement accessibles via les axes routiers et autoroutiers et les transports en commun, ces bureaux offrent une excellente desserte :
- A8
- Gare SNCF d’Antibes à 15 min
- Gare SNCF Cannes à 20 min
- Aéroport Nice Côte d’Azur à 20 min
- Bus 664 à proximité
Honoraires: 15% HT du loyer HT/HC. à la signature du bail
| Fiche technique du bien | |
|---|---|
| Bus | Oui |
| Desserte routière | Route du Parc, route des Lucioles et A8 |
| Aéroport | à 20 min |
| Gare | Antibes à 20 min |
| Accès Pers. Mobilité Réduite | Oui |
| Etat de l'immeuble | Restructuré avec PC |
| Parking(s) | 240 Places soit 1 place/27 m² |
| Immeuble indépendant | Oui |
| Type chauffage | Collectif |
| Climatisation | Air rafraîchi 3 tubes VRV |
| Environnement de proximité | technopole |
| Sécurité | Contrôle d'accès |
| Ascenseur(s) | aux normes PMR |
| Fenêtres | Oui |
| Aménagement des bureaux | Espaces Ouverts |
| Faux plafond | Dal. fibres minéral. |
| Eclairage Bureaux | Luminaires encastrés |
| Sol bureaux | souple |
| Sanitaire(s) | Parties communes |
