Nous sommes Immprove, une grande équipe de plus de 200 experts en immobilier d’entreprise, implantés localement avec plus de 20 agences sur tout le territoire.Depuis 2009, notre proximité, notre ét ...
En savoir plus

154 m²
HT HC
Location bureau - 154 m²
Saint-Ouen-l'Aumône (95310)
Dernière mise à jour : Il y a 7 jours
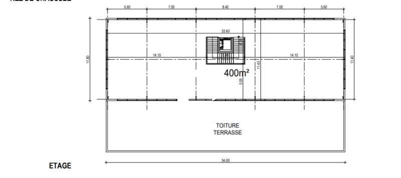
Au coeur de la Zone commerciale de Saint Ouen l'Aumône, IMMPROVE vous propose à la location un plateau de bureaux neuf de 154 m² . Belle visibilité et parking à disposition.
Normes P.M.R.
Impôt Foncier : 15 €//m²/an HT
Régime Fiscal : T.V.A. (20%)
Dépôt de garantie : 3 mois de loyer HT HC
Honoraires : 15% à la charge du preneur.
Prestations :
Accessibilité:
Autoroute A15 / A115
Route N184
SNCF Épluches (France)
Bus Henri Becquerel / Epluches (BUS-56)
Les informations sur les risques auxquels ce bien est exposé sont disponibles sur le site Géorisques : www.georisques.gouv.fr
Normes P.M.R.
| Étage | Type | Surfaces | Dispo | Loyer | Charges | Type de bailRév. annuelle |
|---|---|---|---|---|---|---|
| 1 | Bureaux | 154 | Immédiate | 200 m²/an HT HC | 9 m²/an HT | Bail Commercial 6-10 ansselon l'indice des loyers des activités tertiaires (ILAT) |
Impôt Foncier : 15 €//m²/an HT
Régime Fiscal : T.V.A. (20%)
Dépôt de garantie : 3 mois de loyer HT HC
Honoraires : 15% à la charge du preneur.
Prestations :
- Livré Brut de béton
- Terrasse de 300 m²
- Ascenseur PMR
- Plateau de bureaux lumineux
- Parking
Accessibilité:
Autoroute A15 / A115
Route N184
SNCF Épluches (France)
Bus Henri Becquerel / Epluches (BUS-56)
Les informations sur les risques auxquels ce bien est exposé sont disponibles sur le site Géorisques : www.georisques.gouv.fr
Voir plus
Afficher les consommations énergétiques
Favoris
Exporter
Appeler
Contacter
Signaler cette annonce
