Présent depuis plus de 30 ans à Orléans, l''agence dispose de toute l''expérience nécessaire pour vous aider à mener à bien votre projet immobilier sur la métropole. Son équipe dynamique, composée ...
En savoir plus

129 m²
HT HC
Location bureau - 129 m²
Orléans (45000)
Dernière mise à jour : Aujourd'hui
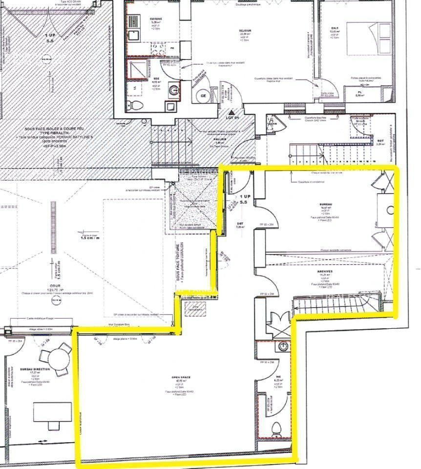
ORLEANS HYPER-CENTRE PLACE DU MARTROI Situé en plein coeur de la ville, à proximité des réseaux de transports en communs (bus, Tram, Vélo +) , BNP PARIBAS REAL ESTATE vous propose à la location une surface de 125 m² environ, comprenant : 80 m² de bureaux et 45 m² de surface d'archives en sous-sol. 1 place de parking accompagne la surface. Ces locaux sont en parfait état et bénéficient de prestations de qualités.
Description du bien :
Bureaux :
Aménagés avec des faux plafonds, baie de brassage et cblage informatique, disposant de la fibre optique :
- en RDC :
- un espace accueil,
- 2 bureaux fermés,
- open space,
- espace détente,
- sanitaires privatifs,
- en R-1 :
rangement
Accessibilité et environnement :
- Hyper centre ville,
- Proche de toutes commodités
- au centre du réseau de transport en commun
- Proximité immédiate des parkings publics
Disponibilité : Immédiate
Ne manquez pas cette opportunité unique de concrétiser vos projets immobiliers sur la métropole d'Orléans.
Contactez BNP PARIBAS REAL ESTATE dès aujourd'hui pour organiser une visite !
Disponibilité: 01/03/2026
Honoraires: 15% HT du loyer HT/HC. à la signature du bail
| Fiche technique du bien | |
|---|---|
| Bus | Oui |
| Tramway | Oui |
| Accès Pers. Mobilité Réduite | Oui |
| Etat de l'immeuble | Rénové |
| Type chauffage | Individuel |
| Source chauffage | Electrique |
| Climatisation | Réversible partiellement |
| Environnement de proximité | HYPER CENTRE VILLE |
| Ascenseur(s) | 1 |
| Hall d'accueil | Indépendant |
| Câblage informatique | Oui |
| Aménagement des bureaux | Cloisonnés |
| Faux plafond | Dal. fibres minéral. |
| Eclairage Bureaux | Luminaires encastrés |
| Sol bureaux | Moquette/Carrelage |
| Sanitaire(s) | Privatif(s) |
Voir plus
Afficher les consommations énergétiques
Favoris
Exporter
Appeler
Contacter
Signaler cette annonce
