Nous sommes Immprove, une grande équipe de plus de 200 experts en immobilier d’entreprise, implantés localement avec plus de 20 agences sur tout le territoire.Depuis 2009, notre proximité, notre ét ...
En savoir plus

405 m² divisible dès 150 m²
HT HC
Location bureau - 405 m²
Montrouge (92120)
Dernière mise à jour : Il y a 10 jours
Une surface de bureaux et stockage proche Paris.
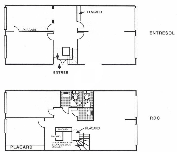
IMMPROVE vous propose dans un ensemble immobilier mixte située proche de la Nationale 20, dans la commune de Montrouge, à proximité des transports (bus, métro ligne 4 et non loin du RER B), une surface de bureaux en cours de rénovation de 150 m² répartie sur deux niveaux, et une surface de stockage de 255 m² en sous sol.
Parkings.
Impôt Foncier : 27,6 €//m²/an HT
Régime Fiscal : T.V.A. (20%)
Dépôt de garantie : 3 mois de loyer HT HC
Honoraires : 15% HT du loyer annuel HT HC à la charge du preneur
Taxe Bureau : 21,7 €/m²/an
Information sur le Bail :
foncier : bureaux : 27,6 euros HT / m²/ an Activités : 8 euros HT / m²/ an
Prestations :
Accessibilité:
Bus Bus
RER Denfert-Rochereau (B)
Route RN20
Autoroute A6
Autoroute Boulevard Périphérique
Tramway Porte d'Orléans (3)
Les informations sur les risques auxquels ce bien est exposé sont disponibles sur le site Géorisques : www.georisques.gouv.fr
IMMPROVE vous propose dans un ensemble immobilier mixte située proche de la Nationale 20, dans la commune de Montrouge, à proximité des transports (bus, métro ligne 4 et non loin du RER B), une surface de bureaux en cours de rénovation de 150 m² répartie sur deux niveaux, et une surface de stockage de 255 m² en sous sol.
Parkings.
| Étage | Type | Surfaces | Dispo | Loyer | Charges | Type de bailRév. annuelle |
|---|---|---|---|---|---|---|
| RDC/Entr | Bureaux | 150 | Immédiate | 190 m²/an HT HC | 28,4 m²/an HT | Bail Commercial 3-6-9 ansselon l'indice des loyers des activités tertiaires (ILAT) |
| 1SS | Stockage | 255 | Immédiate | 120 m²/an HT HC | 2,12 m²/an HT | Bail Commercial 3-6-9 ansselon l'indice des loyers des activités tertiaires (ILAT) |
| 1SS | Parkings | Immédiate | 1200 place/an HT HC | Bail Commercial 3-6-9 ansselon l'indice des loyers des activités tertiaires (ILAT) |
Impôt Foncier : 27,6 €//m²/an HT
Régime Fiscal : T.V.A. (20%)
Dépôt de garantie : 3 mois de loyer HT HC
Honoraires : 15% HT du loyer annuel HT HC à la charge du preneur
Taxe Bureau : 21,7 €/m²/an
Information sur le Bail :
foncier : bureaux : 27,6 euros HT / m²/ an Activités : 8 euros HT / m²/ an
Prestations :
- Chauffage : Chauff. collectif gaz
- Bureaux traversants en duplex
- Porte blindée
- La surface sera livrée rénovée (Peinture, sol, changement des dalles de faux plafond à l'entrée, sanitaires)
- En rez de chaussée haut : 4 bureaux cloisonnés et un espace type accueil
- En rez de jardin : 2 sanitaires privatifs, un espace cuisine, 1 grand open space, et un bureau.
- Sol PVC imitation parquet
- Luminaires LED au plafond
- Cloisons sèches
- chauffage central immeuble
Accessibilité:
Bus Bus
RER Denfert-Rochereau (B)
Route RN20
Autoroute A6
Autoroute Boulevard Périphérique
Tramway Porte d'Orléans (3)
Les informations sur les risques auxquels ce bien est exposé sont disponibles sur le site Géorisques : www.georisques.gouv.fr
Voir plus
Afficher les consommations énergétiques
Localisation et transport aux alentours
Favoris
Exporter
Appeler
Contacter
Signaler cette annonce
