Conseil en immobilier d'entreprise, Cushman & Wakefield est un acteur incontournable au rayonnement international. Cushman & Wakefield offre des solutions dans toutes les étapes que comporte un p ...
En savoir plus



972 m²
HT HC
Location bureau - 972 m²
Lyon 9 (69009)
Publiée : Il y a 2 jours
Bureaux à louer Lyon 9ème, idéal pour une école!
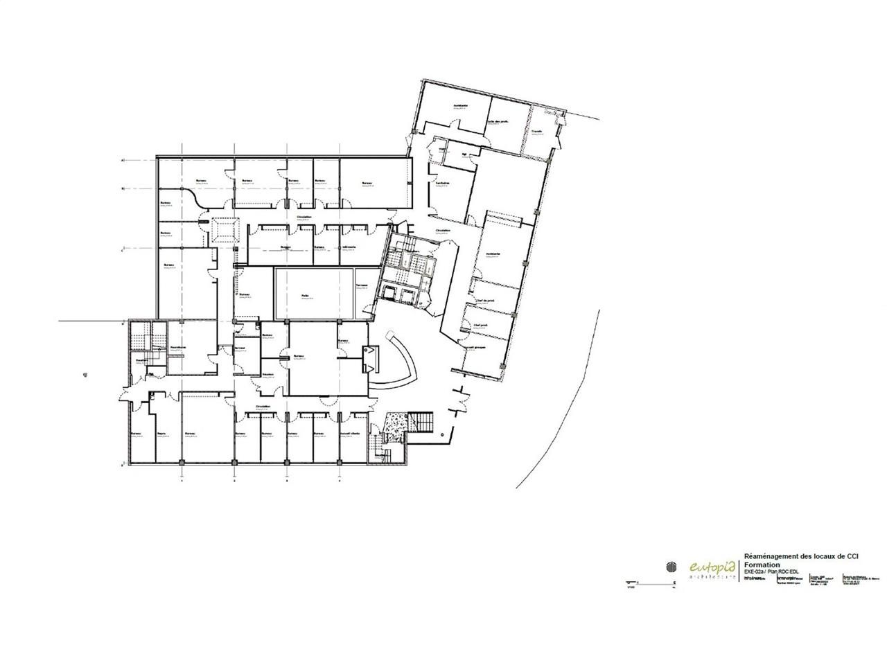
Cushman & Wakefield vous propose à la location des bureaux situés au rez-de-chaussée du 36 rue du Sergent Michel Berthet, dans le 9? arrondissement de Lyon. D'une surface de 972 m², ces locaux constituent une solution clé en main particulièrement adaptée à une activité d'enseignement ou de formation. Classés ERP de 3? catégorie de type R, ils répondent aux normes en vigueur pour l'accueil du public.
Les espaces sont déjà aménagés et cloisonnés, comprenant plusieurs salles de classe ainsi que des bureaux individuels, permettant une installation rapide sans travaux importants. L'agencement est fonctionnel et optimisé pour une organisation fluide des activités pédagogiques et administratives, tout en garantissant un bon confort d'utilisation au quotidien.
Situés à proximité immédiate du métro Gorge de Loup, ces bureaux bénéficient d'une excellente accessibilité et s'inscrivent dans un environnement dynamique, offrant un cadre de travail agréable et attractif pour les futurs occupants et leurs équipes.
Impôt Foncier : 20 €//m²/an
Régime Fiscal : T.V.A.
Dépôt de garantie : 3 mois de loyer HT/HC
Paiement Loyer : Trimestriel
Honoraires : 15 % HT du loyer annuel HT/HC à la charge du preneur.
Prestations :
Accessibilité:
Métro Gorge de Loup (métro ligne D) à 500 m
SNCF SNCF Gare de Vaise à 5 min en voiture, Gare Part-Dieu à 15 min environ
Accès routier Autoroute A6, tunnel de la Croix-Rousse, tunnel Fourvière
vélo'v VéloV à proximité
Les informations sur les risques auxquels ce bien est exposé sont disponibles sur le site Géorisques : www.georisques.gouv.fr
Cushman & Wakefield vous propose à la location des bureaux situés au rez-de-chaussée du 36 rue du Sergent Michel Berthet, dans le 9? arrondissement de Lyon. D'une surface de 972 m², ces locaux constituent une solution clé en main particulièrement adaptée à une activité d'enseignement ou de formation. Classés ERP de 3? catégorie de type R, ils répondent aux normes en vigueur pour l'accueil du public.
Les espaces sont déjà aménagés et cloisonnés, comprenant plusieurs salles de classe ainsi que des bureaux individuels, permettant une installation rapide sans travaux importants. L'agencement est fonctionnel et optimisé pour une organisation fluide des activités pédagogiques et administratives, tout en garantissant un bon confort d'utilisation au quotidien.
Situés à proximité immédiate du métro Gorge de Loup, ces bureaux bénéficient d'une excellente accessibilité et s'inscrivent dans un environnement dynamique, offrant un cadre de travail agréable et attractif pour les futurs occupants et leurs équipes.
| Étage | Type | Surfaces | Dispo | Loyer | Charges | Type de bailRév. annuelle |
|---|---|---|---|---|---|---|
| RdC | Bureaux | 972 | 215 HT/HC/m²/an | 57 HT/m²/an | 3-6-9 ansSur l'indice ILAT | |
| Parkings | 3-6-9 ansSur l'indice ILAT |
Impôt Foncier : 20 €//m²/an
Régime Fiscal : T.V.A.
Dépôt de garantie : 3 mois de loyer HT/HC
Paiement Loyer : Trimestriel
Honoraires : 15 % HT du loyer annuel HT/HC à la charge du preneur.
Prestations :
- Immeuble tertiaire, au coeur du pôle économique et universitaire de Gorge de Loup.
- Ce bâtiment est dédié à la formation avec la classification rare ERP 3.
- Bureaux cloisonnés et câblés
- Clé en main pour une école
- Sol PVC
- Plinthes périphériques
- Faux plafond
- Pavés LED
- Climatisation réversible
- Belle hauteur sous plafond
- Parkings : installation prochaine de 8 bornes de recharge électrique
- Surface RDC : 0 m²
Accessibilité:
Métro Gorge de Loup (métro ligne D) à 500 m
SNCF SNCF Gare de Vaise à 5 min en voiture, Gare Part-Dieu à 15 min environ
Accès routier Autoroute A6, tunnel de la Croix-Rousse, tunnel Fourvière
vélo'v VéloV à proximité
Les informations sur les risques auxquels ce bien est exposé sont disponibles sur le site Géorisques : www.georisques.gouv.fr
Voir plus
Afficher les consommations énergétiques
Localisation et transport aux alentours
Favoris
Exporter
Appeler
Contacter
Signaler cette annonce










