L’agence CBRE Lyon conseille et accompagne les chefs d’entreprise dans leurs projets immobiliers quels que soient leur taille et leur secteur d’activité. Spécialistes de la transaction de bureaux, ...
En savoir plus

1 698 m² divisible dès 345 m²
HT HC
Location bureau - 1698 m²
Lyon 7 (69007)
Dernière mise à jour : Il y a 7 mois
Au pied des transports en communs et au croisement des avenues Jean Jaures et Debourg, immeuble récent offrant une belle visibilité.
A l'entrée Sud de Lyon, le quartier de Gerland dispose d'un accès direct au Boulevard Périphérique lyonnais et aux autoroutes A6 / A7. Sa proximité avec le centre-ville, la gare TGV de Perrache et le centre des affaires de Lyon Part-Dieu, est un véritable atout pour les entreprises implantées.
Gerland, fort de ses 2 300 entreprises et ses 33 000 emplois, est devenu l'un des secteurs les plus dynamiques de l'agglomération lyonnaise.
De grandes entreprises font aujourd'hui le choix de s'y implanter et avec elles, le territoire affirme sa vocation tertiaire et académique, sans pour autant renier son passé industriel, fièrement porté par des acteurs historiques.
Impôt Foncier : 24 €/m²/an TOM incluse
Régime Fiscal : T.V.A.
Dépôt de garantie : 3 mois de loyer HT/HC
Paiement Loyer : trimestriel
Honoraires : 15% HT du loyer annuel HT/HC à la charge du preneur
Information sur le Bail :
Loyer si bureaux rénovés (mise en peinture + sols) : 210 euros/m²/an HT HC Loyer payable par trimestre d'avance Loyer parking : 1 600 euros/U/an HT HC Charges parkings : 75 euros/U/an HT
Prestations :
Accessibilité:
Autoroute Accès routiers : boulevard périphérique Sud reliant l'A6, l'A7 et l'A43
Metro Métro B arrêt Debourg à 1 min à pied
Tramway Tramway T1 et T6
Bus Bus TCL lignes 12E 17 et 32
SNCF TER : Gare Jean Macé à 2 stations de métro
Station Vélo'V
Les informations sur les risques auxquels ce bien est exposé sont disponibles sur le site Géorisques : www.georisques.gouv.fr
A l'entrée Sud de Lyon, le quartier de Gerland dispose d'un accès direct au Boulevard Périphérique lyonnais et aux autoroutes A6 / A7. Sa proximité avec le centre-ville, la gare TGV de Perrache et le centre des affaires de Lyon Part-Dieu, est un véritable atout pour les entreprises implantées.
Gerland, fort de ses 2 300 entreprises et ses 33 000 emplois, est devenu l'un des secteurs les plus dynamiques de l'agglomération lyonnaise.
De grandes entreprises font aujourd'hui le choix de s'y implanter et avec elles, le territoire affirme sa vocation tertiaire et académique, sans pour autant renier son passé industriel, fièrement porté par des acteurs historiques.
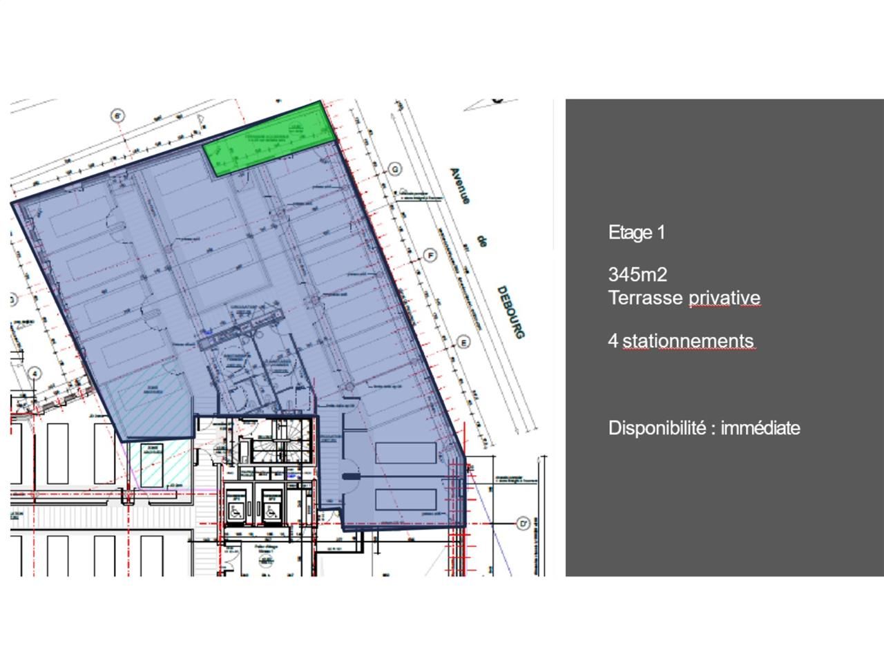
| Étage | Type | Surfaces | Dispo | Loyer | Charges | Type de bailRév. annuelle |
|---|---|---|---|---|---|---|
| 1 | Bureaux | 345 | Immédiate | 200 m²/an HT HC | 30,4 HT/m²/an | 3-6-9 ansIndice ILAT |
| 3 | Bureaux | 904 | Immédiate | 200 m²/an HT HC | 30,4 HT/m²/an | 3-6-9 ansIndice ILAT |
| 5 | Bureaux | 449 | 1 mois ap. acc. | 200 m²/an HT HC | 30,4 HT/m²/an | 3-6-9 ansIndice ILAT |
Impôt Foncier : 24 €/m²/an TOM incluse
Régime Fiscal : T.V.A.
Dépôt de garantie : 3 mois de loyer HT/HC
Paiement Loyer : trimestriel
Honoraires : 15% HT du loyer annuel HT/HC à la charge du preneur
Information sur le Bail :
Loyer si bureaux rénovés (mise en peinture + sols) : 210 euros/m²/an HT HC Loyer payable par trimestre d'avance Loyer parking : 1 600 euros/U/an HT HC Charges parkings : 75 euros/U/an HT
Prestations :
- Effectif base : 40 personnes par lot
- Faux plafond avec luminaires encastrés basse luminance, Led
- Hauteur libre sous dalle béton 2.70 m
- Hauteur libre dans couloir 2.50 m
- Faux-plancher technique
- Moquette
- Caisson de rafraîchissement (3m x 1.20 m)
- Courant fort
- Façade sud : peau métallique laquée
- Façade côté Jean Jaurès double peau y compris pare soleil
- Sanitaires en parties privatives
- Contrôle d'accès
- Ascenseurs
- Accès PMR
- Hall serviciel avec un frigo connecté.
- Lots en R+2 et R+5 cloisonnés et câblés
- 2 locaux 2 roues.
- 19 Stationnements - Possibilité de bornes électriques :
- 4 places pour le R+1
- 5 places pour le R+2
- 5 places pour le R+5
- R+1 sera rénové ((sol + peintures + décloisonnement à la demande) avec petite terrasse
- Possibilité de libération anticipée pour le R+5
Accessibilité:
Autoroute Accès routiers : boulevard périphérique Sud reliant l'A6, l'A7 et l'A43
Metro Métro B arrêt Debourg à 1 min à pied
Tramway Tramway T1 et T6
Bus Bus TCL lignes 12E 17 et 32
SNCF TER : Gare Jean Macé à 2 stations de métro
Station Vélo'V
Les informations sur les risques auxquels ce bien est exposé sont disponibles sur le site Géorisques : www.georisques.gouv.fr
10 Parkings int.nota parking ICI TODO
Voir plus
Afficher les consommations énergétiques
Favoris
Exporter
Appeler
Contacter
Signaler cette annonce
