Conseil en immobilier d'entreprise, Cushman & Wakefield est un acteur incontournable au rayonnement international. Cushman & Wakefield offre des solutions dans toutes les étapes que comporte un p ...
En savoir plus



616 m² divisible dès 308 m²
HT HC
IMMEUBLE ICARE - Location bureau - 616 m²
Lyon 7 (69007)
Publiée : Il y a 2 mois
Bureaux à louer Lyon 7ème!
Immeuble IMMEUBLE ICARE
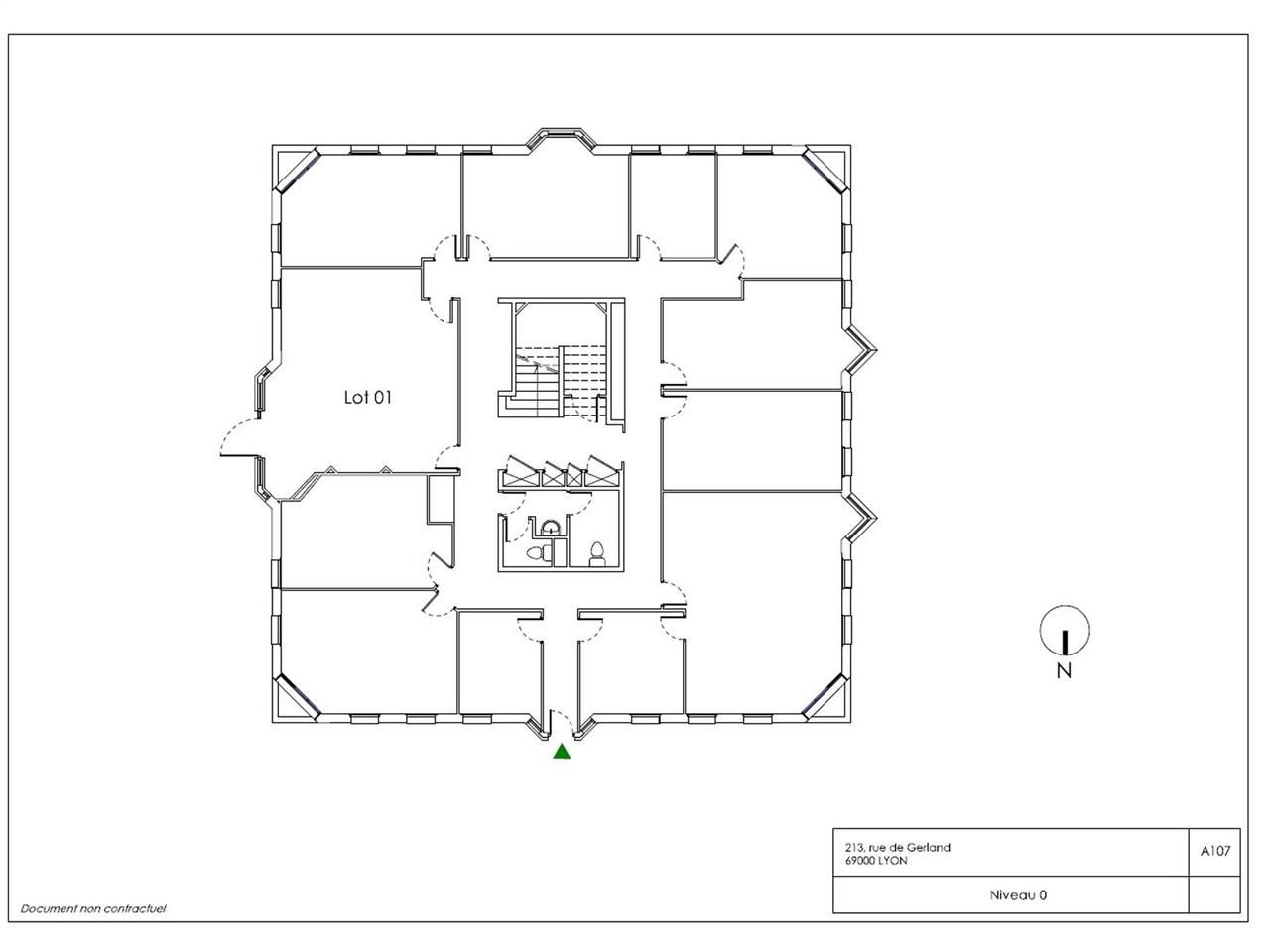
Cushman & Wakefield vous propose à la location un immeuble indépendant situé au coeur du parc tertiaire « Les Jardins d'Entreprises », rue de Gerland à Lyon 7ème. Ce bâtiment élevé sur un étage constitue une opportunité idéale pour l'implantation d'un siège social ou pour toute entreprise souhaitant bénéficier d'un environnement professionnel qualitatif et facilement accessible.
L'immeuble développe une surface totale d'environ 616 m² et offre la possibilité d'une division à partir de 308 m², permettant ainsi de s'adapter aux besoins de différentes structures. Les bureaux sont déjà cloisonnés et câblés, facilitant une installation rapide des futurs occupants et offrant une organisation fonctionnelle des espaces de travail.
Les plateaux se composent de plusieurs grandes salles lumineuses, bénéficiant d'un apport important de lumière naturelle qui contribue au confort des utilisateurs. L'ensemble propose un cadre de travail agréable et efficace, propice à l'activité quotidienne des équipes.
Le bâtiment dispose également de 14 emplacements de stationnement extérieurs, un atout appréciable pour les collaborateurs comme pour les visiteurs. La configuration de l'immeuble permet par ailleurs d'envisager un classement ERP selon le projet et l'activité envisagés. Cette offre représente une solution flexible et qualitative pour toute entreprise recherchant des bureaux indépendants dans le secteur dynamique de Gerland.
Impôt Foncier : 23 €//m²/an
Régime Fiscal : T.V.A.
Dépôt de garantie : 3 mois de loyer HT/HC
Paiement Loyer : Trimestriel
Honoraires : à la charge du preneur
Prestations :
Accessibilité:
Bus Lignes 60-64
Métro Stade de Gerland - Le Lou (ligne B)
Les informations sur les risques auxquels ce bien est exposé sont disponibles sur le site Géorisques : www.georisques.gouv.fr
Immeuble IMMEUBLE ICARE
Cushman & Wakefield vous propose à la location un immeuble indépendant situé au coeur du parc tertiaire « Les Jardins d'Entreprises », rue de Gerland à Lyon 7ème. Ce bâtiment élevé sur un étage constitue une opportunité idéale pour l'implantation d'un siège social ou pour toute entreprise souhaitant bénéficier d'un environnement professionnel qualitatif et facilement accessible.
L'immeuble développe une surface totale d'environ 616 m² et offre la possibilité d'une division à partir de 308 m², permettant ainsi de s'adapter aux besoins de différentes structures. Les bureaux sont déjà cloisonnés et câblés, facilitant une installation rapide des futurs occupants et offrant une organisation fonctionnelle des espaces de travail.
Les plateaux se composent de plusieurs grandes salles lumineuses, bénéficiant d'un apport important de lumière naturelle qui contribue au confort des utilisateurs. L'ensemble propose un cadre de travail agréable et efficace, propice à l'activité quotidienne des équipes.
Le bâtiment dispose également de 14 emplacements de stationnement extérieurs, un atout appréciable pour les collaborateurs comme pour les visiteurs. La configuration de l'immeuble permet par ailleurs d'envisager un classement ERP selon le projet et l'activité envisagés. Cette offre représente une solution flexible et qualitative pour toute entreprise recherchant des bureaux indépendants dans le secteur dynamique de Gerland.
| Étage | Type | Surfaces | Dispo | Loyer | Charges | Type de bailRév. annuelle |
|---|---|---|---|---|---|---|
| 1 | Bureaux | 308 | 150 HT/HC/m²/an | 47 HT/m²/an | 3-6-9 ansSur l'indice ILAT | |
| RdC | Bureaux | 308 | 150 HT/HC/m²/an | 47 HT/m²/an | 3-6-9 ansSur l'indice ILAT | |
| Parkings | 400 HT/HC/place/an | 3-6-9 ansSur l'indice ILAT |
Impôt Foncier : 23 €//m²/an
Régime Fiscal : T.V.A.
Dépôt de garantie : 3 mois de loyer HT/HC
Paiement Loyer : Trimestriel
Honoraires : à la charge du preneur
Prestations :
- Ascenseur
- Digicode
- Interphone
- Fibre optique
- Open-space
- Bureaux fermés
- Salles de réunion
- 7 emplacements de parkings par niveau
- Surface RDC : 308 m²
Accessibilité:
Bus Lignes 60-64
Métro Stade de Gerland - Le Lou (ligne B)
Les informations sur les risques auxquels ce bien est exposé sont disponibles sur le site Géorisques : www.georisques.gouv.fr
Voir plus
Afficher les consommations énergétiques
Localisation et transport aux alentours
Favoris
Exporter
Appeler
Contacter
Signaler cette annonce










