L’agence CBRE Lyon conseille et accompagne les chefs d’entreprise dans leurs projets immobiliers quels que soient leur taille et leur secteur d’activité. Spécialistes de la transaction de bureaux, ...
En savoir plus

15 834 m² divisible dès 172 m²
HT HC
Location bureau - 15834 m²
Lyon 7 (69007)
Dernière mise à jour : Il y a 6 mois
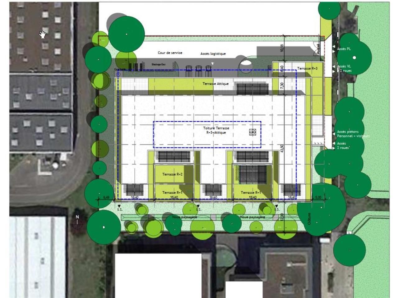
Immeuble BIOHUB
Inédit à Lyon.
Un projet mixant le Bureaux et le Laboratoires en plein coeur du Biodistric de Gerland Lyon 7. L'immeubles est divisible pour se rapprocher au plus près des demandes utilisateurs. Biohub ets un actif développant 15 800 m² et proposant toutes les prestations les plus moderne pour les bureaux mais aussi et surtout les possibilités techniques d'y installer des laboratoires et espaces de production GMP
Le Biodistrict :le centre nevralgique des sciences de la vie de Lyon Sur 100 hectares au Sud de Lyon Gerland, le quartier du Biodistrict concentre un nombre exceptionnel d'acteurs clés de la filière. Il est un lieu unique à leurs collaborations et une source de synergie.
Aujourd'hui surnommé « le petit Boston lyonnais », le Biodistrict a ainsi acquis une dimension internationale avec la présence des leaders de la santé au rayonnement mondial, tout en permettant à tout le continuum de la santé d'être couvert :
. La prévention, la recherche fondamentale, l'innovation, la production et la commercialisation, le soin,
. Le nouveau siège du CIRC,
. La future académie de l'OMS,
. Le nouveau siège de l'ANSES et de l'ANSM,
. L'IRT Bioaster,
. L'animation de réseaux : Lyonbiopôle, les Biotuesdays, évènements de réseautage tous les deux mois organisés par le Grand Lyon.
Régime Fiscal : T.V.A.
Dépôt de garantie : 3 mois de loyer HT/HC
Honoraires : 15% HT du loyer annuel HT/HC à la charge du preneur
Information sur le Bail :
Loyer GMP (espace de production): 190 eurosHT/HC/m² Loyer Bureaux: 230 eurosHT/HC/m² Loyer Bureaux avec terrasse: 240 eurosHT/HC/m²
Prestations :
Accessibilité:
Autoroute Accès rapide A6 et A7
Route Boulevard périphérique Laurent Bonnevay
Tramway T6 arrêt Challemel-Lacour à 600 m
Bus Bus TCL ligne 64
Metro Métro ligne B station Debourg
SNCF Gare TGV Lyon Part-Dieu à 17 mn
Les informations sur les risques auxquels ce bien est exposé sont disponibles sur le site Géorisques : www.georisques.gouv.fr
Inédit à Lyon.
Un projet mixant le Bureaux et le Laboratoires en plein coeur du Biodistric de Gerland Lyon 7. L'immeubles est divisible pour se rapprocher au plus près des demandes utilisateurs. Biohub ets un actif développant 15 800 m² et proposant toutes les prestations les plus moderne pour les bureaux mais aussi et surtout les possibilités techniques d'y installer des laboratoires et espaces de production GMP
Le Biodistrict :le centre nevralgique des sciences de la vie de Lyon Sur 100 hectares au Sud de Lyon Gerland, le quartier du Biodistrict concentre un nombre exceptionnel d'acteurs clés de la filière. Il est un lieu unique à leurs collaborations et une source de synergie.
Aujourd'hui surnommé « le petit Boston lyonnais », le Biodistrict a ainsi acquis une dimension internationale avec la présence des leaders de la santé au rayonnement mondial, tout en permettant à tout le continuum de la santé d'être couvert :
. La prévention, la recherche fondamentale, l'innovation, la production et la commercialisation, le soin,
. Le nouveau siège du CIRC,
. La future académie de l'OMS,
. Le nouveau siège de l'ANSES et de l'ANSM,
. L'IRT Bioaster,
. L'animation de réseaux : Lyonbiopôle, les Biotuesdays, évènements de réseautage tous les deux mois organisés par le Grand Lyon.
| Étage | Type | Surfaces | Dispo | Loyer | Charges | Type de bailRév. annuelle |
|---|---|---|---|---|---|---|
| SS | Réserve | 735 | 24 mois ap. déb. trx | 70 m²/an HT HC | 3-6-9 ansIndice ILAT | |
| RDC | Bureaux | 1264 | 24 mois ap. déb. trx | 190 m²/an HT HC | 3-6-9 ansIndice ILAT | |
| RDC | Bureaux | 1045 | 24 mois ap. déb. trx | 190 m²/an HT HC | 3-6-9 ansIndice ILAT | |
| RDC | Bureaux | 1008 | 24 mois ap. déb. trx | 190 m²/an HT HC | 3-6-9 ansIndice ILAT | |
| RDC | Bureaux | 1003 | 24 mois ap. déb. trx | 190 m²/an HT HC | 3-6-9 ansIndice ILAT | |
| 1 | Bureaux | 1271 | 24 mois ap. déb. trx | 190 m²/an HT HC | 3-6-9 ansIndice ILAT | |
| 1 | Bureaux | 1226 | 24 mois ap. déb. trx | 190 m²/an HT HC | 3-6-9 ansIndice ILAT | |
| 1 | Bureaux | 554 | 24 mois ap. déb. trx | 230 m²/an HT HC | 3-6-9 ansIndice ILAT | |
| 1 | Bureaux | 432 | 24 mois ap. déb. trx | 230 m²/an HT HC | 3-6-9 ansIndice ILAT | |
| 1 | Bureaux | 295 | 24 mois ap. déb. trx | 230 m²/an HT HC | 3-6-9 ansIndice ILAT | |
| 1 | Réserve | 31 | 24 mois ap. déb. trx | 70 m²/an HT HC | 3-6-9 ansIndice ILAT | |
| 2 | Bureaux | 554 | 24 mois ap. déb. trx | 230 m²/an HT HC | 3-6-9 ansIndice ILAT | |
| 2 | Bureaux | 544 | 24 mois ap. déb. trx | 230 m²/an HT HC | 3-6-9 ansIndice ILAT | |
| 2 | Bureaux | 433 | 24 mois ap. déb. trx | 230 m²/an HT HC | 3-6-9 ansIndice ILAT | |
| 2 | Bureaux | 432 | 24 mois ap. déb. trx | 230 m²/an HT HC | 3-6-9 ansIndice ILAT | |
| 2 | Bureaux | 306 | 24 mois ap. déb. trx | 230 m²/an HT HC | 3-6-9 ansIndice ILAT | |
| 2 | Bureaux | 299 | 24 mois ap. déb. trx | 230 m²/an HT HC | 3-6-9 ansIndice ILAT | |
| 2 | Bureaux | 297 | 24 mois ap. déb. trx | 230 m²/an HT HC | 3-6-9 ansIndice ILAT | |
| 2 | Bureaux | 295 | 24 mois ap. déb. trx | 230 m²/an HT HC | 3-6-9 ansIndice ILAT | |
| 2 | Bureaux | 295 | 24 mois ap. déb. trx | 230 m²/an HT HC | 3-6-9 ansIndice ILAT | |
| 3 | Bureaux | 541 | 24 mois ap. déb. trx | 230 m²/an HT HC | 3-6-9 ansIndice ILAT | |
| 3 | Bureaux | 433 | 24 mois ap. déb. trx | 230 m²/an HT HC | 3-6-9 ansIndice ILAT | |
| 3 | Bureaux | 432 | 24 mois ap. déb. trx | 230 m²/an HT HC | 3-6-9 ansIndice ILAT | |
| 3 | Bureaux | 306 | 24 mois ap. déb. trx | 230 m²/an HT HC | 3-6-9 ansIndice ILAT | |
| 3 | Bureaux | 299 | 24 mois ap. déb. trx | 230 m²/an HT HC | 3-6-9 ansIndice ILAT | |
| 3 | Bureaux | 297 | 24 mois ap. déb. trx | 230 m²/an HT HC | 3-6-9 ansIndice ILAT | |
| 3 | Bureaux | 297 | 24 mois ap. déb. trx | 230 m²/an HT HC | 3-6-9 ansIndice ILAT | |
| 3 | Bureaux | 295 | 24 mois ap. déb. trx | 230 m²/an HT HC | 3-6-9 ansIndice ILAT | |
| 3 | Bureaux | 295 | 24 mois ap. déb. trx | 230 m²/an HT HC | 3-6-9 ansIndice ILAT | |
| 4 | Bureaux | 303 | 24 mois ap. déb. trx | 240 m²/an HT HC | 3-6-9 ansIndice ILAT | |
| 4 | Bureaux | 267 | 24 mois ap. déb. trx | 240 m²/an HT HC | 3-6-9 ansIndice ILAT | |
| 4 | Bureaux | 172 | 24 mois ap. déb. trx | 240 m²/an HT HC | 3-6-9 ansIndice ILAT | |
| 4 | Bureaux | 172 | 24 mois ap. déb. trx | 240 m²/an HT HC | 3-6-9 ansIndice ILAT | |
| 4 | Bureaux | 172 | 24 mois ap. déb. trx | 240 m²/an HT HC | 3-6-9 ansIndice ILAT |
Régime Fiscal : T.V.A.
Dépôt de garantie : 3 mois de loyer HT/HC
Honoraires : 15% HT du loyer annuel HT/HC à la charge du preneur
Information sur le Bail :
Loyer GMP (espace de production): 190 eurosHT/HC/m² Loyer Bureaux: 230 eurosHT/HC/m² Loyer Bureaux avec terrasse: 240 eurosHT/HC/m²
Prestations :
- Stockage en sous-sol (division sur demande)
- 6 Espaces GMP (Espace de production) de 600 m² à 1 000 m² en RDC et R+1 livrés brut.
- Labos en R+1
- Hall d'accueil en R+1
- Plateaux / bureaux pré aménagés et à aménager en R+2 et R+3
- Labos type L1 et L2 en R+2 et R+3
- R+4:
- espaces libres
- bureaux et salles de réunion
- restauration
- fitness
- Structure composée de poteaux, poutres et dalles en béton armé.
- Façades à ossature bois, isolées et revêtues d'un parement minéral.
- Menuiseries extérieures aluminium avec double vitrage.
- Espace communs prévus à chaque niveau (sanitaires, salles de réunions, espaces de convivialité...)
- Parkings en sous-sol (véhicules, vélos, motos) : 97 places
- Regroupement possible de lots sur demande
- Divisibilité: nous consulter
- Surface RDC : 4320 m²
Accessibilité:
Autoroute Accès rapide A6 et A7
Route Boulevard périphérique Laurent Bonnevay
Tramway T6 arrêt Challemel-Lacour à 600 m
Bus Bus TCL ligne 64
Metro Métro ligne B station Debourg
SNCF Gare TGV Lyon Part-Dieu à 17 mn
Les informations sur les risques auxquels ce bien est exposé sont disponibles sur le site Géorisques : www.georisques.gouv.fr
Voir plus
Afficher les consommations énergétiques
Localisation et transport aux alentours
Favoris
Exporter
Appeler
Contacter
Signaler cette annonce
