Besoin d'un conseil en immobilier ? Nous sommes une équipe dédiée à 100% à nos clients utilisateurs avec des services variés (stratégie immobilière, recherche immobilière, renégociation de bail, dé ...
En savoir plus

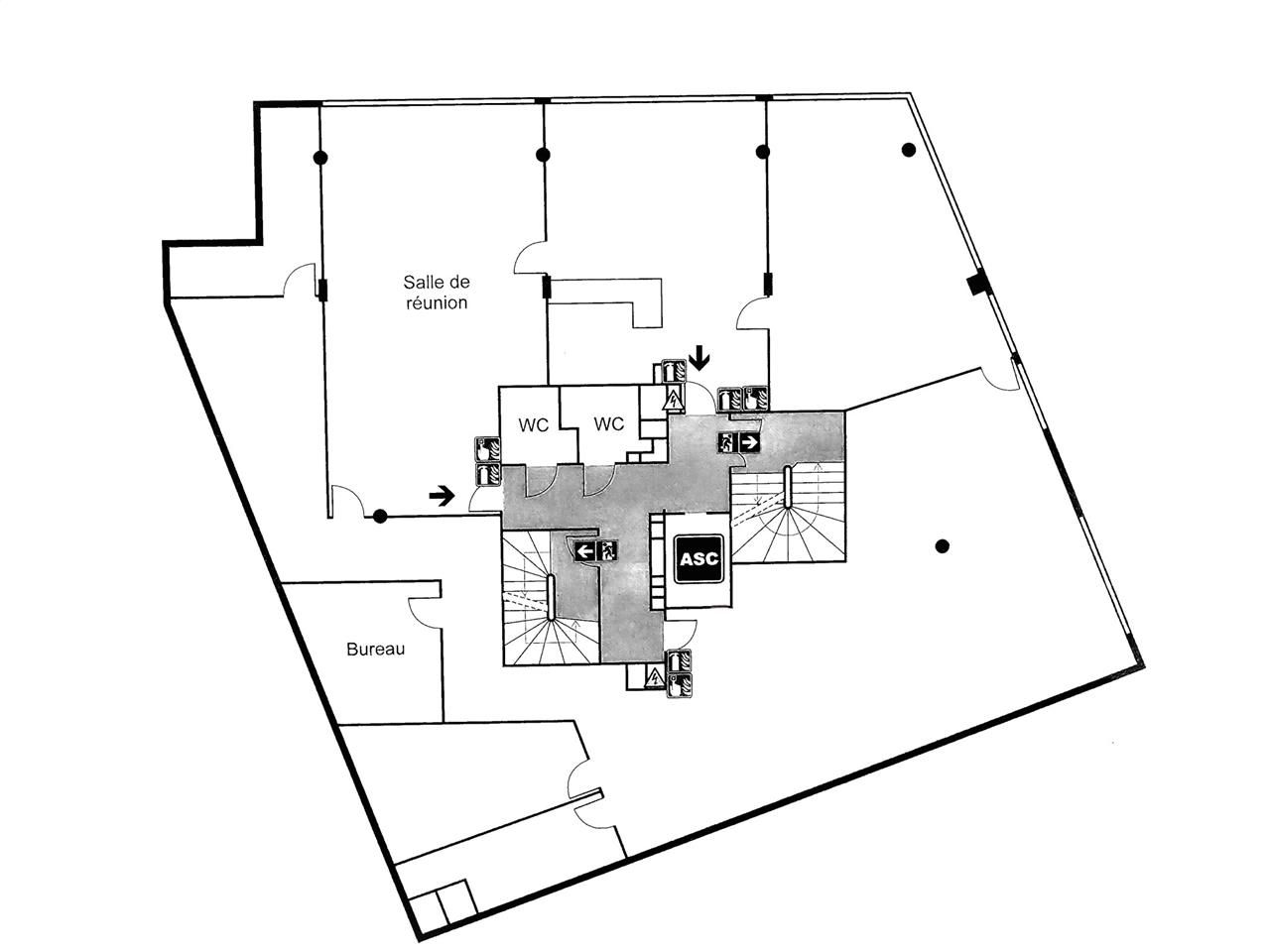
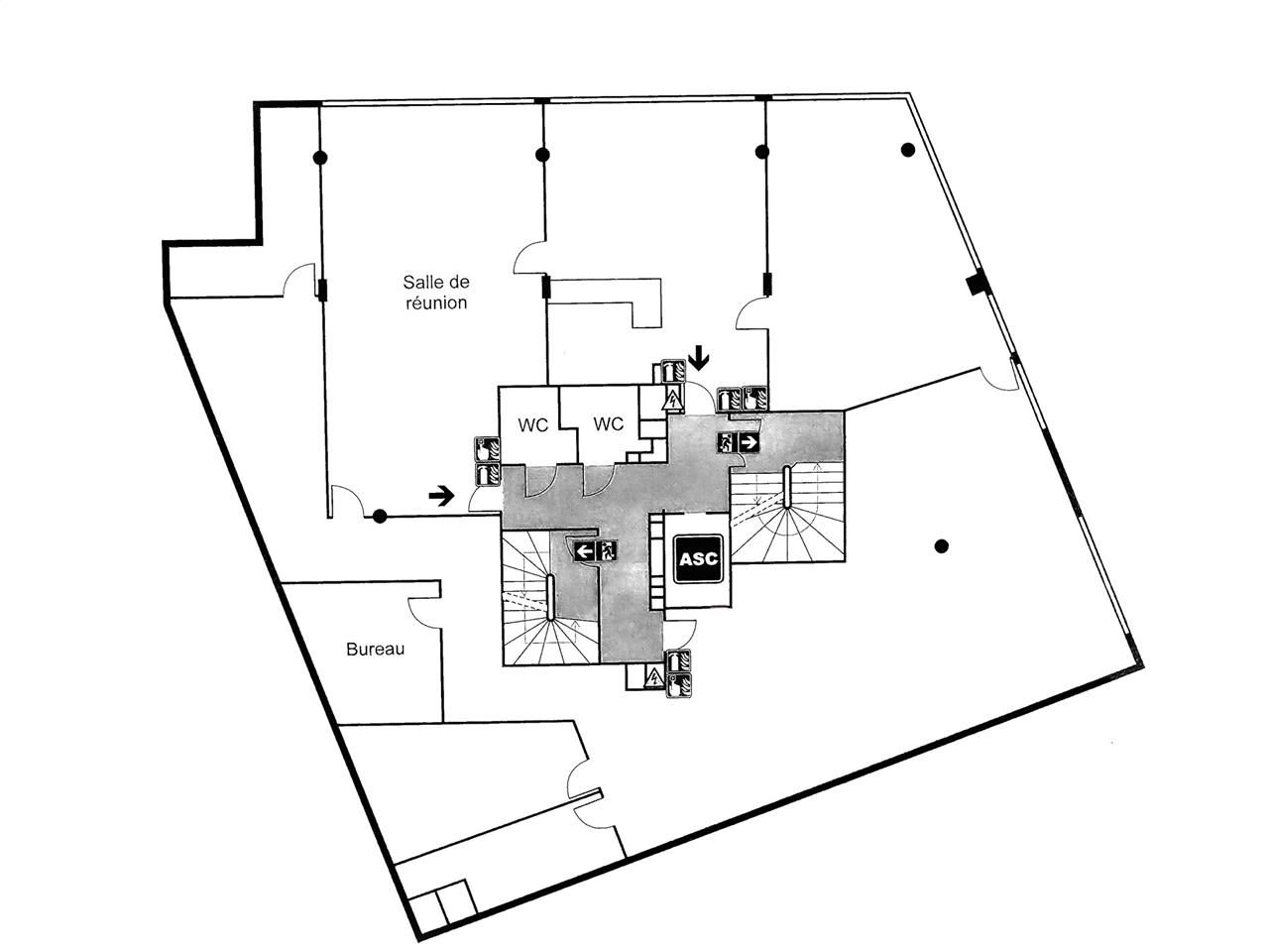
456 m² divisible dès 110 m²
HT HC
Location bureau - 456 m²
Lyon 7 (69007)
Dernière mise à jour : Il y a 4 mois
A LOUER - 346 m² et 110 m² de bureaux à Lyon 7ème
Savills Lyon vous propose à la location deux surfaces de bureaux de 346 m² et 110 m², au sein d'un immeuble tertiaire situé boulevard Yves Farge.
Secteur dynamique, à mi-chemin entre les quais du Rhône et le pôle multimodal Jean Macé, offrant une excellente accessibilité en transports en commun, vélo ou voiture.
Les espaces, lumineux et fonctionnels, profitent d'une grande façade vitrée. Stationnement disponible en sous-sol.
Impôt Foncier : 23 €/
Régime Fiscal : T.V.A.
Dépôt de garantie : 3 mois de loyer HT HC
Honoraires : 15 % HT du loyer annuel HT HC à la charge du preneur
Prestations :
Accessibilité:
Tramway Tram T2 "Centre Berthelot - Sciences Po Lyon" à 350m
SNCF Gare Jean Macé à 10 min à pied
Métro Métro ligne B "Jean Macé" à 10 min à pied
Bus Nadaud - Vitriolerie (Ligne 34)
Les informations sur les risques auxquels ce bien est exposé sont disponibles sur le site Géorisques : www.georisques.gouv.fr
Savills Lyon vous propose à la location deux surfaces de bureaux de 346 m² et 110 m², au sein d'un immeuble tertiaire situé boulevard Yves Farge.
Secteur dynamique, à mi-chemin entre les quais du Rhône et le pôle multimodal Jean Macé, offrant une excellente accessibilité en transports en commun, vélo ou voiture.
Les espaces, lumineux et fonctionnels, profitent d'une grande façade vitrée. Stationnement disponible en sous-sol.
| Étage | Type | Surfaces | Dispo | Loyer | Charges | Type de bailRév. annuelle |
|---|---|---|---|---|---|---|
| 2 | Bureaux | 110 | Immédiate | 170 m²/an/HT-HC | 40 m²/an HT | 3-6-9 ansILAT Indice des Loyers des Activités Tertiaires |
| 1 | Bureaux | 346 | Immédiate | 170 m²/an/HT-HC | 40 m²/an HT | 3-6-9 ansILAT Indice des Loyers des Activités Tertiaires |
| SS | Parkings | Immédiate | 1000 place/an/HT-HC | 3-6-9 ansILAT Indice des Loyers des Activités Tertiaires |
Impôt Foncier : 23 €/
Régime Fiscal : T.V.A.
Dépôt de garantie : 3 mois de loyer HT HC
Honoraires : 15 % HT du loyer annuel HT HC à la charge du preneur
Prestations :
- En façade du boulevard Yves Farge, cet immeuble de bureaux bénéficie d'un emplacement stratégique avec une visibilité directe.
- A proximité immédiate du pôle multimodal de Jean Macé (métro, tramway, train et bus), ce positionnement privilégié en fait une adresse idéale pour les entreprises en quête de visibilité et de connexions rapides au coeur de la métropole lyonnaise.
- Accès sécurisé
- Ascenseur
- Faux plafond
- Cloisons amovibles vitrées toute hauteur
- Coin kitchenette
- Plinthes périphériques
- Baie de brassage
- Climatisation réversible
- R+2 : accès terrasse commune
- Stationnement en sous-sol
Accessibilité:
Tramway Tram T2 "Centre Berthelot - Sciences Po Lyon" à 350m
SNCF Gare Jean Macé à 10 min à pied
Métro Métro ligne B "Jean Macé" à 10 min à pied
Bus Nadaud - Vitriolerie (Ligne 34)
Les informations sur les risques auxquels ce bien est exposé sont disponibles sur le site Géorisques : www.georisques.gouv.fr
Voir plus
Afficher les consommations énergétiques
Localisation et transport aux alentours
- Centre Berthelot341m (5min à pied)2
Favoris
Exporter
Appeler
Contacter
Signaler cette annonce










