Conseil en immobilier d'entreprise, Cushman & Wakefield est un acteur incontournable au rayonnement international. Cushman & Wakefield offre des solutions dans toutes les étapes que comporte un p ...
En savoir plus





365 m²
HT HC
GRAND HÔTEL DIEU - Location bureau - 365 m²
Lyon 2 (69002)
Dernière mise à jour : Hier
Bureaux à louer Presqu'ile!
Immeuble GRAND HÔTEL DIEU
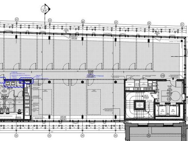
Cushman & Wakefield vous propose une surface de bureaux « clés en main » à louer, située au sein du Grand Hôtel-Dieu, lieu emblématique du centre-ville de Lyon, dans le 2? arrondissement. Ce site prestigieux, entièrement réhabilité, allie élégamment architecture remarquable et prestations contemporaines, offrant un environnement de travail unique, au coeur d'un quartier dynamique. Vous bénéficiez d'un emplacement stratégique, à proximité immédiate des transports en commun (métro, tramway, bus), des commerces, restaurants et services du quotidien.
Les bureaux disponibles se trouvent au premier étage et développent une surface d'environ 365 m². Ils se composent d'un espace d'accueil, de plusieurs open spaces spacieux et lumineux, d'une grande salle de réunion ainsi que de deux salles de réunion plus petites, idéales pour des rendez-vous en comité réduit. Une cuisine équipée vient compléter cet ensemble fonctionnel. L'aménagement intérieur est de grande qualité, avec un cloisonnement soigné.
Des places de stationnement en sous-sol sont également disponibles, un atout non négligeable dans ce secteur très recherché. Une opportunité rare à saisir dans l'un des lieux les plus prestigieux de Lyon. Contactez-nous pour plus d'informations ou pour organiser une visite.
Impôt Foncier : 24,42 €//m²/an
Régime Fiscal : T.V.A.
Dépôt de garantie : 3 mois de loyer HT/HC
Paiement Loyer : Trimestriel
Honoraires : 15 % HT du loyer annuel HT/HC à la charge du preneur.
Prestations :
Accessibilité:
Tram Liberté (T1)
Métro Bellecour (Métro B et A)
Bus Lignes C3-C5-C9-C10-C12-C13
Les informations sur les risques auxquels ce bien est exposé sont disponibles sur le site Géorisques : www.georisques.gouv.fr
Immeuble GRAND HÔTEL DIEU
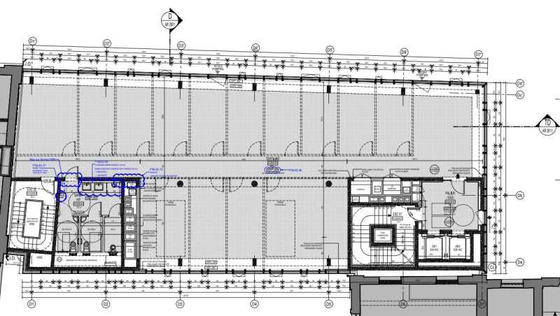
Cushman & Wakefield vous propose une surface de bureaux « clés en main » à louer, située au sein du Grand Hôtel-Dieu, lieu emblématique du centre-ville de Lyon, dans le 2? arrondissement. Ce site prestigieux, entièrement réhabilité, allie élégamment architecture remarquable et prestations contemporaines, offrant un environnement de travail unique, au coeur d'un quartier dynamique. Vous bénéficiez d'un emplacement stratégique, à proximité immédiate des transports en commun (métro, tramway, bus), des commerces, restaurants et services du quotidien.
Les bureaux disponibles se trouvent au premier étage et développent une surface d'environ 365 m². Ils se composent d'un espace d'accueil, de plusieurs open spaces spacieux et lumineux, d'une grande salle de réunion ainsi que de deux salles de réunion plus petites, idéales pour des rendez-vous en comité réduit. Une cuisine équipée vient compléter cet ensemble fonctionnel. L'aménagement intérieur est de grande qualité, avec un cloisonnement soigné.
Des places de stationnement en sous-sol sont également disponibles, un atout non négligeable dans ce secteur très recherché. Une opportunité rare à saisir dans l'un des lieux les plus prestigieux de Lyon. Contactez-nous pour plus d'informations ou pour organiser une visite.
| Étage | Type | Surfaces | Dispo | Loyer | Charges | Type de bailRév. annuelle |
|---|---|---|---|---|---|---|
| R+1 | Bureaux | 365 | Immédiate | 350 HT/HC/m²/an | 68,01 HT/m²/an | 3-6-9 ansSur l'indice ILAT |
| Parkings | Immédiate | 1950 HT/HC/place/an | 3-6-9 ansSur l'indice ILAT |
Impôt Foncier : 24,42 €//m²/an
Régime Fiscal : T.V.A.
Dépôt de garantie : 3 mois de loyer HT/HC
Paiement Loyer : Trimestriel
Honoraires : 15 % HT du loyer annuel HT/HC à la charge du preneur.
Prestations :
- Bureaux cloisonnés et câblés
- 1 cuisine
- Plsuieurs open space
- 1 grande salle de réunion
- 2 petites salles de réunion
- Sol moquette
- Faux plancher technique
- Climatisation réversible
- Sanitaires privatifs
Accessibilité:
Tram Liberté (T1)
Métro Bellecour (Métro B et A)
Bus Lignes C3-C5-C9-C10-C12-C13
Les informations sur les risques auxquels ce bien est exposé sont disponibles sur le site Géorisques : www.georisques.gouv.fr
Voir plus
Afficher les consommations énergétiques
Localisation et transport aux alentours
Favoris
Exporter
Appeler
Contacter
Signaler cette annonce










