Nous sommes Immprove, une grande équipe de plus de 200 experts en immobilier d’entreprise, implantés localement avec plus de 20 agences sur tout le territoire.Depuis 2009, notre proximité, notre ét ...
En savoir plus

130 m²
HT HC
Location bureau - 130 m²
Lille (59000)
Dernière mise à jour : Il y a 10 jours
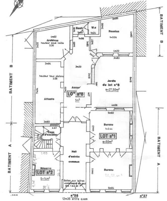
REZ-DE-CHAUSSEE RENOVE VIEUX LILLE
Immprove vous propose à 2 pas de la Citadelle et à proximité immédiate des transports en commun (gare et lignes de bus), ce magnifique espace de bureaux entièrement rénové, alliant confort moderne et charme de l'ancien. D'une surface de 130 m², ce bien rare se distingue par ses moulures, ses cheminées d'époque et ses hauts plafonds qui offrent un cachet unique. Vous bénéficierez également d'un jardin privatif de 30 m², d'une douche et d'une kitchenette. Disponibilité immédiate.
Impôt Foncier : 21,7 €/HT/m²/an
Régime Fiscal : TVA
Dépôt de garantie : 3 mois de loyer HT HC
Honoraires : 15 % HT du loyer annuel HT à la charge du Preneur
Prestations :
Accessibilité:
SNCF Gare Lille Flandres à 15 minutes
Métro Station Rihour à 1 km
Bus Arrêt Colpin à 50 mètres
Les informations sur les risques auxquels ce bien est exposé sont disponibles sur le site Géorisques : www.georisques.gouv.fr
Immprove vous propose à 2 pas de la Citadelle et à proximité immédiate des transports en commun (gare et lignes de bus), ce magnifique espace de bureaux entièrement rénové, alliant confort moderne et charme de l'ancien. D'une surface de 130 m², ce bien rare se distingue par ses moulures, ses cheminées d'époque et ses hauts plafonds qui offrent un cachet unique. Vous bénéficierez également d'un jardin privatif de 30 m², d'une douche et d'une kitchenette. Disponibilité immédiate.
| Étage | Type | Surfaces | Dispo | Loyer | Charges | Type de bailRév. annuelle |
|---|---|---|---|---|---|---|
| RDC | Bureaux | 130 | Immédiate | 300 m²/an HT HC | 4,46 m²/an HT | Bail Commercial 3-6-9 ansIndice ILAT |
Impôt Foncier : 21,7 €/HT/m²/an
Régime Fiscal : TVA
Dépôt de garantie : 3 mois de loyer HT HC
Honoraires : 15 % HT du loyer annuel HT à la charge du Preneur
Prestations :
- ERP : Catégorie non définie
- Site clos
- Hôtel particulier
- Accès PMR
- Interphone
- Accès sécurisé par badge
- SAS d'entrée
- Chauffage gaz
- Fibre optique
- Accueil
- Bureaux cloisonnés
- Salle de réunion
- Espace détente
- Cuisine
- Sanitaires
- Possibilité de normes E.R.P.
- Terrasse privée
- Douche
- Locaux lumineux
- Parquet - Carrelage
- Plinthes périphériques
- Câblage informatique et téléphonique
- Surface RDC : 130 m²
Accessibilité:
SNCF Gare Lille Flandres à 15 minutes
Métro Station Rihour à 1 km
Bus Arrêt Colpin à 50 mètres
Les informations sur les risques auxquels ce bien est exposé sont disponibles sur le site Géorisques : www.georisques.gouv.fr
Voir plus
Afficher les consommations énergétiques
Localisation et transport aux alentours
Favoris
Exporter
Appeler
Contacter
Signaler cette annonce
