Besoin d'un conseil en immobilier ? Nous sommes une équipe dédiée à 100% à nos clients utilisateurs avec des services variés (stratégie immobilière, recherche immobilière, renégociation de bail, dé ...
En savoir plus

4 193 m² divisible dès 231 m²
HT HC
EVEREST 3 - Location bureau - 4193 m²
Genas (69740)
Dernière mise à jour : Il y a 3 mois
Everest 4 - Bureaux neufs au coeur de Genas
Immeuble EVEREST 3
Savills vous propose à la location différentes surfaces de bureaux au sein du parc Everest 4 de Genas. Le parc bénéficie d'une offre de services complète. Les bureaux peuvent être livrés aménagés selon vos besoins spécifiques, afin de s'adapter pleinement à votre organisation. Stationnements disponibles en sous-sol et en extérieur.
Régime Fiscal : T.V.A.
Dépôt de garantie : 3 mois de loyer HT
Honoraires : 15 % HT du loyer annuel HT HC à la charge du preneur
Information sur le Bail :
Loyer cloisonné câblé : 150 euros/HT/m² Parking intérieur : 450 euros/U/an HT (+100 euros/U pour une place avec borne de recharge)
Prestations :
Accessibilité:
Aéroport A 30 min de l'Aéroport Saint Exupéry
Autoroute A 43 (Entrée Genas, Chassieu - Centre, Les Sept Chemins), A 43 (Sortie Genas, Chassieu - Centre, Les Sept Chemins), A 46 (Entrée), A 46 (Sortie A 43)
Bus Bus Zi5 et 48 au pied de l'immeuble
Les informations sur les risques auxquels ce bien est exposé sont disponibles sur le site Géorisques : www.georisques.gouv.fr
Immeuble EVEREST 3
Savills vous propose à la location différentes surfaces de bureaux au sein du parc Everest 4 de Genas. Le parc bénéficie d'une offre de services complète. Les bureaux peuvent être livrés aménagés selon vos besoins spécifiques, afin de s'adapter pleinement à votre organisation. Stationnements disponibles en sous-sol et en extérieur.
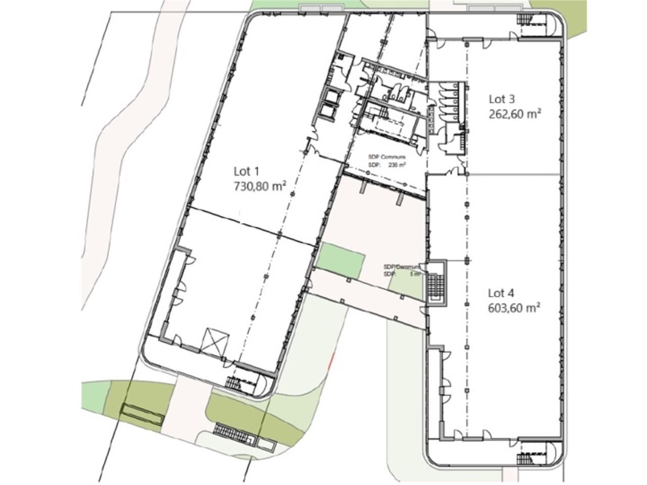
| Étage | Type | Surfaces | Dispo | Loyer | Charges | Type de bailRév. annuelle |
|---|---|---|---|---|---|---|
| 3 | Bureaux | 421,8 | Immédiate | 140 HT/m²/an | 27 HT/m²/an | 3-6-9 ansILAT Indice des Loyers des Activités Tertiaires |
| 1 | Bureaux | 616,7 | Immédiate | 140 HT/m²/an | 27 HT/m²/an | 3-6-9 ansILAT Indice des Loyers des Activités Tertiaires |
| 1 | Bureaux | 510,9 | Immédiate | 140 HT/m²/an | 27 HT/m²/an | 3-6-9 ansILAT Indice des Loyers des Activités Tertiaires |
| 1 | Bureaux | 317,3 | Immédiate | 140 HT/m²/an | 27 HT/m²/an | 3-6-9 ansILAT Indice des Loyers des Activités Tertiaires |
| 1 | Bureaux | 266,2 | Immédiate | 140 HT/m²/an | 27 HT/m²/an | 3-6-9 ansILAT Indice des Loyers des Activités Tertiaires |
| RDC | Bureaux | 730,8 | Immédiate | 140 HT/m²/an | 27 HT/m²/an | 3-6-9 ansILAT Indice des Loyers des Activités Tertiaires |
| RDC | Bureaux | 603,6 | Immédiate | 140 HT/m²/an | 27 HT/m²/an | 3-6-9 ansILAT Indice des Loyers des Activités Tertiaires |
| RDC | Bureaux | 262,6 | Immédiate | 140 HT/m²/an | 27 HT/m²/an | 3-6-9 ansILAT Indice des Loyers des Activités Tertiaires |
| 1 | Bureaux | 231,4 | Immédiate | 140 HT/m²/an | 27 HT/m²/an | 3-6-9 ansILAT Indice des Loyers des Activités Tertiaires |
| 1 | Bureaux | 231,4 | Immédiate | 140 HT/m²/an | 27 HT/m²/an | 3-6-9 ansILAT Indice des Loyers des Activités Tertiaires |
| Parkings | Immédiate | 250 HT/U/an | 3-6-9 ansILAT Indice des Loyers des Activités Tertiaires | |||
| Parkings | Immédiate | 450 HT/U/an | 3-6-9 ansILAT Indice des Loyers des Activités Tertiaires |
Régime Fiscal : T.V.A.
Dépôt de garantie : 3 mois de loyer HT
Honoraires : 15 % HT du loyer annuel HT HC à la charge du preneur
Information sur le Bail :
Loyer cloisonné câblé : 150 euros/HT/m² Parking intérieur : 450 euros/U/an HT (+100 euros/U pour une place avec borne de recharge)
Prestations :
- Le Parc Everest, programme neuf de bureaux et locaux d'activité, alliant cadre de travail verdoyant et prestations de qualité. Ce bien se situe sur la commune de Genas en façade de la Rocade Est (A46). Le parc offre un pôle de services à l'ensemble des entreprises : crèche, restaurant, centre d'affaires, salle de sport...
- Label BREEAM Very Good
- Centrale solaire sur site
- Bureaux livrés soit en plateau nu, soit câblés et cloisonnés
- Faux plancher technique
- Eclairage LED
- Chauffage rafraîchissement 3 tubes réversibles par PAC
- Terrasses à chaque étage
- RIE
- Crèche
- Centre d'affaires
- Bureaux individuels
- Salles de Réunions
- Espace séminaires
- Auditorium
- Ratio parking : 1/25 m² environ
- Surface RDC : 1597 m²
Accessibilité:
Aéroport A 30 min de l'Aéroport Saint Exupéry
Autoroute A 43 (Entrée Genas, Chassieu - Centre, Les Sept Chemins), A 43 (Sortie Genas, Chassieu - Centre, Les Sept Chemins), A 46 (Entrée), A 46 (Sortie A 43)
Bus Bus Zi5 et 48 au pied de l'immeuble
Les informations sur les risques auxquels ce bien est exposé sont disponibles sur le site Géorisques : www.georisques.gouv.fr
Voir plus
Afficher les consommations énergétiques
Localisation et transport aux alentours
Favoris
Exporter
Appeler
Contacter
Signaler cette annonce










