Conseil en immobilier d'entreprise, Cushman & Wakefield est un acteur incontournable au rayonnement international. Cushman & Wakefield offre des solutions dans toutes les étapes que comporte un p ...
En savoir plus



2 969 m² divisible dès 815 m²
HT HC
VENTOUX - Location activité/entrepôt - 2969 m²
Courcouronnes (91080)
Dernière mise à jour : Il y a 7 mois
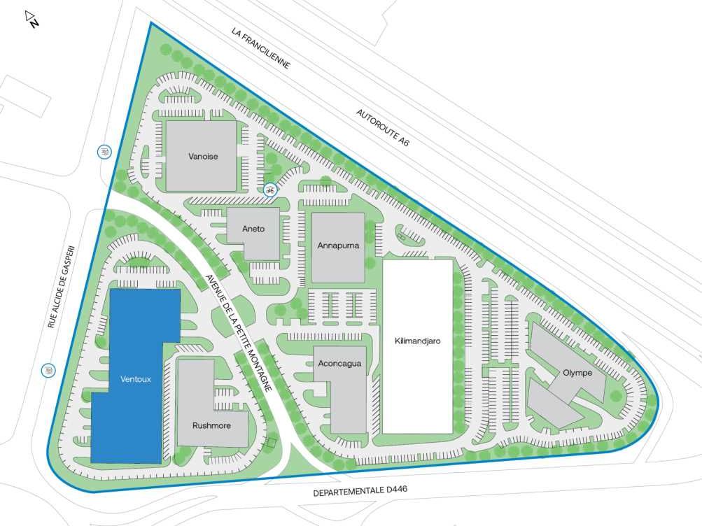
MILEWAY PARKS - VENTOUX
Immeuble VENTOUX
À louer, lots mixtes, bureaux et activité à Evry-Courcouronnes.
Venez découvrir le Mileway Parks, situé dans la zone d'activités de la Petite Montagne Nord à Évry-Courcouronnes. Ce parc dynamique est composé de sept immeubles modernes, totalisant 34 500 m² dédiés à des activités mixtes et des bureaux. Nous proposons aujourd'hui, au sein de l'immeuble VENTOUX, 3 416 m² d'espaces divisibles à partir de 428 m², offrant ainsi une grande flexibilité pour votre entreprise.
Le site bénéficie d'une excellente accessibilité, à seulement 30 minutes de Paris par l'A6 et 50 minutes de la Gare de Lyon via le RER D. Il est également desservi par plusieurs lignes de bus et désormais par le tramway ligne 12, reliant Evry-Courcouronnes à Massy (via 16 stations réparties sur 12 communes de l'Essonne).
Les bâtiments sont sécurisés par un système de vidéosurveillance et un PC de sécurité, garantissant un environnement de travail serein. Les espaces d'activités offrent une hauteur sous plafond comprise entre 5 et 8 m, et sont accompagnés de bureaux équipés d'un éclairage LED,. Les lots seront disponibles après rénovation. Le parc dispose également d'une connexion en fibre optique et d'un parking commun, doté de bornes de recharge pour véhicules électriques.
Implantez votre entreprise dans un cadre professionnel et accessible, au coeur d'un pôle économique en plein essor. Pour en savoir plus ou organiser une visite, contactez-nous !
Impôt Foncier : 33,8 €//m²/an
Régime Fiscal : T.V.A.
Dépôt de garantie : 3 mois de loyer HT/HC
Paiement Loyer : Trimestriel
Honoraires : 15 % HT du loyer annuel HT/HC à la charge du preneur.
Information sur le Bail :
Autres taxes : 3,6
Prestations :
Accessibilité:
Accès routier 30 minutes de Paris depuis la porte d'Orléans (A6)
RER 50 minutes depuis Gare de Lyon (RER D) arrêt Evry-Courcouronnes
Bus Bus lignes 404, 405, 415, 416, 453 arrêt Petite Montagne / Dauphiné
Aéroport 25 minutes de l'aéroport d'Orly (A6)
Tram Prochainement : Tramway ligne 12 depuis Massy Palaiseau à Evry-Courcouronnes
Les informations sur les risques auxquels ce bien est exposé sont disponibles sur le site Géorisques : www.georisques.gouv.fr
Immeuble VENTOUX
À louer, lots mixtes, bureaux et activité à Evry-Courcouronnes.
Venez découvrir le Mileway Parks, situé dans la zone d'activités de la Petite Montagne Nord à Évry-Courcouronnes. Ce parc dynamique est composé de sept immeubles modernes, totalisant 34 500 m² dédiés à des activités mixtes et des bureaux. Nous proposons aujourd'hui, au sein de l'immeuble VENTOUX, 3 416 m² d'espaces divisibles à partir de 428 m², offrant ainsi une grande flexibilité pour votre entreprise.
Le site bénéficie d'une excellente accessibilité, à seulement 30 minutes de Paris par l'A6 et 50 minutes de la Gare de Lyon via le RER D. Il est également desservi par plusieurs lignes de bus et désormais par le tramway ligne 12, reliant Evry-Courcouronnes à Massy (via 16 stations réparties sur 12 communes de l'Essonne).
Les bâtiments sont sécurisés par un système de vidéosurveillance et un PC de sécurité, garantissant un environnement de travail serein. Les espaces d'activités offrent une hauteur sous plafond comprise entre 5 et 8 m, et sont accompagnés de bureaux équipés d'un éclairage LED,. Les lots seront disponibles après rénovation. Le parc dispose également d'une connexion en fibre optique et d'un parking commun, doté de bornes de recharge pour véhicules électriques.
Implantez votre entreprise dans un cadre professionnel et accessible, au coeur d'un pôle économique en plein essor. Pour en savoir plus ou organiser une visite, contactez-nous !
| Étage | Type | Surfaces | Dispo | Loyer | Charges | Type de bailRév. annuelle |
|---|---|---|---|---|---|---|
| R+1 | Activités | 660 | 18,7 HT/m²/an | Sur l'indice ILAT | ||
| R+1 | Bureaux | 304 | 18,7 HT/m²/an | Sur l'indice ILAT | ||
| Total Cellule Lot 121 | Activités | 964 | 127 HT/HC/m²/an | 18,7 HT/m²/an | 3-6-9 ansSur l'indice ILAT | |
| R+1 | Activités | 654 | 18,7 HT/m²/an | Sur l'indice ILAT | ||
| R+1 | Bureaux | 161 | 18,7 HT/m²/an | Sur l'indice ILAT | ||
| Total Cellule Lot 122 | Activités | 815 | 120,5 HT/HC/m²/an | 18,7 HT/m²/an | 3-6-9 ansSur l'indice ILAT | |
| R+1 | Activités | 940 | 18,7 HT/m²/an | Sur l'indice ILAT | ||
| R+1 | Bureaux | 250 | 18,7 HT/m²/an | Sur l'indice ILAT | ||
| Total Cellule Lot 136 - 1 | Activités | 1190 | 121,2 HT/HC/m²/an | 18,7 HT/m²/an | 3-6-9 ansSur l'indice ILAT |
Impôt Foncier : 33,8 €//m²/an
Régime Fiscal : T.V.A.
Dépôt de garantie : 3 mois de loyer HT/HC
Paiement Loyer : Trimestriel
Honoraires : 15 % HT du loyer annuel HT/HC à la charge du preneur.
Information sur le Bail :
Autres taxes : 3,6
Prestations :
- Le Mileway Parks « Courcouronnes » est composé de 7 immeubles à usage de bureaux et d'activité, totalisant 34 500 m²
- Le site est clôturé et sécurisé via PC sécurité et vidéo-surveillance
- Gestion technique globale du site
- Accessibilité fibre optique
- Site clos et sécurisé
- Activité : portes sectionnelles ; HSP entre 5 et 8 m
- Bureaux : éclairage LED
- Espace verts aménagés avec espace détente
- Parkings avec bornes électriques
- Les lots seront livrés rénovés
- Disponible après rénovation
Parking commun
Accessibilité:
Accès routier 30 minutes de Paris depuis la porte d'Orléans (A6)
RER 50 minutes depuis Gare de Lyon (RER D) arrêt Evry-Courcouronnes
Bus Bus lignes 404, 405, 415, 416, 453 arrêt Petite Montagne / Dauphiné
Aéroport 25 minutes de l'aéroport d'Orly (A6)
Tram Prochainement : Tramway ligne 12 depuis Massy Palaiseau à Evry-Courcouronnes
Les informations sur les risques auxquels ce bien est exposé sont disponibles sur le site Géorisques : www.georisques.gouv.fr
Voir plus
Afficher les consommations énergétiques
Localisation et transport aux alentours
Favoris
Exporter
Appeler
Contacter
Signaler cette annonce









