MCarré Conseil est une agence spécialiste de l'immobilier d’entreprise du sud de l’Île-de-France (en Essonne et dans le sud de la Seine-et-Marne et du Val-De-Marne). Elle vous accompagne à chaque é ...
En savoir plus



273 m²
HT HC
Location activité/entrepôt - 273 m²
Courcouronnes (91080)
Dernière mise à jour : Hier
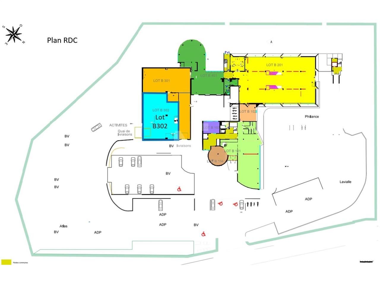
Dans un ensemble immobilier clos situé à proximité immédiate de la station "Bois Briard" du Tram T12 qui permet de relier la gare RER D d'Evry-Courcouronnes en 5 minutes, et la gare TGV et RER B & C de Massy en 35 minutes environ, nous vous proposons à la location un lot rénové à usage d'activité de 273 m² bénéficiant d'une mezzanine de 132 m².
Impôt Foncier : 19,89 €/HT/m²/an
Régime Fiscal : TVA
Dépôt de garantie : 3 mois de loyer HT/HC
Honoraires : 15% HT du loyer annuel HT/HC
Information sur le Bail :
Loyer annuel : 26 000 euros HT/HC Les charges incluent l'assurance
Prestations :
Accessibilité:
Autoroute Autoroute A6 sortie n°35 et n°8
Route Nationale 104 Francilienne sortie n°35
Route Nationale 7
RER RER D4 : Evry-Courcouronnes
Tram Bois Briard (Ligne T12)
Bus St-Guénault (Ligne 403, Ligne 414, Ligne 91-05, Ligne 9104)
Les informations sur les risques auxquels ce bien est exposé sont disponibles sur le site Géorisques : www.georisques.gouv.fr
| Étage | Type | Surfaces | Dispo | Loyer | Charges | Type de bailRév. annuelle |
|---|---|---|---|---|---|---|
| Rdc | Activités | 273 | Immédiate | 95,24 m²/an HT HC | 21,6 HT/m²/an | 3/6/9 ansIndice ILAT |
| Parkings | 250 place/an HT HC | Indice ILAT |
Impôt Foncier : 19,89 €/HT/m²/an
Régime Fiscal : TVA
Dépôt de garantie : 3 mois de loyer HT/HC
Honoraires : 15% HT du loyer annuel HT/HC
Information sur le Bail :
Loyer annuel : 26 000 euros HT/HC Les charges incluent l'assurance
Prestations :
- Lot rénové
- Mezzanine de 132 m² en sus
- Sanitaires PMR
- Abri vélo
- Afin de réduire les consommations énergétiques fixées par le décret tertiaire, le bailleur a mis en place un système d'automatisation et de contrôle des bâtiments (BACS) dès 2024.
- Immeuble indépendant
- Surface RDC : 273 m²
- Nbr de portes à quai : 1
Accessibilité:
Autoroute Autoroute A6 sortie n°35 et n°8
Route Nationale 104 Francilienne sortie n°35
Route Nationale 7
RER RER D4 : Evry-Courcouronnes
Tram Bois Briard (Ligne T12)
Bus St-Guénault (Ligne 403, Ligne 414, Ligne 91-05, Ligne 9104)
Les informations sur les risques auxquels ce bien est exposé sont disponibles sur le site Géorisques : www.georisques.gouv.fr
Voir plus
Afficher les consommations énergétiques
Localisation et transport aux alentours
Favoris
Exporter
Appeler
Contacter
Signaler cette annonce









