MALSH Realty accompagne les entreprises dans leurs projets immobiliers, qu’il s’agisse de locaux d’activités, de bureaux, de commerces, d’entrepôts ou de terrains. L’agence intervient aussi bien au ...
En savoir plus

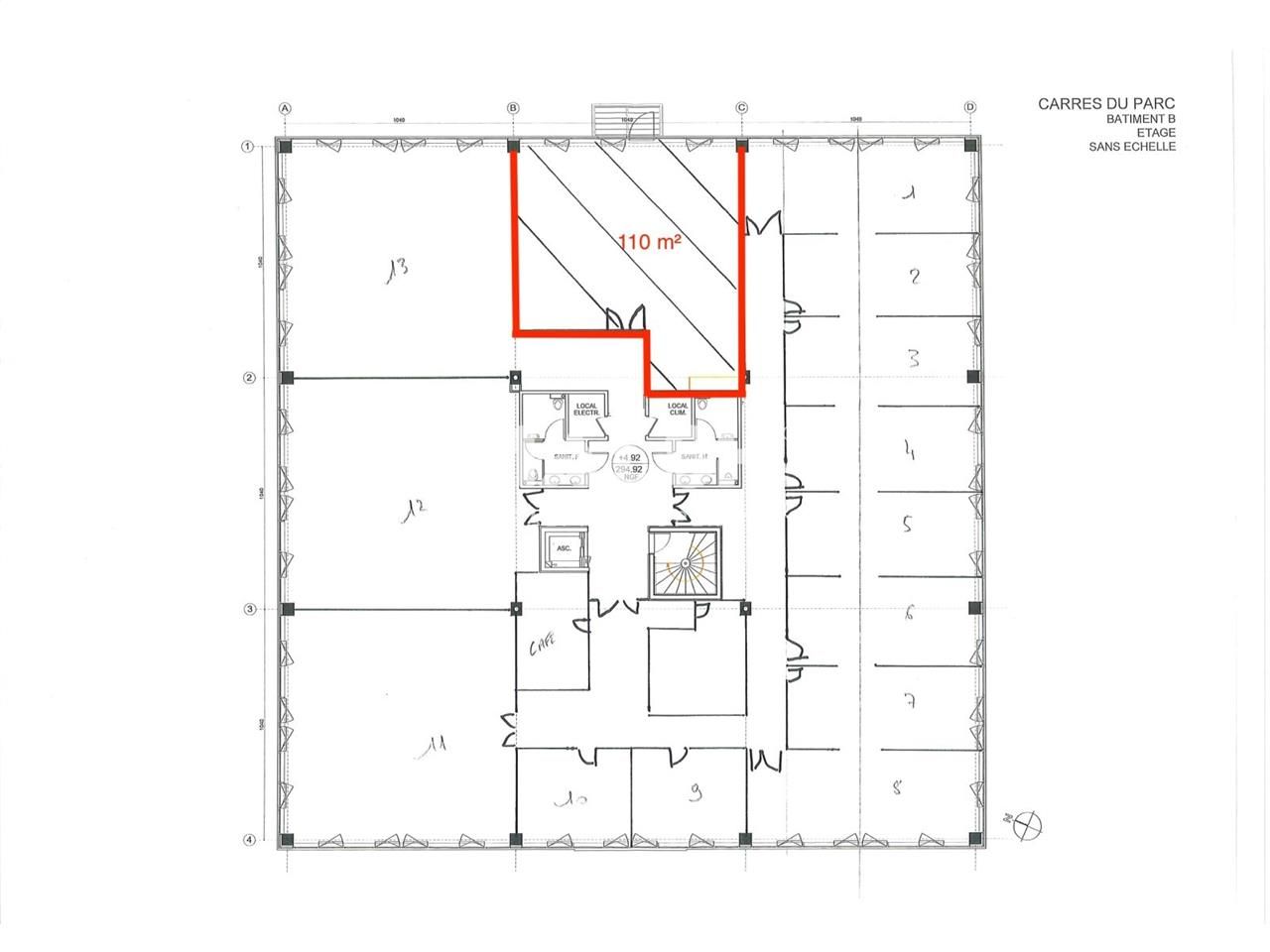
466 m² divisible dès 110 m²
HT HC
Location bureau - 466 m²
Champagne-au-Mont-d'Or (69410)
Dernière mise à jour : Il y a 4 mois
CHAMPAGNE-AU-MONT-D'OR - Bureaux de 242 m² - A LOUER
Nous vous proposons des bureaux à louer au sein des Carrés du parc en plein coeur de la zone Techlid.
CHAMPAGNE-AU-MONT-D'OR - Bureaux de 242 m² - A LOUER
Impôt Foncier : 12 €/HT / m² / an
Régime Fiscal : T.V.A. (20%)
Dépôt de garantie : 3 mois de loyer HT/HC
Honoraires : 15% HT du loyer annuel HT à la charge du preneur, payables à la signature du bail
Prestations :
Accessibilité:
Autoroute A proximité immédiate de l'autoroute A6 (à 5 min)
Autoroute Accès rapide au Bd Périphérique Nord (à 10 min)
SNCF Gare de Dardilly Le Jubin à 5 min
Bus Bus TCL lignes 21, 61 et Ge4 arrêt "L'époux"
Les informations sur les risques auxquels ce bien est exposé sont disponibles sur le site Géorisques : www.georisques.gouv.fr
Nous vous proposons des bureaux à louer au sein des Carrés du parc en plein coeur de la zone Techlid.
CHAMPAGNE-AU-MONT-D'OR - Bureaux de 242 m² - A LOUER
| Étage | Type | Surfaces | Dispo | Loyer | Charges | Type de bailRév. annuelle |
|---|---|---|---|---|---|---|
| 1 | Bureaux | 242 | Immédiate | 155 HT/HC/m²/an | 30 m²/an HT | commercial 3-6-9 ansILAT Indice des Loyers des Activités Tertiaires |
| 1 | Bureaux | 113,61 | Immédiate | 155 HT/HC/m²/an | 30 m²/an HT | commercial 3-6-9 ansILAT Indice des Loyers des Activités Tertiaires |
| 1 | Bureaux | 110 | Immédiate | 155 HT/HC/m²/an | 30 m²/an HT | commercial 3-6-9 ansILAT Indice des Loyers des Activités Tertiaires |
Impôt Foncier : 12 €/HT / m² / an
Régime Fiscal : T.V.A. (20%)
Dépôt de garantie : 3 mois de loyer HT/HC
Honoraires : 15% HT du loyer annuel HT à la charge du preneur, payables à la signature du bail
Prestations :
- Ascenseur
- Hall accueillant
- R+1: Bureaux rénovés et décloisonnés
- Plateau lumineux
- Faux-plafonds avec LED encastrés
- Sol dalles moquette
- Rafraichissement d'air réversible
- Sanitaires privatifs
Accessibilité:
Autoroute A proximité immédiate de l'autoroute A6 (à 5 min)
Autoroute Accès rapide au Bd Périphérique Nord (à 10 min)
SNCF Gare de Dardilly Le Jubin à 5 min
Bus Bus TCL lignes 21, 61 et Ge4 arrêt "L'époux"
Les informations sur les risques auxquels ce bien est exposé sont disponibles sur le site Géorisques : www.georisques.gouv.fr
Voir plus
Afficher les consommations énergétiques
Localisation et transport aux alentours
Favoris
Exporter
Appeler
Contacter
Signaler cette annonce










