Société de conseil immobilier implantée sur Lyon et Paris, Sorovim accompagne particuliers et professionnels dans leurs projets de vente, d’acquisition, d’investissement et d’estimation de bien.Sor ...
En savoir plus

1 305 m² divisible dès 215 m²
HT HC
LES CARRES DU PARC - Location bureau - 1305 m²
Champagne-au-Mont-d'Or (69410)
Dernière mise à jour : Il y a 1 mois
TECHLID - Champagne : dans un parc tertiaire, très bien entretenu, des bureaux à Louer
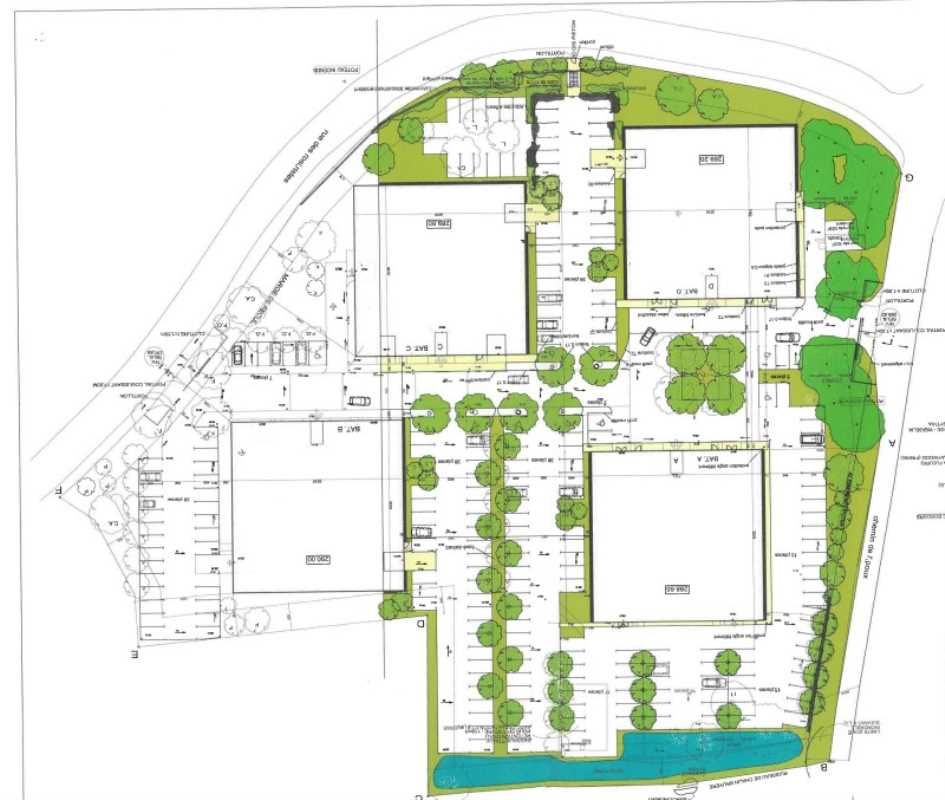
Immeuble LES CARRES DU PARC
Dans le parc tertiaire "Les Carrés du Parc", au sein de la zone Techlid, sur la commune de Champagne au Mont d'Or, nous vous proposons à la location des surfaces de bureaux idéalement situés à proximité de l'autoroute A6, de la Route Nationale et des commerces.
Impôt Foncier : 13 €/HT / m²/an
Régime Fiscal : T.V.A.
Dépôt de garantie : 3 mois de loyer HT HC
Honoraires : 15% HT du loyer annuel HT à la charge du preneur, payables à la signature du bail
Information sur le Bail :
Le loyer des parkings est compris dans le loyer bureaux
Prestations :
Accessibilité:
Aéroport A 30 minutes de l'aéroport St Exupéry
SNCF A 15 minutes de la Gare Part-Dieu
Autoroute A proximité immédiate de l'A6
Route Accès rapide périphérique Nord
Métro Métro : Gare de Vaise (D) en 10 min via le bus
Bus Bus : 21, Ge4, 61, S3
Les informations sur les risques auxquels ce bien est exposé sont disponibles sur le site Géorisques : www.georisques.gouv.fr
Immeuble LES CARRES DU PARC
Dans le parc tertiaire "Les Carrés du Parc", au sein de la zone Techlid, sur la commune de Champagne au Mont d'Or, nous vous proposons à la location des surfaces de bureaux idéalement situés à proximité de l'autoroute A6, de la Route Nationale et des commerces.
| Étage | Type | Surfaces | Dispo | Loyer | Charges | Type de bailRév. annuelle |
|---|---|---|---|---|---|---|
| 1 | Bureaux | 215 | 155 HT HC/m²/an | 32 HT/m²/an | 3-6-9 ansILAT Indice des Loyers des Activités Tertiaires | |
| 1 | Bureaux | 215 | 155 HT HC/m²/an | 32 HT/m²/an | 3-6-9 ansILAT Indice des Loyers des Activités Tertiaires | |
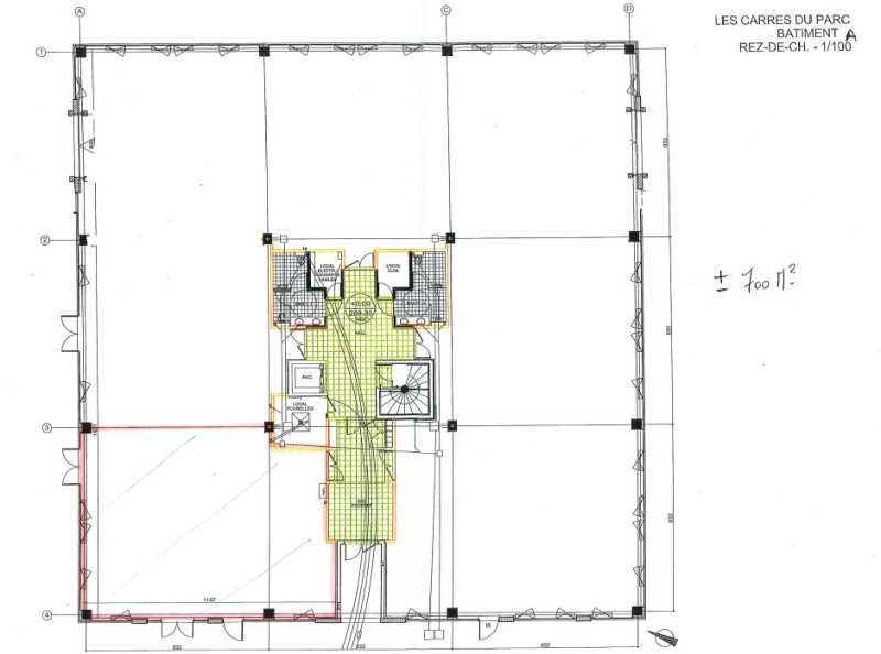
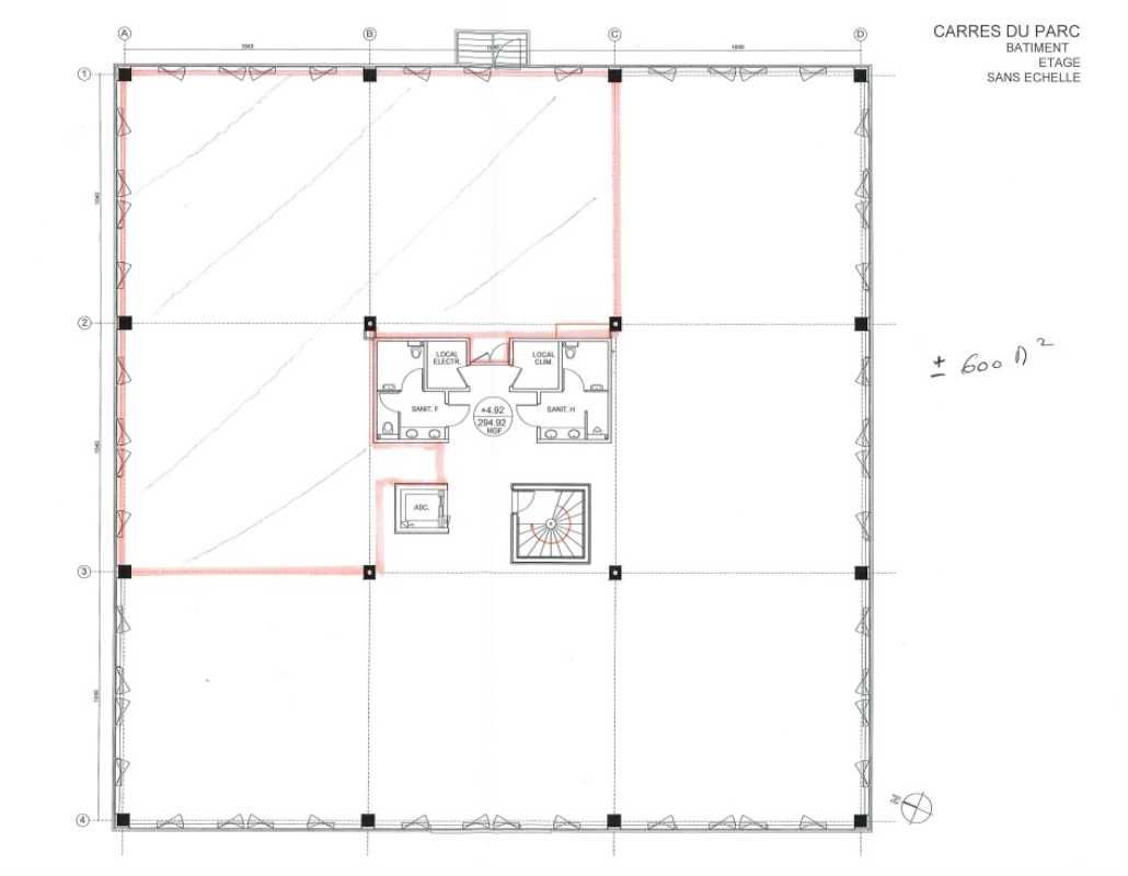
| 1 | Bureaux | 275 | 155 HT HC/m²/an | 32 HT/m²/an | 3-6-9 ansILAT Indice des Loyers des Activités Tertiaires | |
| RDC | Activités | 600 | 110 HT HC/m²/an | 32 HT/m²/an | 3-6-9 ansILAT Indice des Loyers des Activités Tertiaires |
Impôt Foncier : 13 €/HT / m²/an
Régime Fiscal : T.V.A.
Dépôt de garantie : 3 mois de loyer HT HC
Honoraires : 15% HT du loyer annuel HT à la charge du preneur, payables à la signature du bail
Information sur le Bail :
Le loyer des parkings est compris dans le loyer bureaux
Prestations :
- Dans un parc tertiaire clos et sécurisé
- Immeubles de bureaux en R+1
- Parties communes soignées
- Ascenseur
- Rafraichissement d'air réversible
- Faux plafonds avec pavés LED
- Sol en PVC
- Sanitaires en parties communes
- Bât A:Hall sera rénové
- L'activité du Rdc est indissociable d'une partie bureaux au R+1
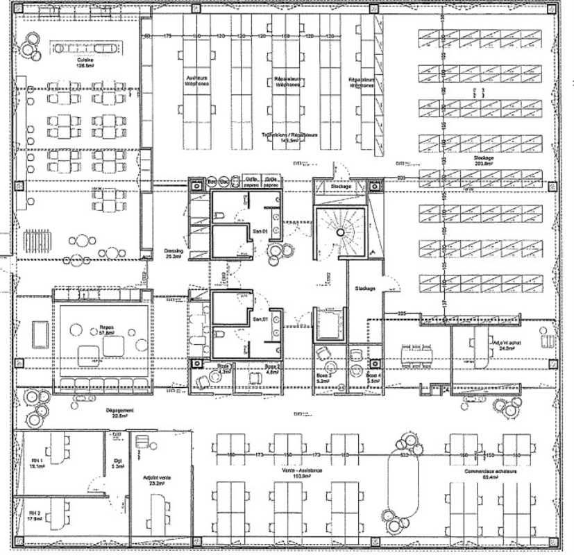
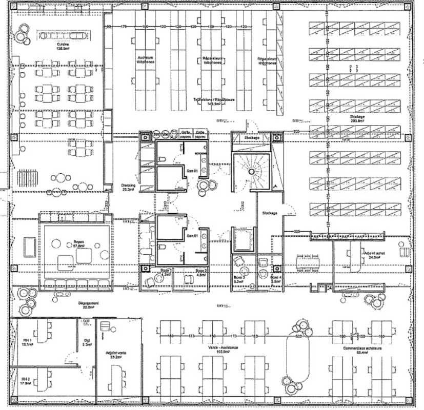
- Bureaux aménagés et cloisonnés : open space, bureaux individuels et de direction, salle de convivialité.
- RDC : local de stockage et bureaux individuels
- Hauteur sous plafond de 4,40 m
- Possibilité porte sectionnelle
- 1 parking pour 26 m²
- Bât D: Bureaux cloisonnés
- 1 parking pour 35 m²
- Surface RDC : 600 m²
Accessibilité:
Aéroport A 30 minutes de l'aéroport St Exupéry
SNCF A 15 minutes de la Gare Part-Dieu
Autoroute A proximité immédiate de l'A6
Route Accès rapide périphérique Nord
Métro Métro : Gare de Vaise (D) en 10 min via le bus
Bus Bus : 21, Ge4, 61, S3
Les informations sur les risques auxquels ce bien est exposé sont disponibles sur le site Géorisques : www.georisques.gouv.fr
Voir plus
Afficher les consommations énergétiques
Localisation et transport aux alentours
Favoris
Exporter
Appeler
Contacter
Signaler cette annonce










